Communal Dining Restaurant Design: Xokol by ODAmx + Rubén Valdez
Explore Xokol in Guadalajara, a communal dining haven blending Mexican culinary traditions with innovative restaurant architecture.
Explore the transformative design of Xokol restaurant in Guadalajara, Mexico, where dining becomes a collective ritual. ODAmx and Rubén Valdez collaborated to create a space that reinterprets Mexican culinary traditions, fostering a unique communal dining experience.


Culinary Ritual in Santa Tere
Nestled in the Santa Tere neighborhood, Xokol transcends the conventional restaurant concept. The architecture serves as a catalyst for communal engagement, blurring boundaries between diners, staff, and the captivating process of food preparation.







Evolution of Xokol
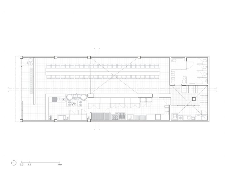
Founded in 2017, Xokol initially occupied a small space with four tables. In 2020, the restaurant moved to a former mechanic's workshop, maintaining intimacy while embracing a larger setting. The focal point is a 15-meter-long table where diners share not just meals but also the experience of witnessing the ritualistic preparation of their dishes.







Harmonizing Originality and Intimacy
The exterior of the building retains its original facade, with raw steel plates acting as a subtle filter between the interior and exterior worlds. Inside, ash-colored stucco on walls and ceilings complements the black clay lining of the kitchen's comal ovens. These muted tones enhance the vibrant colors of the dishes, creating a harmonious visual experience.











Locally Sourced and Handcrafted
All materials used, from locally sourced ash-colored stucco to metalwork for lamps and fermenting shelves, are carefully chosen to contribute to the authenticity of the space. The large oak dining table, a centerpiece of communal dining, and other fixtures are handcrafted by local artisans, emphasizing the importance of supporting local craftsmanship.

Embracing Authenticity
Xokol's design reflects a commitment to authenticity, both in culinary traditions and architectural choices. The restaurant provides a platform for a collective dining ritual, inviting patrons to engage in the vibrant atmosphere of Santa Tere.
Xokol, envisioned by ODAmx and Rubén Valdez, stands as a testament to the power of architecture in shaping communal experiences. Dive into the world of communal dining restaurant design, where Mexican culinary traditions and architectural innovation blend seamlessly to create a unique and inviting space for culinary exploration.





Popular Articles
Popular articles from the community
Rojkind Arquitectos and Think Parametric Build a Glueless Pavilion from 67 Interlocking Panels
A serpentine fiber-cement installation in Chapultepec Park celebrates a decade of architectural media in Mexico City.
RDTH architekti Rips Out Nearly Every Wall in a Prague Apartment and Replaces Them with Furniture
A 101-square-meter post-war flat in Prague trades rigid partitions for a single rotated furniture block, curtains, and glass concrete.
YOAP Architects Round a Corner in Yeongcheon with a Cylindrical Community Hub
A 197-square-meter brick and ribbed-clad tower turns a forgotten alley corner in South Korea into a public garden with a low threshold.
Fausto Terán and Toro Fuse Japanese Craft with Mexican Tradition in a Lakeside Retreat
Nakamura House pairs Shou-Sugi-Ban charred pine with handmade clay tile at the foot of Atlangatepec Lagoon in Mexico.
Similar Reads
You might also enjoy these articles
CSADI Carves a Jade Blade into the Qinling Mountains for China's First Ecology Museum
A 43,788 square meter terraced museum in Shangluo draws its form from a Xia Dynasty artifact and steps down toward the valley below.
Ippolito Fleitz Group Identity Architects Turn Eight Floors in Shanghai into a Vertical Creative City
Publicis Groupe's new headquarters in Xintiandi reimagines the office as a courtyard-driven urban landscape stacked across eight floors.
Díaz Webster Arquitectura Carves Light and Air into a Compact Zapopan House
A 237-square-meter residence in western Zapopan uses courtyards and double-height voids to dissolve the boundary between interior and garden.
BAST Slots a Four-Story Glass House into a Narrow Gap Between Toulouse Townhouses
In the dense Bonnefoy district, a stepped infill building merges home and office while preserving a majestic hackberry tree.
Explore Architecture Competitions
Discover active competitions in this discipline
The International Standard for Design Portfolios
The Global Benchmark for Architecture Dissertation Awards
The Global Benchmark for Graduation Excellence
Challenge to design luxury tourism on rails
Comments (0)
Please login or sign up to add comments
No comments yet. Be the first to comment!