"Contigo" House and Workshop Renovation in Barcelona: A Tailor-Made Space for a Ceramist's Creativity
"Contigo" House and Workshop in Barcelona merges living space with a creative workshop, celebrating craftsmanship and light.
"Contigo" House and Workshop, designed by architects Marcos Catalán and Marta García Orte, represents a harmonious blend of functional design and artistic expression. Located on the first floor of a building in the Gracia district of Barcelona, this renovation transformed an old carpentry workshop into a bright, flexible space for a ceramist. The project is a true reflection of the shared values between the architects and the ceramist, focusing on light, material austerity, craftsmanship, and flexibility. The house itself becomes an integral part of the ceramist's creative process, blurring the boundaries between living space and workshop.



A Renovation Rooted in Craftsmanship and Light
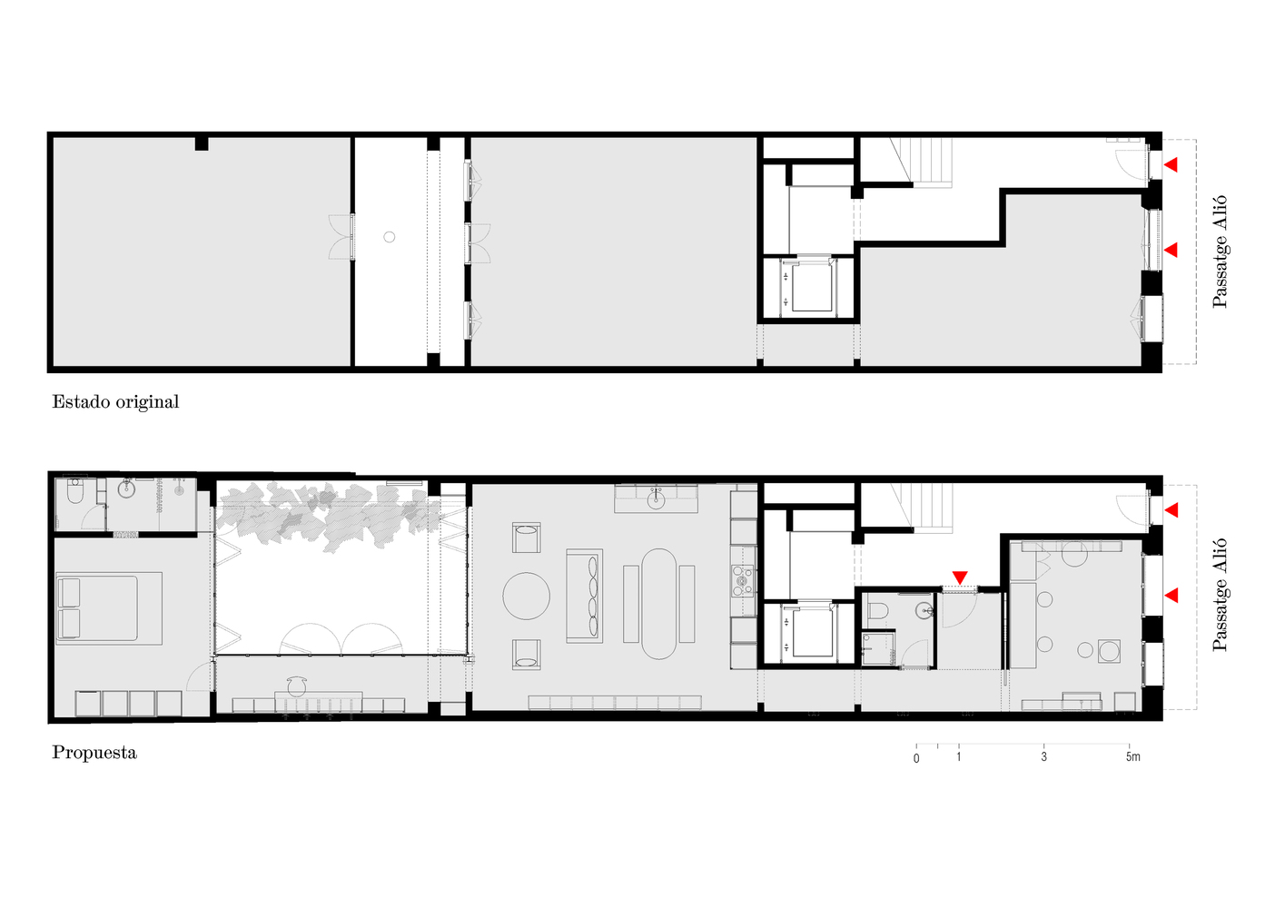
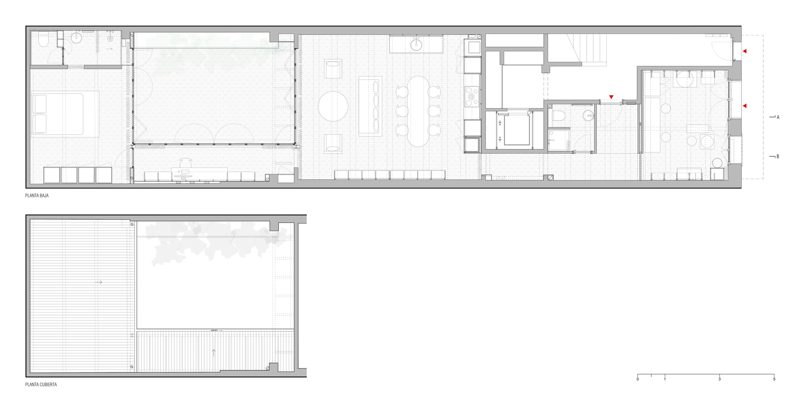
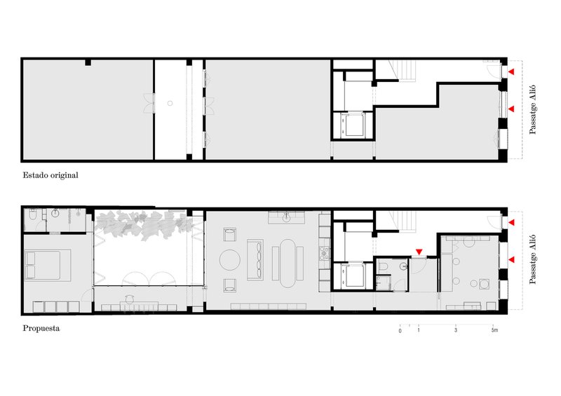
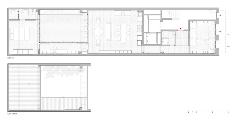
The initial space was a dimly lit carpentry workshop, lacking natural light and the necessary flexibility for modern living and working needs. To address this, the architects introduced a new courtyard, which floods the area with natural light, transforming the environment into a bright, welcoming space. The renovation carefully organizes the layout around this courtyard, ensuring that every corner of the house receives ample daylight. The living-dining area, kitchen, library-study, and bedroom-bathroom are all positioned to maximize the natural light coming through the central courtyard, offering a seamless flow between spaces.




Merging Living Space with Workshop: A Unique House-Workshop Hybrid
The core idea behind the "Contigo" project is to create a living space that also functions as a workshop, designed specifically for the ceramist's needs. Located in the Alió passage, the workshop is directly connected to the house, creating a seamless transition between work and home life. The ceramist's workspace is not an isolated, separate entity but instead integrated into the daily living experience. This setup fosters creativity and encourages the ceramist to produce their craft directly within their home environment, blurring the lines between the art of creation and the space in which it is lived.




Materializing Creativity: Ceramic as the Core Material
Ceramic plays a central role in the design of this house. The materials used in the project were chosen not only for their aesthetic appeal but also for their functionality. Exposed brick forms the floor and some partitions, grounding the space in natural materials. The most unique feature, however, is the use of ceramic elements produced by the ceramist themselves. These elements—such as sinks, bedside tables, lamps, kitchenware, and various accessories—are crafted directly in the workshop, with the ceramist shaping the space through their own creations. As a result, the house becomes a living catalog of the ceramist’s work, enveloping the resident in their passion for their craft.




Reviving the House-Workshop Typology in Urban Spaces
The renovation of "Contigo" also represents a revival of the traditional house-workshop typology, which was once common in cities but has since faded away. By reintegrating this model into an urban setting, the project encourages the reuse of first-floor spaces for mixed purposes, promoting both social and economic activity within the city. The house is not just a private space for living but an active part of the urban fabric, fostering connections between the resident, the city, and the creative process. This model also serves as a catalyst for the diversification of use in the area, potentially influencing future architectural trends in Barcelona.




A Space That Nurtures Creativity and Community
The "Contigo" House and Workshop is more than just a renovation—it’s a space that celebrates creativity, craftsmanship, and the integration of work with home life. Through the careful use of light, materials, and design, the architects have created a flexible and inspiring environment that allows the ceramist to live and work in harmony. By reimagining the traditional house-workshop model, the project adds a new layer to the evolving architectural landscape of Barcelona. "Contigo" not only provides the ceramist with a unique space to thrive but also enriches the community by showcasing the art of craftsmanship in the heart of the city.




All Photographs are work of Eugeni Pons
Popular Articles
Popular articles from the community
Alton Cliff House: A Harmonious Retreat by f2a Architecture in Lake Country, Canada
Alton Cliff House blends corten steel, prefabrication, and sustainable design, creating a luxurious, energy-efficient retreat perched on Canadian cliffs.
20 Most Popular Commercial Architecture Projects of 2025
From sustainable market concepts to heritage factories, the commercial buildings and proposals that drew the most attention on uni.xyz this year.
Split House: A Compact Urban Home Blending Privacy, Light, and Flexible Living in Japan
Compact Japanese home featuring DOMA space, flexible café potential, passive lighting, privacy zoning, and sustainable urban living design.
Similar Reads
You might also enjoy these articles
Filtering Space: A Gradual Spatial Experience
From urban intensity to spatial calm.
The Ken Roberts Memorial Delineation Competition (Krob)
As the most senior architectural drawing competition currently in operation anywhere in the world, it draws hundreds of entries each year, awarding the very best submissions in a series of medium-based categories.
Waterfront Redevelopment and Urban Revitalization in Mumbai: Forging a New Dawn for Darukhana
A transformative waterfront redevelopment project reimagining Darukhana’s shipbreaking heritage into an inclusive urban future.
OUT-OF-MAP: A Call for Postcards on Feminist Narratives of Public Space
Rhizoma Design and Research Lab invites artists, designers, architects, researchers, and students to reflect on how feminist perspectives can reshape public space. Selected works will be exhibited in Barcelona, October 2026. Submissions open until 15 April 2026.
Explore Architecture Competitions
Discover active competitions in this discipline
The International Standard for Design Portfolios
The Global Benchmark for Architecture Dissertation Awards
The Global Benchmark for Graduation Excellence
Challenge to reimagine the Iron Throne
Comments (0)
Please login or sign up to add comments
No comments yet. Be the first to comment!