Cochin Creative Collective Turns a 1980s Bangalore Home into a Superstudio-Inspired Diner
A 5,000-square-foot restaurant in Koramangala channels infinite grid geometry, red steel, and a rain tree canopy to reinvent the casual diner.
Koramangala is one of Bangalore's densest neighborhoods, the kind of place where buildings press shoulder to shoulder and sky is a scarce commodity. So when Cochin Creative Collective took on the conversion of a 40-year-old residential building into Diner Just Loaf, the question was not how to decorate the space but how to unlock it. The original concrete structure, fenced in on both sides by adjacent buildings, offered only two real openings: the street in front and the canopy of a large rain tree above. The architects seized both.
What makes the project genuinely interesting is the conceptual framework underneath the cheerful diner aesthetic. Cochin Creative Collective cites Superstudio's infinite grid as a guiding reference, and you can see it in the relentless, unifying geometry that runs across ceiling and floor, erasing hierarchy and ornamentation in favor of a single, continuous spatial logic. The checkered tiles, the stretch-fabric ceiling that doubles as one enormous light source, the community table that morphs into the barista counter: everything submits to the grid. It is a radical move for a casual restaurant, and it works precisely because the red steel structure and playful color choices keep the space from feeling austere.
Red Steel as Architectural Identity


The most immediate gesture is the bold red steel framework that threads through the entire project. A perforated-tread staircase rises through a double-height void, its diagonal bracing visible through large glass panels. On the street side, the same red frame opens to a courtyard, creating a threshold that is neither fully indoors nor fully outdoors. The color choice is deliberate: red anchors the diner's identity against the neutral urban backdrop, and the exposed structural members serve as both ornament and wayfinding. You always know where you are in relation to the steel.
The Grid on the Ground and Overhead


Superstudio's grid was a provocation, a flat, borderless plane that dissolved context and hierarchy. Here, the architects translate that idea into a black-and-white checkered floor that runs from interior dining areas out through glazed walls into the courtyard. Above, a stretch-fabric ceiling turns the entire upper plane into a diffuse light source, eliminating the usual hierarchy of pendant fixtures and dark corners. A circular ring skylight punctuates the ceiling at the main column, pulling natural light down through the canopy of the rain tree overhead.
The effect is surprisingly democratic. There is no prime table; the grid treats every seat as equivalent. A white tile runner bisects the checkered floor, directing circulation without walls, while the community table extends continuously into the barista counter, blurring the line between service and dining. It is a social proposition embedded in geometry.
Canopy, Courtyard, and the Cantilevered Terrace


With adjacent buildings blocking lateral light, the architects pushed the dining experience upward and outward. A covered terrace sits beneath a red steel truss canopy, furnished with timber cane chairs that soften the industrial palette. This cantilevered balcony hovers over the car parking below, effectively adding usable floor area without expanding the building's footprint. From here, guests look through the red steel framing toward the courtyard and the street, a layered view that gives a 5,000-square-foot restaurant a spatial generosity it has no right to claim on paper.
The rain tree deserves co-author credit. Its canopy filters harsh Bangalore sun into dappled light that shifts across the terrace throughout the day, and the glass roof structure captures this effect, turning the ceiling into a living light installation. No mechanical dimmer could replicate it.
A Circular Cut and the Art of Visual Expansion


One of the project's most inventive details is the circular floor opening fitted with red glazing, which reveals the seating area on the level below. Surrounded by the black-and-white checkered tiles, it reads as an oculus in reverse, pulling the eye downward instead of upward. The split-level organization of the existing building makes this vertical connection possible, and the red glass gives the view a warm, cinematic tint that separates it from the cool neutrality of the grid. Mirror surfaces elsewhere in the plan amplify the compact interior, creating visual depth where physical space is limited.
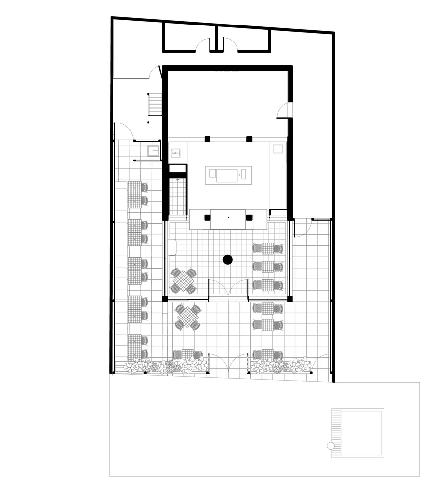
Plans and Drawings


The floor plan confirms the straightforward organizational logic. A large paved courtyard with flexible seating arrangements occupies the front of the site, while the interior rooms stack along the depth of the plot, connected by the staircase that acts as a vertical spine. Kitchens and service areas, largely inherited from the building's previous life as a cafe, sit at the rear, requiring minimal intervention. The community table is the centripetal element, running from the courtyard threshold inward to the barista counter and pulling the entire plan into a single social orbit.
Why This Project Matters
Adaptive reuse in Indian cities often defaults to two modes: either a nostalgic preservation of heritage character or a total gut-and-glow renovation that erases any trace of the original structure. Cochin Creative Collective stakes out a third path. They leave the concrete bones visible, add a muscular red steel framework that is unapologetically new, and stitch the two together with a conceptual grid borrowed from radical Italian architecture of the 1970s. The result is a diner that feels both timeless and very much of its moment.
More importantly, Just Loaf demonstrates how constraint can generate invention. A narrow urban plot, hemmed in on both sides, becomes a vertical sequence of dining experiences, from courtyard to cantilevered terrace to skylit interior. A limited budget for structural changes leads to the community table as the primary organizational device. And the rain tree, an immovable site condition, becomes the project's defining spatial quality. The lesson is not new, but it is executed here with real conviction: the best restaurant interiors are not about finishes. They are about the architecture.
Diner Just Loaf by Cochin Creative Collective, Koramangala, Bangalore, India. 5,000 sq ft. Photography by Syam Sreesylam and Naresh Andnayan.
About the Studio
Share Your Own Work on uni.xyz
If projects like this are the kind of work you want to make, uni.xyz is a place to publish your own, find collaborators, and enter design competitions.
Popular Articles
Popular articles from the community
Fausto Terán and Toro Fuse Japanese Craft with Mexican Tradition in a Lakeside Retreat
Nakamura House pairs Shou-Sugi-Ban charred pine with handmade clay tile at the foot of Atlangatepec Lagoon in Mexico.
YOAP Architects Round a Corner in Yeongcheon with a Cylindrical Community Hub
A 197-square-meter brick and ribbed-clad tower turns a forgotten alley corner in South Korea into a public garden with a low threshold.
Rojkind Arquitectos and Think Parametric Build a Glueless Pavilion from 67 Interlocking Panels
A serpentine fiber-cement installation in Chapultepec Park celebrates a decade of architectural media in Mexico City.
3dor Concepts Wraps a Kerala Home in Mirrored Concrete Arcs Around a Courtyard Tree
In the Western Ghats foothills of Thamarassery, a 270 m² single-story house uses two curved volumes to frame nature as its center.
Similar Reads
You might also enjoy these articles
Olio Towers: A Mid-Rise for Performers That Fuses Housing, Rehearsal, and Stage
Located blocks from Houston's Theater District, this modular tower stacks living units around a central performance atrium.
Oasis: Modular Green Housing Carved into Dhaka's Urban Fabric
A shortlisted Plugin Housing entry reclaims unauthorized settlements in Dhaka with stepped concrete volumes, green roofs, and ventilation-driven design.
Black Hole: A Floating Megastructure for the Post-Physical Era
Emiliano Mazzarotto envisions a spherical, self-scaling arena where e-sports, digital hotels, and holographic stadiums replace traditional public space.
Compact & Sustainable Living in Piraeus: A Four-Level Family Home Built Around Light and Air
A narrow townhouse in one of Greece's densest port cities uses a central atrium and passive strategies to house three generations under one roof.
Explore Architecture Competitions
Discover active competitions in this discipline
The International Standard for Design Portfolios
The Global Benchmark for Architecture Dissertation Awards
The Global Benchmark for Graduation Excellence
Challenge to reimagine the Iron Throne
Comments (0)
Please login or sign up to add comments
No comments yet. Be the first to comment!