Eco-Friendly Spa Design: The Spa Hacienda Xcanatún by Angsana Heritage Collection
The article explores the sustainable architectural design of Spa Hacienda Xcanatún, highlighting its integration with the natural environment and eco-friendly materials.
In the enchanting heart of Mexico, nestled within the lush landscapes of the Hacienda Xcanatún, stands a marvel of eco-friendly spa design. The Spa at the Hacienda Xcanatún by Angsana Heritage Collection, crafted by Taller Mexicano de Arquitectura, is a testament to sustainable luxury and architectural ingenuity.


Background of the Project
As part of the expansive Hacienda Xcanatún development, this spa was envisioned to complement the existing hotel and real estate amenities, enriching the lifestyle offerings. Designed in 2023 and covering an area of 530 m², the spa harmonizes with its natural surroundings, demonstrating how modern structures can embrace eco-friendly principles.



Design Philosophy
The Architectural Concept
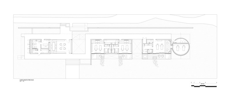
The design team, led by Salvador Román Hernández and his colleagues, proposed a linear pavilion structure that respects the site's ecological and aesthetic values. The foundation lies horizontally, promoting a human scale and enhancing privacy relative to other estate areas.



Interaction with Nature
Positioned at the edge of the main pond, the spa interacts respectfully with the hacienda’s environment. This interaction is not only physical, through its placement and structure, but also visual and sensory, offering views and experiences that connect visitors to the outdoor beauty.



Key Architectural Elements
Structural Composition
The spa’s design features a robust metal framework, integrated with stone and chukúm volumes that house the functional spa areas. A notable feature is the flat, cantilevered slab that extends over the spa, providing protection from the elements and unifying the building's sections.


Sustainable Materials and Construction
Eco-friendly spa design is evident in the material selection and construction techniques. Local stone, regional woods like cedar and tzalam, marble floors, and chukum stucco are predominant, chosen for their durability and low environmental impact.


The Blind Cylindrical Module
Breaking from the linear geometry, a blind cylindrical module adds an element of surprise, inviting exploration and discovery within the spa’s serene environment.

Views and Privacy
Strategic placement of terraces and walkways offers panoramic views of the gardens and estate, while endemic vegetation and stone barriers ensure privacy and tranquility.

A Model of Eco-Friendly Spa Design
The Spa Hacienda Xcanatún by Angsana Heritage Collection stands as a beacon of sustainable architecture in the wellness industry. It embodies the principles of eco-friendly spa design, where every element is thoughtfully integrated to create a space that is both environmentally responsible and luxurious.


All photographs are work of Manolo R. Solís
Popular Articles
Popular articles from the community
Gads Hill Early Learning Center by JGMA: Adaptive Reuse Shaping Community-Focused Educational Architecture
Adaptive reuse transforms fragmented structure into vibrant early learning center with playful façade, natural light, and community-focused sustainable design.
Atelier Macri Concept Store Interior Design by CASE-REAL
Atelier Macri store features a "ko" counter, walnut wood details, cork displays, blending retail, gallery, and seamless customer experiences.
Fifth NRE Jazz Club – De Bever Architecten: Eindhoven’s Revitalized Cultural Hub
Historic gas factory transformed into Fifth NRE Jazz Club blending modern sustainability, jazz culture, dining, and heritage architecture seamlessly.
Solar Steam: A Climate-Responsive Architecture That Redefines the Monument
A climate-responsive memorial architecture that transforms heat, decay, and time into a living system reflecting humanity’s ecological impact.
Similar Reads
You might also enjoy these articles
Free Architecture Competitions You Can Enter Right Now
No entry fees, real prizes. Here are the best free architecture competitions open for submissions in 2026.
Top 15 Architecture Competitions to Enter in 2026
From student-friendly idea competitions to prestigious international awards, here are the best architecture competitions open for entries in 2026. Updated regularly.
DIY & Engineering in Computational Design : Enter the BeeGraphy Design Awards
Showcase Your Creativity with Computational Design and Open Source Projects

Innovative Design Solutions: Award-Winning Projects from Recent Architecture Competitions
Exploring award-winning architectural projects shaping the future of design, sustainability, and community.
Explore Architecture Competitions
Discover active competitions in this discipline
The International Standard for Design Portfolios
The Global Benchmark for Architecture Dissertation Awards
The Global Benchmark for Graduation Excellence
Challenge to reimagine the Iron Throne
Comments (0)
Please login or sign up to add comments
No comments yet. Be the first to comment!