Embracing Serenity: Minimalist Courtyard House Design Unveiled in Meadows House by VSP Architects
The article explores Meadows House by VSP Architects, highlighting its serene minimalist courtyard house design in an urban Indian context.
Discover the epitome of tranquility and minimalist design with the Meadows House in Kannur, India, a stunning example of minimalist courtyard house design brought to life by VSP Architects. Nestled in an urban setting, this residence redefines modern living through the harmonious integration of nature and architecture.




A Sanctuary of Minimalism and Nature
Situated on a compact plot, the Meadows House exemplifies how minimalist courtyard house design can create an oasis of calm in the bustling urban landscape. The architects crafted a serene living space that emphasizes open, fluid environments with a strong connection to nature, catering to a family’s desire for a peaceful retreat.




The Heart of the Home: Central Courtyard
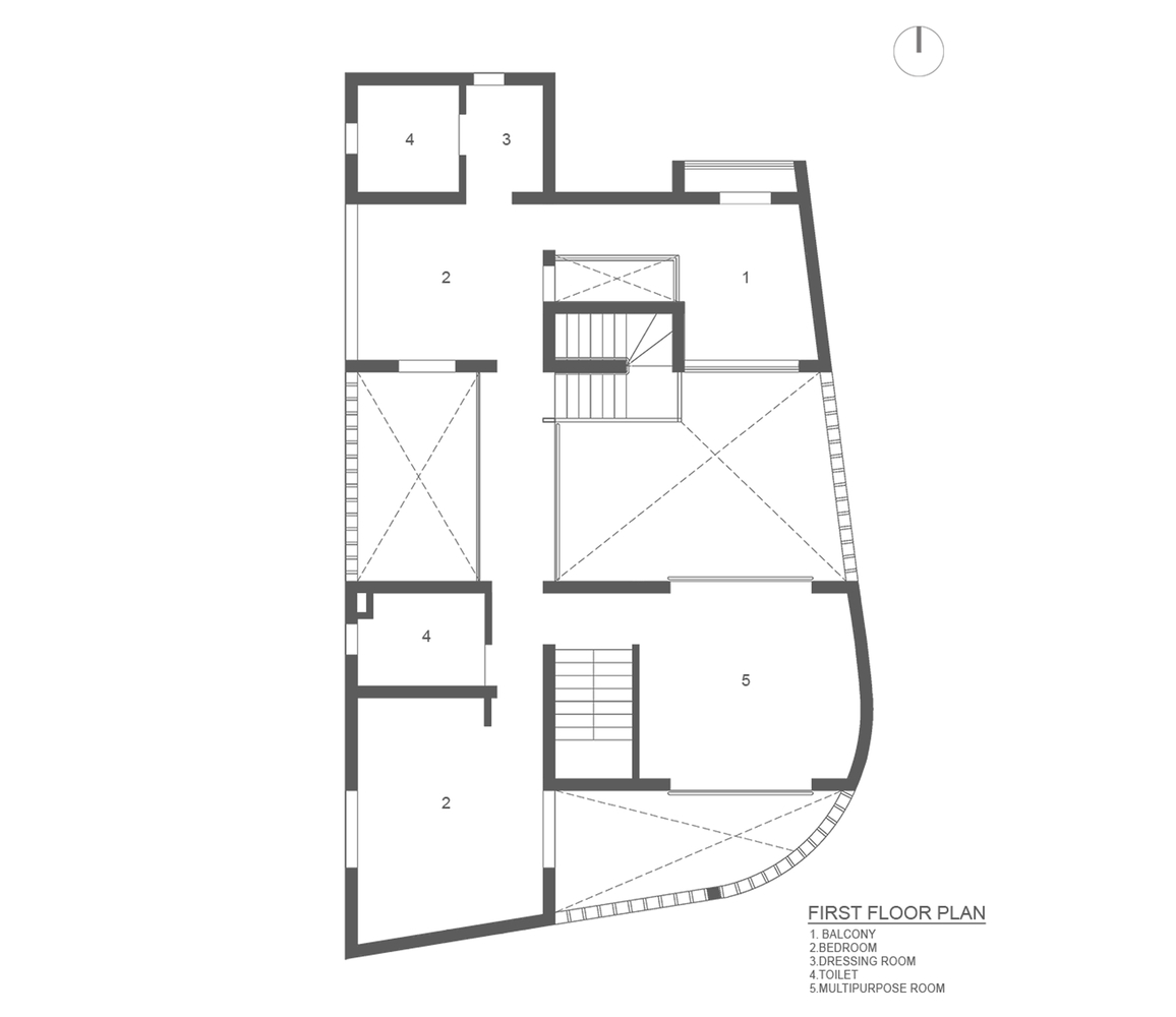
At the core of Meadows House lies the central courtyard, a pivotal element in minimalist courtyard house design. This open space serves as the lungs of the residence, promoting natural ventilation and bringing a slice of nature into the everyday life of the homeowners. The design ensures that each living area enjoys a visual and accessible connection to this green sanctuary.


Architectural Strategies for Comfort and Privacy
Addressing the challenges of privacy and climate, VSP Architects employed innovative solutions that reflect the principles of minimalist courtyard house design. Porotherm blocks and strategic window placements enhance privacy and airflow, while the thoughtful orientation minimizes direct sunlight, maintaining a comfortable indoor environment.


Material Palette: Harmony and Elegance
The selection of materials in Meadows House speaks to the minimalist courtyard house design ethos. Lime-plastered walls, natural stone floorings, and teak wood elements come together to create a soothing, earthy ambiance that complements the lush greenery of the courtyard. This carefully chosen palette reinforces the home’s connection to its natural surroundings.


The Interplay of Light and Shadow
The incorporation of skylights in the Meadows House adds a dynamic element to the minimalist courtyard house design, casting an ever-changing tapestry of light and shadows that animate the living spaces throughout the day. This natural illumination enhances the aesthetic and sensory experience of the home.

Redefining Urban Living
The Meadows House by VSP Architects stands as a beacon of minimalist courtyard house design, offering a blueprint for integrating serene, nature-filled living spaces within urban contexts. This project not only serves as a personal haven for its inhabitants but also inspires a new direction for residential architecture in bustling cities.







All photographs are work of HAMDAN
Popular Articles
Popular articles from the community
Treehouse Apartment: A Warm Timber Interior Blending Craft, Play, and Contemporary Living
Warm timber apartment with integrated treehouse, combining natural materials, craftsmanship, and playful design to create a flexible, family-oriented living environment.
Atelier Macri Concept Store Interior Design by CASE-REAL
Atelier Macri store features a "ko" counter, walnut wood details, cork displays, blending retail, gallery, and seamless customer experiences.
A Contemporary Take on Iranian Residential Architecture
A modern interior design in Mashhad that reinterprets brick, light, and spatial flow to create a warm, contemporary residential architecture.
Solar Steam: A Climate-Responsive Architecture That Redefines the Monument
A climate-responsive memorial architecture that transforms heat, decay, and time into a living system reflecting humanity’s ecological impact.
Similar Reads
You might also enjoy these articles
The Ken Roberts Memorial Delineation Competition (Krob)
As the most senior architectural drawing competition currently in operation anywhere in the world, it draws hundreds of entries each year, awarding the very best submissions in a series of medium-based categories.
Waterfront Redevelopment and Urban Revitalization in Mumbai: Forging a New Dawn for Darukhana
A transformative waterfront redevelopment project reimagining Darukhana’s shipbreaking heritage into an inclusive urban future.
OUT-OF-MAP: A Call for Postcards on Feminist Narratives of Public Space
Rhizoma Design and Research Lab invites artists, designers, architects, researchers, and students to reflect on how feminist perspectives can reshape public space. Selected works will be exhibited in Barcelona, October 2026. Submissions open until 15 April 2026.
Documentation Work on Buddhist Wooden Temple
Architectural syncretism and cultural hybridity: A comparative study of the Buddhist temples in Chattogram Hill tracks
Explore Architecture Competitions
Discover active competitions in this discipline
The International Standard for Design Portfolios
The Global Benchmark for Architecture Dissertation Awards
The Global Benchmark for Graduation Excellence
Challenge to reimagine the Iron Throne
Comments (0)
Please login or sign up to add comments
No comments yet. Be the first to comment!