Equilibrium
co-existanve in a new typology
In 2051, the city is a hyper-dense, multilayered, heterogeneous superstructure composed of buildings, bridges, shacks, historic buildings, roads all together. The buildings are taller than ever, and mega-structures create the majority of the urban texture. Spaces overlap, blocks of buildings and roads are stacked on top of each other, with most communities much dense and diverse than ever. The demand for housing and the land scarcity is so high that the crises they introduce are bigger than ever, and new solutions for urban life must be introduced.
Our idea is to simply place various public amenities to the urban texture. These annex structures are placed on to the existing buildings and act like plug-ins; they create a symbiotic relationship with the building it attaches to. The added functions enrich the existing place and turn it into a fun and efficient hybrid place, as the same effect happens to itself. They're joint now; a new way of living, of co-existing emerges.
The project introduces a prototype that these plug-ins are added on. The prototype consists of a simple, monotonous housing block, and several plug-in structures placed in the atrium of the building. The result is a hybrid way of living, with an open structure that reveals the complex, rich and diverse life associated with the city itself.
The project initially derived from how we consider the concept of education, and how we integrate it with housing. The general idea is to introduce an open university, and to take education as a public amenity. The main goal is to address the local identity and issues of the community of the building, and consider education as a common, everyday thing, something to heal and connect the societies, and everybody as potential students.
The reason for choosing São Paulo as our site depended on a couple of reasons. First, São Paulo is a very diverse megacity with many urban problems to be tackled which inspired our idea of making education integrated with the public and its problems. Second, it has a very impressive urban texture with various typologies, but most impressively it possesses the contrast between the high-rise buildings and the favela neighborhoods. Since our concept is to make education a public amenity, offer different types of public functions to bring people together, and to uplift the urban life by directing the education on local problems, São Paulo and this contrast was a perfect match. Therefore, our building would also act as a threshold- a hybrid place where different people from different backgrounds, different ages, different view of life, etc. could co-exist and create a new way of living, tackling the socio-economical crisis of the city.
The idea is to implement various public amenities and blend them with educational spaces. In fact, many of these educational spaces also act as public spaces for the community. They can join the workshops,listen to the lectures, attend events… Considering the different functions and the diverse community of hundreds of people living in the building, we approached the building as a village or a miniature city.
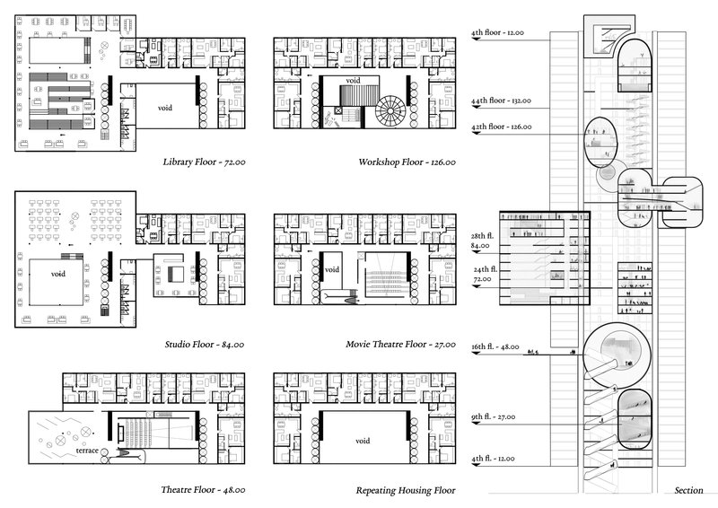
Early stages of the designOur take on the skyscraper typology was to leave the conventional glass-box dedicated to a luxurious part of the society, and rather introduce this high-rise as an open, inclusive space for everyone. The main concept of the massing started with the idea to make the public and educational functions visible from outside and to reveal the complex, hybrid way of living completely. Thus, we created this machine of a building, with a monolithic block and the world inside it with small blocks scattered inside, connected to each other in various ways and operating together like the mechanical system of a watch.
As a result, we delivered a high-rise building of 56 floors consisting of a housing tower with differing dwelling types with various educational spaces among other public amenities. Basically every place can turn into a space for learning, consisting of flexible and various spaces ideal for informal learning which is even more valuable than formal learning. The public life of the residents of the building starts here- it is merged with education and other public spaces. The students and residents bump into each other, eat together, meet at the terrace or the lounge, and hang out at the fun zone.
Our prototype is a long and narrow building, made up initially from a boring, large housing block. Therefore, the vertical circulation and the vertical relationships is a vital layer of the project. We used a very simple U plan of dwellings surrounding an atrium, or by removing a piece of solid inside the whole block. Inside, we created a patchwork with different spaces spilled through the mass, connected to each other with various joints. Our aim was to destroy the monotonous effect of the classical housing block with a simple intervention. As the building sits on an area that is in between the skyscraper zone and the favela neighborhood, the atrium faced the favela to relate to it more with the divided masses and its openness, as we left the facades facing the skyscrapers more monotonous and make it relate to them more with its mass and scale. Our aim was to create an object, a machine placed on the city, rather than a building.
The reason we scattered the public functions throughout the building rather than conventionally collecting them on the ground floors was due to the reason that we wanted to bring out the vertical potential of the skyscraper typology. We reversed the classical idea of private being separated from the public and merged them together, which is the main feature that creates the bond between different functions, lives, and people.
The main idea behind the design of the educational spaces in the building was to create a multi-disciplinary space enabling people to easily meet and learn from each other and turning every corner of the building into a potential learning space. We used many public furniture such as large amphitheater seats, open-plan spaces, etc to reach diversity and mixture in both people and in education.
Popular Articles
Popular articles from the community
A Contemporary Take on Iranian Residential Architecture
A modern interior design in Mashhad that reinterprets brick, light, and spatial flow to create a warm, contemporary residential architecture.
An Miên Lumière Cafe by xưởng xép, Ho Chi Minh City, Vietnam
An industrial-inspired café where layered steel and warm light create a dynamic, immersive environment shaped by reflection, depth, and perception.
Louis Malle Cinema: A Limestone Cultural Landmark Revitalizing Community Life in Prayssac
Limestone cinema extension with public forecourt, blending heritage and modern design to create flexible cultural spaces and strengthen community interaction.
On the Brooks House by Monsoon Collective – A Contemporary Kerala Home Rooted in Tradition
Kerala home blending tradition and modernity with water-inspired design, brick architecture, courtyard planning, and sustainable rainwater harvesting strategies.
Similar Reads
You might also enjoy these articles
The Ken Roberts Memorial Delineation Competition (Krob)
As the most senior architectural drawing competition currently in operation anywhere in the world, it draws hundreds of entries each year, awarding the very best submissions in a series of medium-based categories.
A Contemporary Take on Iranian Residential Architecture
A modern interior design in Mashhad that reinterprets brick, light, and spatial flow to create a warm, contemporary residential architecture.
Franche-Comté Advanced School of Engineering by Dominique Coulon & associés, Besançon
A flexible engineering school immersed in woodland, combining concrete minimalism, adaptable spaces, and natural light to support evolving educational environments.
Waterfront Redevelopment and Urban Revitalization in Mumbai: Forging a New Dawn for Darukhana
A transformative waterfront redevelopment project reimagining Darukhana’s shipbreaking heritage into an inclusive urban future.
Explore Architecture Competitions
Discover active competitions in this discipline
The International Standard for Design Portfolios
The Global Benchmark for Architecture Dissertation Awards
The Global Benchmark for Graduation Excellence
Challenge to reimagine the Iron Throne






Comments (0)
Please login or sign up to add comments
No comments yet. Be the first to comment!