Exhibition “The World is Man’s Theater” by Vazio S/A – A Stage for Art, Activism, and Architecture
The exhibition blends theater, architecture, and activism, honoring Abdias Nascimento and Augusto Boal through immersive spaces, archives, and powerful performances.
The exhibition “The World is Man’s Theater” by Vazio S/A Architects, curated by Inhotim’s artistic direction, is a bold and immersive installation that bridges art, architecture, activism, and theater. Built in Brumadinho, Brazil in 2022, the 5521 ft² exhibition space explores the relationship between performance, cultural identity, and social consciousness. Designed under the leadership of Carlos M. Teixeira, with photography by Daniel Mansur, the project is not just an architectural intervention—it is a theatrical experience that transforms space into a living stage.

Honoring Abdias Nascimento and the Theater of the Oppressed
The exhibition is part of Inhotim’s ongoing research on the legacy of Abdias Nascimento, a visionary playwright, activist, and founder of the Black Experimental Theater (TEN). His work inspired generations and deeply influenced Augusto Boal, the Brazilian playwright who later created the globally renowned Theater of the Oppressed.
Through archival materials, writings, photographs, and two newly commissioned video installations by Jonathas de Andrade and Barbara Wagner & Benjamin de Burca, the exhibition highlights the power of theater as a tool for political engagement, self-awareness, and collective liberation.


Architectural Concept – Curtains, Screens, and Theatrical Space
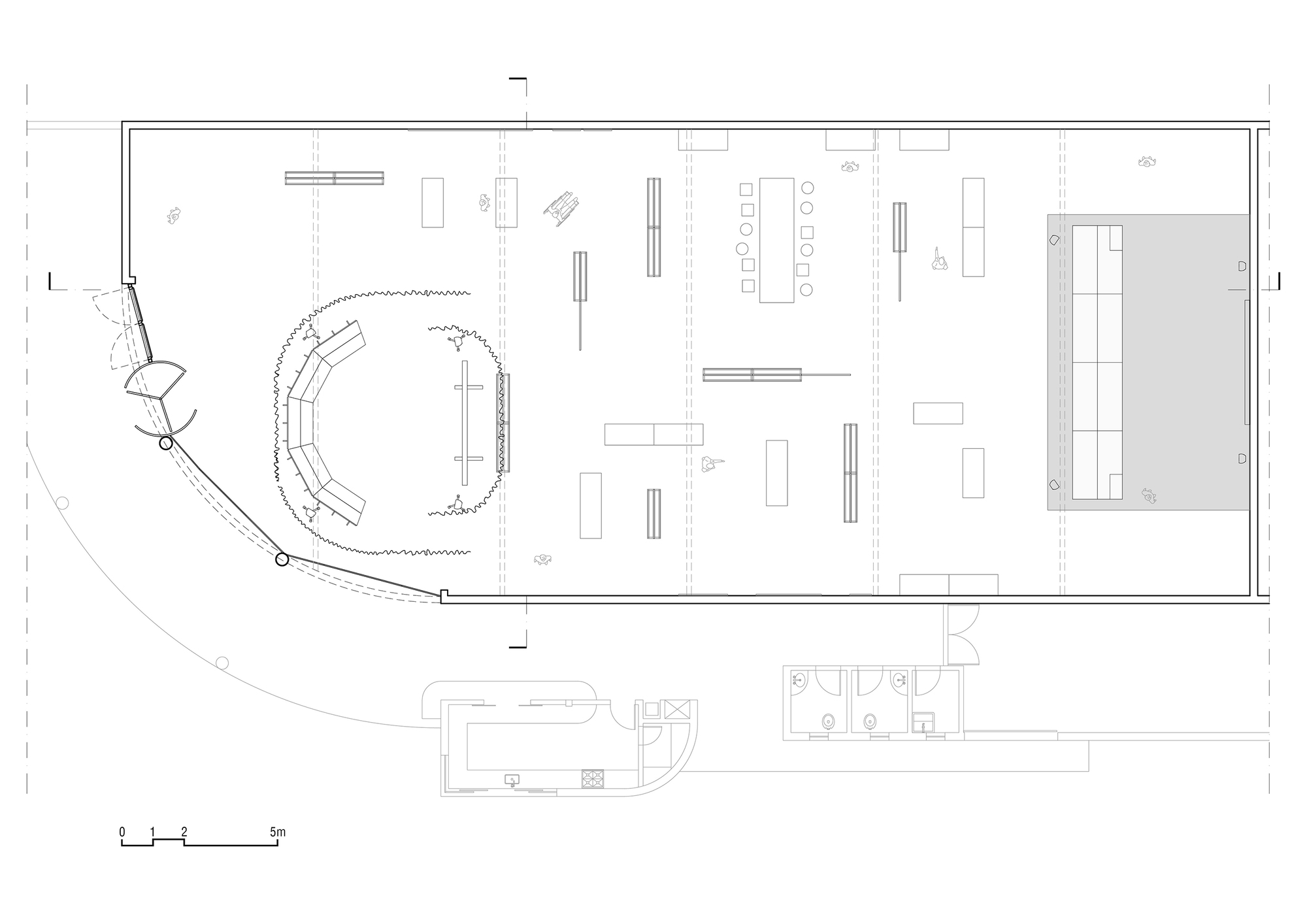
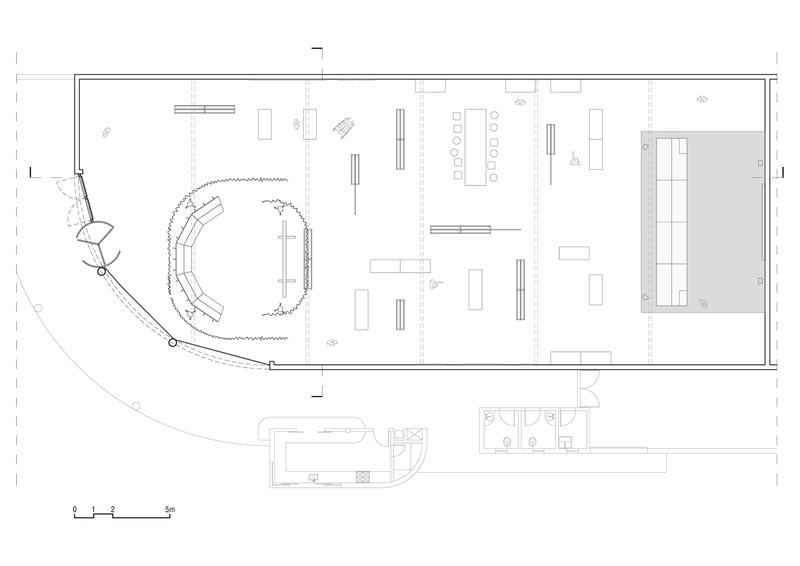
The spatial design by Vazio S/A references traditional theater architecture, using elements like curtains, screens, and scenic structures to organize the visitor’s journey.
- Curtains: Made of ocher tarpaulin, the curtains create immersive, opaque enclosures for video projection rooms, emphasizing the intensity of theatrical storytelling.
- Screens: Built with translucent construction materials, these structures display the archives of Abdias Nascimento and Augusto Boal, creating luminous spaces that contrast with the darker projection areas.
- Scenic Box Reference: The use of poles and modular structures recalls the scenography of a theater, reinforcing the theme of performance and collective imagination.
The architectural interplay between light and shadow, opacity and transparency, gives visitors the sensation of moving through layered theatrical acts, where history, art, and activism merge.


A Journey Through Theater and Activism
The exhibition unfolds as a narrative in space:
- The First Projection Room – Defined by a wavy ocher curtain, it presents Fala da Terra (Voice of the Earth).
- The Archival Spaces – Transparent façades display documents, photos, and writings that contextualize the connection between Abdias, Boal, and the Theater of the Oppressed.
- The Second Projection Room – A curved, U-shaped curtain encloses Olho da Rua (Eye of the Street) by Jonathas de Andrade, marking the exhibition’s climax.
The layout allows fluid circulation, with archival zones and projection rooms overlapping like scenes in a play. Long consultation tables encourage visitors to engage with books and written works, making the exhibition both intellectual and experiential.

Theater as a Tool for Social Change
At its core, “The World is Man’s Theater” is not only about performance—it is about social transformation. By connecting Abdias Nascimento’s Negro Experimental Theater (TEN) with Augusto Boal’s Theater of the Oppressed, the exhibition demonstrates how art can empower marginalized voices, spark dialogue, and act as a vehicle for justice.
The design by Vazio S/A captures this spirit: simple materials, flexible structures, and dynamic circulation create an environment where art and activism converge seamlessly.
The exhibition “The World is Man’s Theater” is a powerful reminder that architecture, like theater, can shape perception, provoke dialogue, and inspire collective action. Through its thoughtful design and curatorial vision, Vazio S/A transforms space into a stage for memory, resistance, and imagination.
For visitors, it is not just an exhibition—it is an invitation to participate in a performance of history, identity, and liberation.


All the photographs are works of Daniel Mansur
Popular Articles
Popular articles from the community
Takeshi Hosaka Architects Suspends a Concrete Cross Above a Yokohama Cemetery
A 28-square-meter burial renovation in Yokohama lifts the symbol of resurrection into the sky so mourners see it against heaven.
BAST Slots a Four-Story Glass House into a Narrow Gap Between Toulouse Townhouses
In the dense Bonnefoy district, a stepped infill building merges home and office while preserving a majestic hackberry tree.
Fausto Terán and Toro Fuse Japanese Craft with Mexican Tradition in a Lakeside Retreat
Nakamura House pairs Shou-Sugi-Ban charred pine with handmade clay tile at the foot of Atlangatepec Lagoon in Mexico.
Rojkind Arquitectos and Think Parametric Build a Glueless Pavilion from 67 Interlocking Panels
A serpentine fiber-cement installation in Chapultepec Park celebrates a decade of architectural media in Mexico City.
Similar Reads
You might also enjoy these articles
Olio Towers: A Mid-Rise for Performers That Fuses Housing, Rehearsal, and Stage
Located blocks from Houston's Theater District, this modular tower stacks living units around a central performance atrium.
Oasis: Modular Green Housing Carved into Dhaka's Urban Fabric
A shortlisted Plugin Housing entry reclaims unauthorized settlements in Dhaka with stepped concrete volumes, green roofs, and ventilation-driven design.
Black Hole: A Floating Megastructure for the Post-Physical Era
Emiliano Mazzarotto envisions a spherical, self-scaling arena where e-sports, digital hotels, and holographic stadiums replace traditional public space.
Compact & Sustainable Living in Piraeus: A Four-Level Family Home Built Around Light and Air
A narrow townhouse in one of Greece's densest port cities uses a central atrium and passive strategies to house three generations under one roof.
Explore Architecture Competitions
Discover active competitions in this discipline
The International Standard for Design Portfolios
The Global Benchmark for Architecture Dissertation Awards
The Global Benchmark for Graduation Excellence
Challenge to design a portable theatre
Comments (0)
Please login or sign up to add comments
No comments yet. Be the first to comment!