Expansion and Renovation of Primary School & Urban Infrastructure Multi-system Complex by Atelier Archmixing
A vertically layered school and urban infrastructure complex integrating education, landscape, parking, and public space through time-sharing use and open boundaries.
Completed in 2022 in Suzhou, China, the Expansion and Renovation of the Primary School & Urban Infrastructure Multi-system Complex by Atelier Archmixing represents a bold rethinking of how educational architecture can coexist with—and actively reshape—urban infrastructure. Far from a conventional school extension, the project operates as a three-dimensional public system, integrating teaching spaces, landscape, parking, sports facilities, and urban circulation into a single, layered architectural framework.

Born from a seemingly modest commission and expanded through proactive architectural intervention, the project demonstrates how architects can move beyond object-based design to become mediators of complex urban relationships. It is a compelling model for urban regeneration through educational architecture, where limited land resources, rigid administrative boundaries, and diverse stakeholder demands are transformed into opportunities for spatial innovation.


From Fragmented Urban Greenbelt to Integrated Public System
The project site is defined by constraint. Long and narrow in plan, it sits between Kunshan Experimental Primary School to the east and the Kunshan Industrial Technology Research Institute to the west. At its northern and southern ends, it connects two major urban green spaces—Dayu Lake Park and Kunshan Forest Park—positioning it as a potential ecological and civic corridor within the city.
Initially, the commission called for a few small commercial structures placed along an existing linear greenbelt. However, deeper site analysis revealed an underground public parking facility beneath the landscape. Rather than treating these as separate systems, Atelier Archmixing proposed an integrated approach: a three-dimensional urban complex that would merge landscape, parking, commerce, and public circulation into a cohesive spatial strategy.


At the same time, the adjacent primary school faced acute spatial shortages. With no room for horizontal expansion, the school required new classrooms and sports facilities. Recognizing the overlap of needs, the architects proposed a unified solution—one that would address educational expansion, urban infrastructure, and public space simultaneously.
Architects as Active Urban Agents
This project exemplifies a shift in architectural practice, where designers take on an active role in coordinating between government bodies, educational institutions, and urban systems. Through continuous negotiation and strategic design thinking, Atelier Archmixing helped align fragmented interests into a shared vision.

Rather than viewing regulations and land-use boundaries as fixed constraints, the project reframes them as variables that can be reorganized through architectural intelligence. The result is not merely an expanded school or improved infrastructure, but a multi-system urban organism that maximizes the value of limited space.

Vertical Organization: Reclaiming Space Above the City
One of the project’s most defining strategies is vertical organization. Instead of expanding outward, the new school facilities rise above existing urban elements—greenbelts, fire lanes, and circulation routes—creating a layered spatial structure.
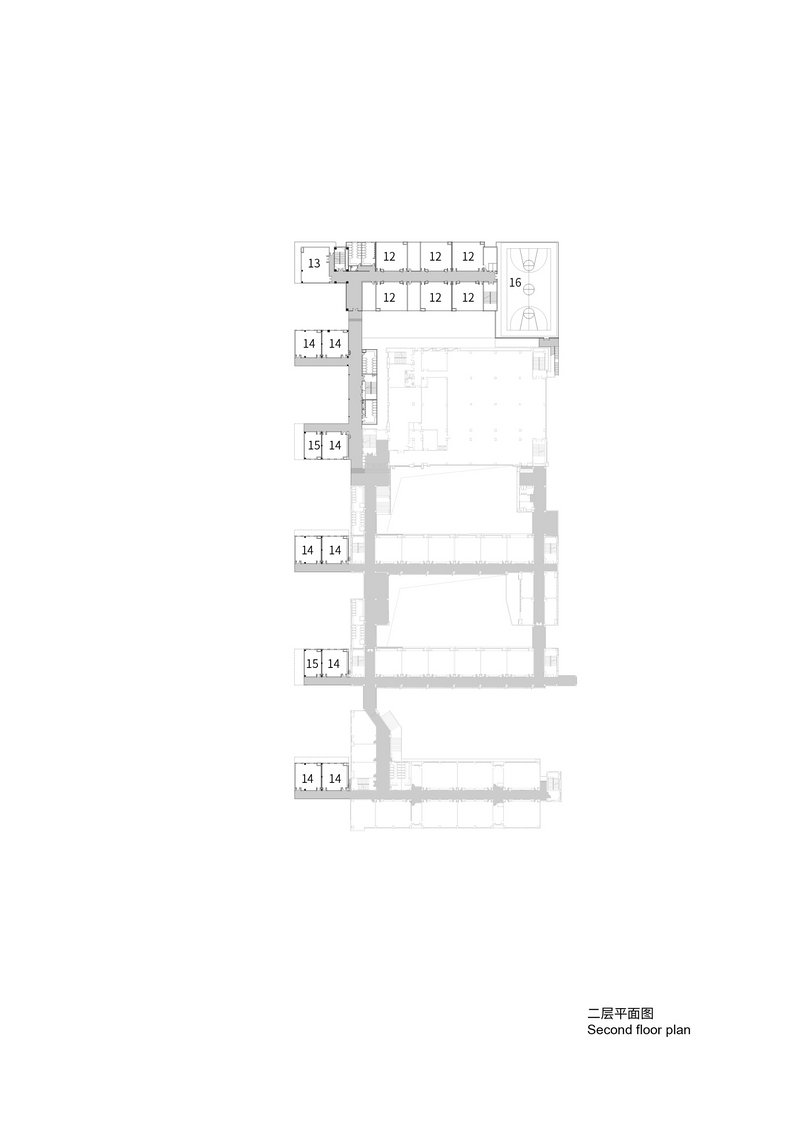
A steel structural system enables the construction of 24 new classrooms on the western side of the existing teaching building, with portions of the new volume cantilevering over the green corridor. This move preserves valuable ground-level green space while introducing new educational facilities within an extremely tight footprint.


Construction was carefully phased and restricted to the western and northern sides of the campus to ensure that teaching activities could continue uninterrupted. Upon completion, the new structures connect seamlessly to the existing school, forming a coherent campus that reads as both continuous and contemporary.
Learning Above the Landscape
The cantilevered classrooms establish a new spatial relationship between students and the city. Elevated above the greenbelt, the learning spaces overlook the linear park and extend visually toward the surrounding urban landscape.

This elevated position transforms the act of learning into an experience connected to nature and the city beyond the campus. The school no longer turns inward behind walls; instead, it engages the urban environment, allowing students to inhabit a space that is simultaneously educational, civic, and ecological.
Time-Sharing Use: Maximizing Urban Efficiency
The second major strategy underpinning the project is time-sharing use, a concept that allows the same spaces to serve different user groups at different times of day.
The architects reconceptualized the existing greenbelt as a three-dimensional green corridor composed of multiple stacked layers:

- Upper level: pedestrian pathways and landscaped public space
- Middle level: sunken plaza functioning as a transport hub and public gathering area
- Ground level: parking facilities and sports spaces
This vertical stacking enables an extraordinary density of uses without spatial conflict. During school hours, spaces prioritize student circulation, drop-off zones, and educational activities. Outside of peak times, the same areas become open public amenities for local residents.


The Sunken Plaza as Urban Interface
At the heart of the complex lies the sunken plaza, a flexible space that shifts identity throughout the day. During morning and afternoon peak hours, it functions as a drop-off and pick-up zone for parents, reducing congestion at street level and improving safety.

At other times, the plaza transforms into a public open space, offering seating, shade, and access to surrounding green areas. Courtyards carved into the underground parking structure introduce daylight and vegetation below ground, ensuring that even infrastructural spaces maintain a connection to nature.
Some underground areas double as sports facilities, shared by students and nearby residents according to a managed schedule. This careful orchestration of time and access ensures high utilization rates while fostering a sense of shared ownership.


Open Boundaries: Dissolving the School Wall
Traditionally, school campuses in dense Chinese cities are enclosed and inward-looking, separated sharply from their surroundings. This project deliberately challenges that model through a strategy of open boundaries.
A new west gate along the greenbelt redistributes circulation and eases pressure on the school’s main entrance. Instead of walls, the campus edge is defined by layered spatial interfaces—changes in elevation, program, and material that subtly regulate access without physical barriers.

The landscape design plays a critical role in this transition. Folded concrete planes rise gently from south to north, floating above the urban road and stitching together the two major parks at either end of the site. Architecture and topography merge to extend the urban green corridor through the school, rather than around it.
A Layered Spatial System
The completed complex operates as a carefully calibrated vertical sequence:
- Upper levels: teaching spaces and classrooms
- Middle levels: circulation, interaction, and public distribution areas
- Ground and underground levels: sports facilities, parking, and service infrastructure
Each layer maintains its own logic while contributing to the overall system. Students, teachers, parents, and city residents share the same spatial framework at different times, creating a dynamic urban ecology rather than a single-purpose facility.


Architecture as Infrastructure
One of the project’s most significant achievements lies in its fusion of architecture and infrastructure. Parking garages, fire lanes, and transport routes are not hidden or treated as secondary elements; instead, they are integral components of the architectural narrative.
Ramps, staircases, and vertical circulation cores connect all levels seamlessly, allowing people and vehicles to move fluidly through the complex. This spatial continuity reinforces the idea that infrastructure can be civic, humane, and spatially engaging.

Collaboration, Constraints, and Urban Innovation
Completed between 2019 and 2022, the project faced exceptional challenges, including complex stakeholder coordination and construction during a highly constrained period. Its success depended on close collaboration between architects, engineers, contractors, city officials, and school administrators.


Rather than compromising design ambition, these constraints sharpened the project’s focus. By aligning spatial design with construction management and policy objectives, the team transformed rigid administrative limits into drivers of innovation.


A Model for Future Urban Regeneration
The Expansion and Renovation of the Primary School & Urban Infrastructure Multi-system Complex stands as a prototype for future urban development in high-density cities. It demonstrates how limited land, competing demands, and fragmented systems can be reconciled through vertical thinking, shared use, and open boundaries.


More than an architectural object, the project is a living urban framework—one that supports education, public life, and ecological continuity while maximizing the efficiency of core spatial resources. It redefines the role of schools as not just places of learning, but as active participants in the urban fabric.

All the Photographs are works of Runzi Zhu
Popular Articles
Popular articles from the community
20 Most Popular Office Building Projects of 2025
From biophilic workspaces in India to net-positive energy offices in New Delhi, 20 office building projects that defined architecture in 2025.
boq architekti Fits a Gabled Family House onto a Tiny Moravian Hillside Plot with No Room for a Garden
A 115 square meter home in South Moravia trades a garden for a rooftop terrace and a fully glazed facade facing the village below.
1-1 Architects Builds a Nagoya House and Office from Decades of Stockpiled Timber
A 69-square-meter tower in dense residential Nagoya transforms surplus lumber into a home and workplace for a construction company.
Studio Gram Unfurls a Concrete Curve Through an Adelaide Queen Anne Villa
In Rose Park, a billowing concrete threshold stitches a century-old house to a sun-chasing pavilion organized around an existing pool.
Similar Reads
You might also enjoy these articles
Olio Towers: A Mid-Rise for Performers That Fuses Housing, Rehearsal, and Stage
Located blocks from Houston's Theater District, this modular tower stacks living units around a central performance atrium.
Oasis: Modular Green Housing Carved into Dhaka's Urban Fabric
A shortlisted Plugin Housing entry reclaims unauthorized settlements in Dhaka with stepped concrete volumes, green roofs, and ventilation-driven design.
Black Hole: A Floating Megastructure for the Post-Physical Era
Emiliano Mazzarotto envisions a spherical, self-scaling arena where e-sports, digital hotels, and holographic stadiums replace traditional public space.
Compact & Sustainable Living in Piraeus: A Four-Level Family Home Built Around Light and Air
A narrow townhouse in one of Greece's densest port cities uses a central atrium and passive strategies to house three generations under one roof.
Explore Architecture Competitions
Discover active competitions in this discipline
The International Standard for Design Portfolios
The Global Benchmark for Architecture Dissertation Awards
The Global Benchmark for Graduation Excellence
Challenge to design public laboratory
Comments (0)
Please login or sign up to add comments
No comments yet. Be the first to comment!