Exploring the Future: Innovating Education at Quantum Leap Elementary
What new teaching methods and technologies are being implemented at Quantum Leap Elementary?

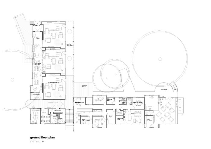
Located on a steeply sloping treed site, the Kennedy Nolan Research Primary School underwent a significant renovation to address difficult access, non-conforming facilities, and over-entitled areas. The project involved the demolition of multiple outdated buildings, making way for a central tiered gathering and play area that offers universal access and improved wayfinding and safety across the site.
One of the main additions to the school is the new Junior School building situated at the front of the school, enhancing the school's presence and sense of arrival. This new building offers a flexible learning environment that supports both project-based and outdoor learning. The adjacent classroom block underwent a refurbishment to create a new Administration and Art Centre with improved staff and administration facilities, increased flexibility, and meeting areas with a strong connection to the external environment.
In addition to enhancing the school's learning environments, the new building and landscape works were also carefully sited to protect existing significant trees and improve the overall enjoyment and use of the site. The school's significant stormwater issues were also addressed in the renovation.
Kennedy Nolan Research Primary School's renovation has transformed the school's facilities, making it a more accessible and sustainable learning environment that meets the needs of modern-day education. The project's careful consideration of the site's existing landscape and trees reflects the school's commitment to creating a harmonious and enjoyable learning environment.























Popular Articles
Popular articles from the community
The Ken Roberts Memorial Delineation Competition (Krob)
As the most senior architectural drawing competition currently in operation anywhere in the world, it draws hundreds of entries each year, awarding the very best submissions in a series of medium-based categories.
On the Brooks House by Monsoon Collective – A Contemporary Kerala Home Rooted in Tradition
Kerala home blending tradition and modernity with water-inspired design, brick architecture, courtyard planning, and sustainable rainwater harvesting strategies.
Inverted Architecture Installation by Studio Link-Arc: Exploring the Intersection of Architecture and Living Organisms
Inverted Architecture Installation by Studio Link-Arc blends mycelium, sustainability, inverted design, ecological cycles, and urban adaptive architecture in Shenzhen.
Atelier Macri Concept Store Interior Design by CASE-REAL
Atelier Macri store features a "ko" counter, walnut wood details, cork displays, blending retail, gallery, and seamless customer experiences.
Similar Reads
You might also enjoy these articles
The Ken Roberts Memorial Delineation Competition (Krob)
As the most senior architectural drawing competition currently in operation anywhere in the world, it draws hundreds of entries each year, awarding the very best submissions in a series of medium-based categories.
A Contemporary Take on Iranian Residential Architecture
A modern interior design in Mashhad that reinterprets brick, light, and spatial flow to create a warm, contemporary residential architecture.
Franche-Comté Advanced School of Engineering by Dominique Coulon & associés, Besançon
A flexible engineering school immersed in woodland, combining concrete minimalism, adaptable spaces, and natural light to support evolving educational environments.
Waterfront Redevelopment and Urban Revitalization in Mumbai: Forging a New Dawn for Darukhana
A transformative waterfront redevelopment project reimagining Darukhana’s shipbreaking heritage into an inclusive urban future.
Explore Architecture Competitions
Discover active competitions in this discipline
The International Standard for Design Portfolios
The Global Benchmark for Architecture Dissertation Awards
The Global Benchmark for Graduation Excellence
Challenge to design public laboratory
Comments (0)
Please login or sign up to add comments
No comments yet. Be the first to comment!