Green Architecture Residential Building in Tehran: A Sustainable Oasis in the Heart of the City
The article explores Persica Residential Building in Tehran, a green architecture marvel blending sustainability with modern urban living and community spaces.
Persica Residential Building: A Vision of Green Architecture in Tehran
In the bustling metropolis of Tehran, where urban sprawl and pollution often overshadow green spaces, the Persica Residential Building by Boozhgan Studio redefines what it means to live sustainably in a modern city. Completed in 2023, this eleven-story structure stands as a beacon of eco-conscious design, integrating green terraces, resilient vegetation, and public spaces to provide a refreshing contrast to the dense urban fabric of Tehran. Through a thoughtful blend of architectural innovation and nature, Persica creates a sustainable and pleasant environment that enhances both resident well-being and the surrounding community.


Embracing Sustainable Design Principles in Tehran’s Urban Landscape
As Tehran faces the challenges of rapid urbanization, pollution, and loss of green spaces, the need for environmentally sustainable architecture has never been more urgent. Boozhgan Studio’s approach with Persica reflects this necessity by creating a vertical green space that spans multiple floors, turning the building into a “green oasis” amidst the concrete landscape. By choosing resilient plant species from Iran’s Hyrcanian forests, the design incorporates native flora that thrives in Tehran’s climate while minimizing maintenance.
This strategy not only reduces the building's ecological footprint but also contributes to improving air quality, regulating temperature, and providing natural shading. Through these principles, Persica stands as a landmark for green architecture in Tehran, setting a new standard for sustainable residential buildings in the region.


The Role of Vertical Green Spaces in Urban Residential Design
The most striking feature of Persica is its vertical green terraces, which host an array of trees and plants carefully selected to complement Tehran’s climate. This approach addresses the city's pressing need for green spaces, allowing nature to coexist with urban life. The deep terraces on each floor provide ample soil depth, allowing trees to root firmly and thrive over time.
Each level of greenery serves as a living facade that benefits both residents and the neighborhood by improving air quality and reducing urban heat. The visually stunning facade not only enhances the building’s aesthetic but also embodies the principles of sustainable urban living, demonstrating how residential design can seamlessly incorporate nature.


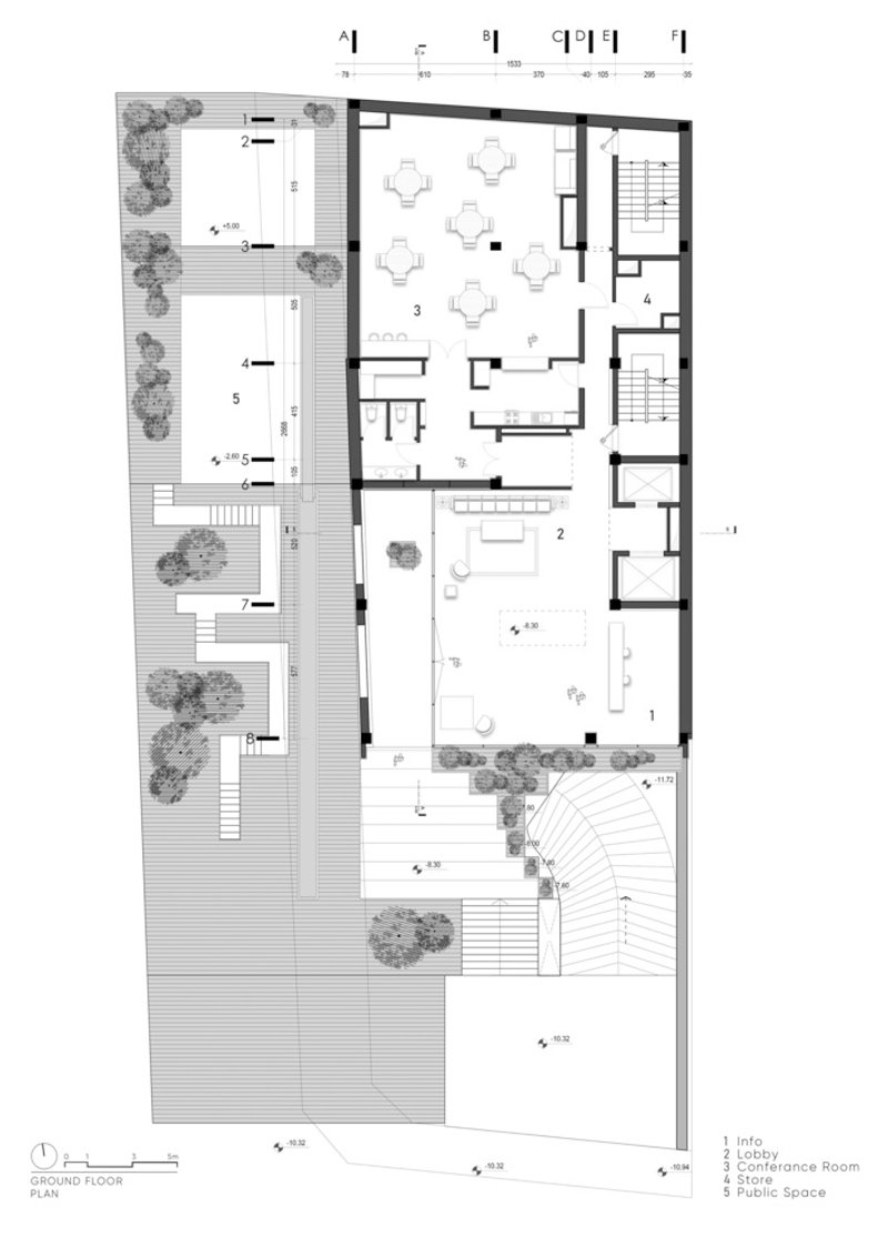
Integrating Public Spaces: A Unique Approach in Tehran
An innovative aspect of the Persica project is the revitalization of a stream that runs adjacent to the building. Boozhgan Studio recognized the potential of this natural feature, converting it into a thoughtfully designed public area. In most of Tehran, streams are overlooked, inaccessible, and often neglected, but Persica’s design incorporates this watercourse as a public space accessible to both residents and the community.
This multifunctional area doubles as a designated gathering spot during emergencies, providing added functionality and reinforcing the importance of integrating public spaces into residential architecture. This design decision is not only unique for Tehran but also promotes a community-oriented approach, encouraging interaction between residents and the city.


Interior Design and Facilities: Balancing Functionality and Luxury
Inside Persica, each level offers thoughtfully designed living spaces tailored to comfort and elegance. The building’s first floor features a welcoming lobby and a gathering hall, while the second floor houses a fully equipped gym, providing residents with fitness facilities just steps away from their homes. From the third floor upward, each level accommodates a single, spacious residential unit, ensuring privacy and ample space for every household.
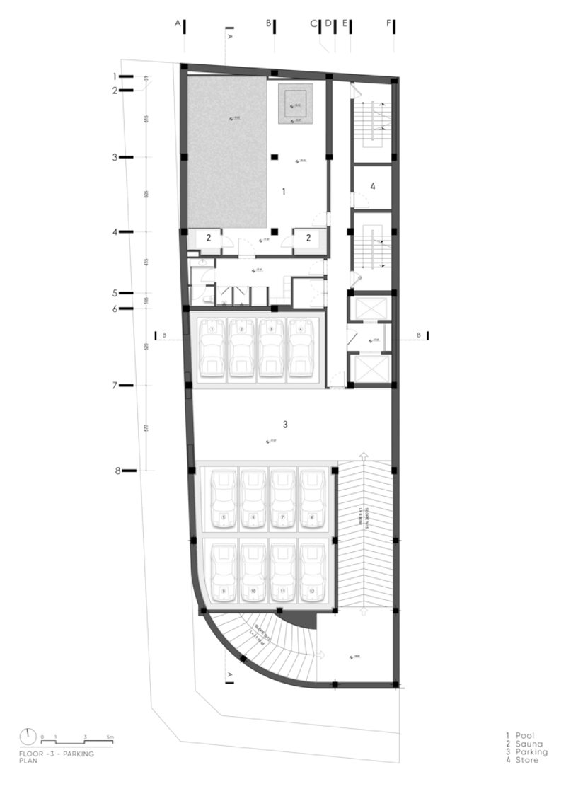
In the basement, the building provides parking facilities and even a swimming pool, delivering a range of amenities that elevate residents' lifestyles. The interior design seamlessly connects with the exterior, as each unit opens to the lush green terraces, giving residents an immersive experience of both luxury and sustainability.


A Bird’s-Eye View of Tehran: Persica’s Stunning Cityscape Vistas
Located within Tehran’s urban center, Persica provides panoramic views that reflect both the beauty and challenges of city life. From its higher floors, residents can gaze out over the sprawling cityscape, a reminder of the need for innovative, sustainable solutions in urban design. These sweeping views are more than just a visual perk; they create a calming space for residents, offering a peaceful contrast to the dense environment surrounding them.
The building’s green terraces serve not only as aesthetic additions but also as natural sound barriers, mitigating the noise from the bustling city streets below. This integration of natural elements in a dense urban setting helps create a serene residential experience, where nature and city life blend harmoniously.


The Impact of Green Architecture on Tehran’s Future
With its integration of sustainable materials, native plants, and community-focused spaces, Persica represents the potential of green architecture to reshape Tehran's urban future. The building’s use of native vegetation reduces water usage, while the green terraces combat the urban heat island effect, a common issue in densely populated cities like Tehran.
As more architects and developers look to sustainable solutions, the success of Persica highlights the feasibility and benefits of eco-friendly design, even within large, crowded cities. The project exemplifies how thoughtful architecture can contribute to a city’s environmental resilience, inspire future designs, and promote a higher quality of life for its residents.


A Model for Sustainable Living in Iran
Persica Residential Building is a testament to Boozhgan Studio’s vision of green architecture, offering a sustainable and aesthetically pleasing solution to the challenges facing Tehran’s urban environment. Through its innovative design, the building redefines residential architecture in the city, proving that green living spaces can thrive even in the heart of a busy metropolis. As cities worldwide grapple with pollution, overcrowding, and climate change, Persica serves as an inspiring model for sustainable, community-centered design that can pave the way for a greener future


All photographs are work ofMohammad Hassan Ettefagh
Popular Articles
Popular articles from the community
A Contemporary Take on Iranian Residential Architecture
A modern interior design in Mashhad that reinterprets brick, light, and spatial flow to create a warm, contemporary residential architecture.
The Ken Roberts Memorial Delineation Competition (Krob)
As the most senior architectural drawing competition currently in operation anywhere in the world, it draws hundreds of entries each year, awarding the very best submissions in a series of medium-based categories.
An Miên Lumière Cafe by xưởng xép, Ho Chi Minh City, Vietnam
An industrial-inspired café where layered steel and warm light create a dynamic, immersive environment shaped by reflection, depth, and perception.
Treehouse Apartment: A Warm Timber Interior Blending Craft, Play, and Contemporary Living
Warm timber apartment with integrated treehouse, combining natural materials, craftsmanship, and playful design to create a flexible, family-oriented living environment.
Similar Reads
You might also enjoy these articles
The Ken Roberts Memorial Delineation Competition (Krob)
As the most senior architectural drawing competition currently in operation anywhere in the world, it draws hundreds of entries each year, awarding the very best submissions in a series of medium-based categories.
Waterfront Redevelopment and Urban Revitalization in Mumbai: Forging a New Dawn for Darukhana
A transformative waterfront redevelopment project reimagining Darukhana’s shipbreaking heritage into an inclusive urban future.
OUT-OF-MAP: A Call for Postcards on Feminist Narratives of Public Space
Rhizoma Design and Research Lab invites artists, designers, architects, researchers, and students to reflect on how feminist perspectives can reshape public space. Selected works will be exhibited in Barcelona, October 2026. Submissions open until 15 April 2026.
Documentation Work on Buddhist Wooden Temple
Architectural syncretism and cultural hybridity: A comparative study of the Buddhist temples in Chattogram Hill tracks
Explore Architecture Competitions
Discover active competitions in this discipline
The International Standard for Design Portfolios
The Global Benchmark for Architecture Dissertation Awards
The Global Benchmark for Graduation Excellence
Challenge to design mud housing for contemporary communities
Comments (0)
Please login or sign up to add comments
No comments yet. Be the first to comment!