Green-Centric House Design: Bắp’s House by 90+2 Architects
This article highlights a nature-centered home design that blends mindfulness, sustainability, and architecture in harmony.
Bắp’s House, designed by 90+2 Architects, is a stunning residential project completed in 2023 in Vietnam. Covering an area of 365 square meters, the house exemplifies a harmonious relationship between architecture, nature, and mindfulness. The lead architects, Nguyen Quang Huu Tuan and Phan An, envisioned a home where greenery and meditation take center stage, fostering a serene and connected living environment.




A Vision Rooted in Nature
The Heart of the Home
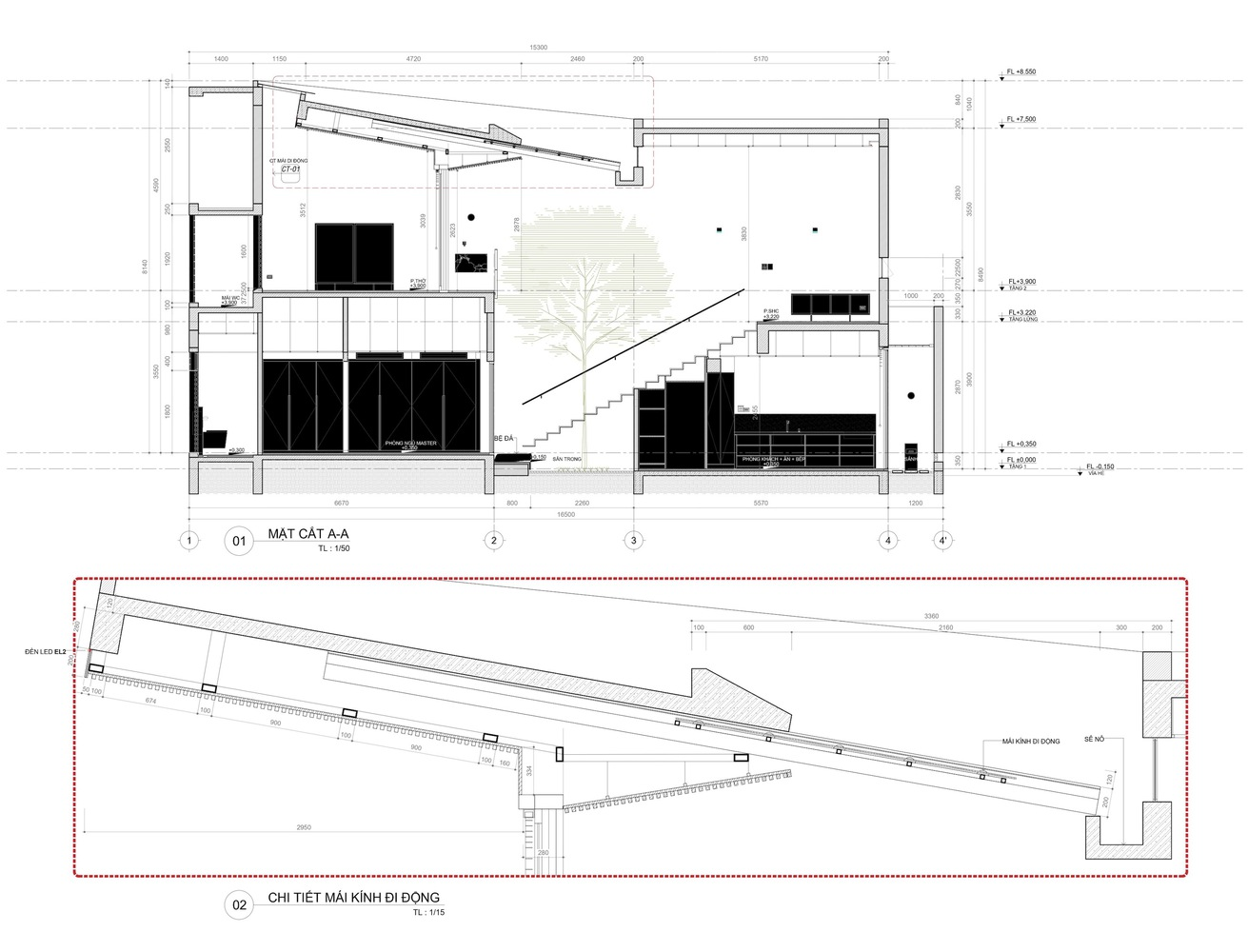
The central focus of Bắp’s House is a tree, symbolizing life and connection. All spaces in the house are oriented toward this green heart, creating an environment where nature and architecture seamlessly blend. The owner, Ms. Vi, sought to minimize personal spaces and prioritize shared areas, allowing the house to become a space for connection, reflection, and community.





Green Connections and Spatial Harmony
The design employs a tiered spatial layout, enabling indoor greenery to flourish while connecting various functional areas of the home. The textures and rhythm of these connected spaces allow natural light to filter through, enhancing the warmth and comfort of the interiors. The front of the house features a mango tree, while the interiors are punctuated with white tones and monolithic designs that emphasize the bond between the living spaces and nature.





Sustainable and Adaptive Design
Natural Air Conditioning
The integration of green spaces throughout the home creates a natural air-conditioning system. This not only cools the house but also fosters a balanced and fulfilling atmosphere for daily activities. By prioritizing communal areas over private spaces, the design promotes a sense of openness and connectivity while maintaining a serene and natural ambiance.




Passive Ventilation and Subtle Aesthetics
The house utilizes passive ventilation, with gaps and openings that allow air to circulate naturally. Neutral tones, simple lines, and understated materials create a calming aesthetic that complements the surrounding greenery. The overall design ensures that every corner of the house feels connected to nature, fostering a tranquil and meditative environment.


A Space for Mindfulness and Meditation
Designed for Conscious Living
Bắp’s House is not just a residence but a sanctuary for mindfulness and meditation. It was designed to host Buddhist sessions, with spaces that encourage inward reflection and spiritual growth. The worship area is strategically placed to take full advantage of natural light and greenery, blending the sacred with the serene.



Architectural Symbolism
The silver bow-shaped staircase and extended corridors symbolize a journey toward consciousness and enlightenment. These design elements guide residents and visitors through the home, creating a seamless flow between private and communal spaces while reinforcing the meditative essence of the house.




Bắp’s House by 90+2 Architects is a testament to the transformative power of nature-inspired design. By centering the home around greenery and mindfulness, the architects have created a space that nurtures both the body and soul. This green-centric design not only fosters a connection with nature but also redefines the role of architecture in promoting a balanced and conscious lifestyle.


All Photographs are works of Truong Nguyen
Popular Articles
Popular articles from the community
Alton Cliff House: A Harmonious Retreat by f2a Architecture in Lake Country, Canada
Alton Cliff House blends corten steel, prefabrication, and sustainable design, creating a luxurious, energy-efficient retreat perched on Canadian cliffs.
The Ken Roberts Memorial Delineation Competition (Krob)
As the most senior architectural drawing competition currently in operation anywhere in the world, it draws hundreds of entries each year, awarding the very best submissions in a series of medium-based categories.
Free Architecture Competitions You Can Enter Right Now
No entry fees, real prizes. Here are the best free architecture competitions open for submissions in 2026.
Similar Reads
You might also enjoy these articles
The Ken Roberts Memorial Delineation Competition (Krob)
As the most senior architectural drawing competition currently in operation anywhere in the world, it draws hundreds of entries each year, awarding the very best submissions in a series of medium-based categories.
Waterfront Redevelopment and Urban Revitalization in Mumbai: Forging a New Dawn for Darukhana
A transformative waterfront redevelopment project reimagining Darukhana’s shipbreaking heritage into an inclusive urban future.
OUT-OF-MAP: A Call for Postcards on Feminist Narratives of Public Space
Rhizoma Design and Research Lab invites artists, designers, architects, researchers, and students to reflect on how feminist perspectives can reshape public space. Selected works will be exhibited in Barcelona, October 2026. Submissions open until 15 April 2026.
Documentation Work on Buddhist Wooden Temple
Architectural syncretism and cultural hybridity: A comparative study of the Buddhist temples in Chattogram Hill tracks
Explore Architecture Competitions
Discover active competitions in this discipline
The International Standard for Design Portfolios
The Global Benchmark for Architecture Dissertation Awards
The Global Benchmark for Graduation Excellence
Challenge to reimagine the Iron Throne
Comments (0)
Please login or sign up to add comments
No comments yet. Be the first to comment!