H-House by Studio Nirbaadh: Contemporary Urban House Design in India
A climate-responsive, contemporary urban house in India by Studio Nirbaadh, blending minimalism, material honesty, and spatial harmony within a narrow site.
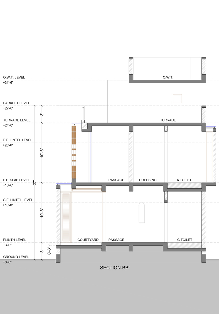
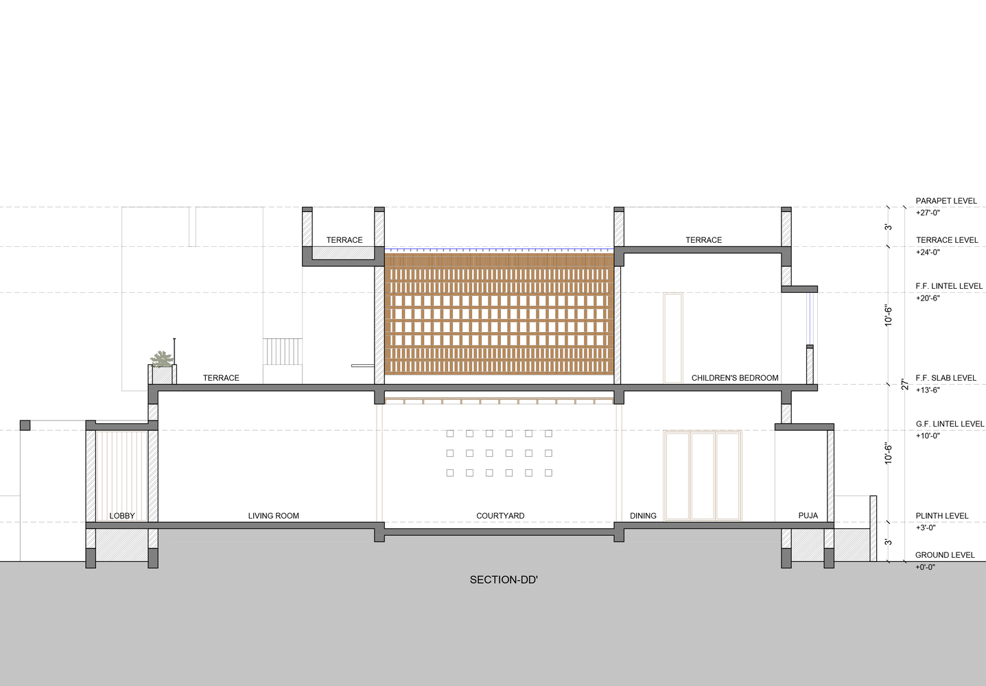
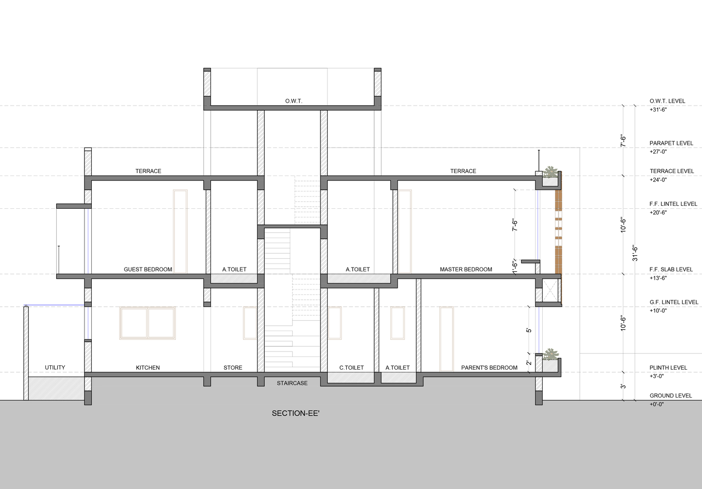
Nestled in the dense urban fabric of Koregaon, Satara, the H-House by Studio Nirbaadh is a 2,850 sq.ft. residential marvel that embodies the principles of contemporary urban house design in India. Designed by lead architects Dhanesh Gandhi and Tanushree Oswal, the project transforms a constrained 33' x 78' plot into a harmonious blend of climatic intelligence, spatial clarity, and material honesty.


Site and Planning Concept
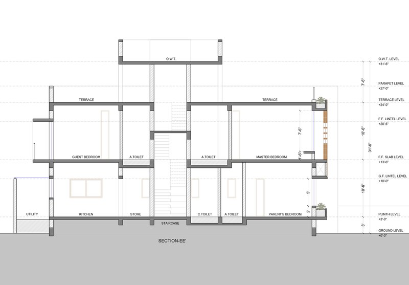
The plot’s linear proportions shaped the architectural response, resulting in a plan structured around three parallel longitudinal lines. These axes define spatial distribution and circulation, while also inspiring the home’s “H” identity. All habitable spaces are aligned along these lines, ensuring a seamless flow of movement and natural light across the narrow plot. The central axis forms the main circulation spine, while the flanking lines determine structural and functional zones.



The Courtyard as a Breathing Spine
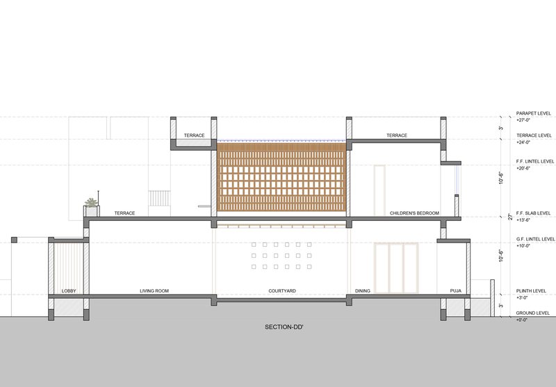
A defining element of the H-House is its elongated linear courtyard along the northern edge. This semi-open space serves as the home’s breathing spine, drawing natural light deep inside and facilitating cross ventilation. Functioning as both a transitional zone and an interactive social space, it supports morning rituals, enhances passive cooling, and connects residents to nature—an essential principle in climate-responsive Indian residential design.





Facade Design and Climatic Response
Facing the west, the facade responds thoughtfully to the region’s harsh sun and microclimate. A custom-designed brick screen acts as a double skin, filtering light, casting intricate shadows, and reducing heat gain. Rooted in local materiality and craftsmanship, this latticework gives the frontage an earthy aesthetic while providing privacy and solar protection. Architectural gestures such as bold projections, slit windows, and integrated flower beds layer functionality with visual depth.



Material Palette and Interior Language
The home’s material language reflects minimalism and rustic elegance, with exposed brick, natural wood, and raw textures creating a grounded atmosphere. Inside, open layouts maintain visual continuity, with the courtyard as the central focal point. Light filters through jalis, bounces off textured walls, and interacts with planting to create dynamic ambiances throughout the day. The restrained palette celebrates artisanal craftsmanship while ensuring the interiors remain calm and clutter-free.





Sustainability and Contextual Sensitivity
H-House stands as a sustainable urban residence that engages intelligently with its environment. Its climatic responsiveness, passive cooling strategies, and natural ventilation reduce energy dependency. The design harmonizes privacy with openness, ensuring comfort while embracing the context of dense Indian neighborhoods.





H-House by Studio Nirbaadh is more than a residence—it’s a poetic architectural statement in contemporary urban house design in India. By balancing climatic awareness, material authenticity, and spatial precision, it sets a benchmark for sustainable and contextually rooted modern living.




Popular Articles
Popular articles from the community
Split House: A Compact Urban Home Blending Privacy, Light, and Flexible Living in Japan
Compact Japanese home featuring DOMA space, flexible café potential, passive lighting, privacy zoning, and sustainable urban living design.
Fifth NRE Jazz Club – De Bever Architecten: Eindhoven’s Revitalized Cultural Hub
Historic gas factory transformed into Fifth NRE Jazz Club blending modern sustainability, jazz culture, dining, and heritage architecture seamlessly.
Gads Hill Early Learning Center by JGMA: Adaptive Reuse Shaping Community-Focused Educational Architecture
Adaptive reuse transforms fragmented structure into vibrant early learning center with playful façade, natural light, and community-focused sustainable design.
Alton Cliff House: A Harmonious Retreat by f2a Architecture in Lake Country, Canada
Alton Cliff House blends corten steel, prefabrication, and sustainable design, creating a luxurious, energy-efficient retreat perched on Canadian cliffs.
Similar Reads
You might also enjoy these articles
Free Architecture Competitions You Can Enter Right Now
No entry fees, real prizes. Here are the best free architecture competitions open for submissions in 2026.
Top 15 Architecture Competitions to Enter in 2026
From student-friendly idea competitions to prestigious international awards, here are the best architecture competitions open for entries in 2026. Updated regularly.
DIY & Engineering in Computational Design : Enter the BeeGraphy Design Awards
Showcase Your Creativity with Computational Design and Open Source Projects

Innovative Design Solutions: Award-Winning Projects from Recent Architecture Competitions
Exploring award-winning architectural projects shaping the future of design, sustainability, and community.
Explore Architecture Competitions
Discover active competitions in this discipline
The International Standard for Design Portfolios
The Global Benchmark for Architecture Dissertation Awards
The Global Benchmark for Graduation Excellence
Challenge to reimagine the Iron Throne
Comments (0)
Please login or sign up to add comments
No comments yet. Be the first to comment!