Historic Courtyard House Renovation: The Transformation of Vasahuset in Uppsala
The Courtyard House in Uppsala showcases a historic courtyard house renovation, blending heritage restoration with modern functionality in a serene setting.
The Courtyard House in Uppsala, designed by Jägnefält Milton, is a remarkable example of a historic courtyard house renovation. Originally built in the early 1900s, the Vasahuset farmhouse has undergone multiple transformations over the years. The latest renovation restores its architectural integrity while adapting it for modern residential and office use.



Preserving Architectural Heritage
Vasahuset was initially designed in the German Art Nouveau style by architect Erik Hahr between 1907 and 1911. Over time, various modifications altered its original character, including changes to windows, doors, and floor levels. The latest renovation carefully preserves its historic features while reinforcing structural integrity. The existing windows are restored, and the plastered facades are renewed to match the original aesthetic.


Thoughtful Renovation and Adaptive Reuse
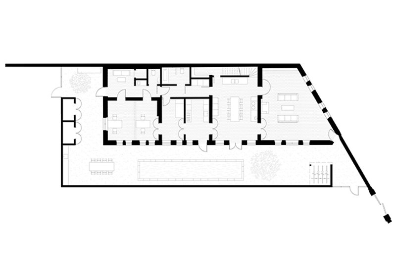
The renovation prioritizes the building’s dual function as a family residence and office. A new entrance from the garden enhances accessibility while blending seamlessly with the existing window and door rhythm. The interior layout is reorganized, restoring the original floor level to improve room proportions and ceiling height. This enhances natural light and spatial flow, creating a harmonious living environment.


Roof Restoration and Skylight Integration
The building's aging roof is replaced with a new folded sheet metal roof that maintains the original eaves and gutter height. A new dormer on the southwest side and an angled roof section on the southeast side introduce additional attic bedrooms without altering the historic façade. A generous skylight at the rear illuminates the staircase and kitchen, creating unexpected yet functional lighting solutions.


Creating a Private Courtyard Oasis
One of the defining features of this historic courtyard house renovation is the reimagining of outdoor spaces. A new boundary wall shields the property from nearby parking lights and noise, creating a secluded green sanctuary. Climbing plants enhance the visual appeal of the enclosed courtyard, providing a tranquil retreat within an urban setting. Functional elements like bicycle storage and entry points are integrated seamlessly into the layout.


Restoring Functionality with Respectful Design
This renovation is a testament to the importance of thoughtful restoration in preserving architectural heritage. By carefully balancing historic integrity with contemporary needs, the project ensures the building’s continued use while enhancing its aesthetic and functional qualities. The result is a home and workspace that honors the past while embracing the future.




The Courtyard House in Uppsala stands as an exemplary model of historic courtyard house renovation. Jägnefält Milton’s respectful yet innovative approach breathes new life into Vasahuset, maintaining its historical charm while making it a functional and beautiful space for modern living. This transformation highlights how architectural heritage can be preserved through carefully considered interventions that enhance both form and function.




All Photographs are works of Mikael Olsson
Popular Articles
Popular articles from the community
Fifth NRE Jazz Club – De Bever Architecten: Eindhoven’s Revitalized Cultural Hub
Historic gas factory transformed into Fifth NRE Jazz Club blending modern sustainability, jazz culture, dining, and heritage architecture seamlessly.
Split House: A Compact Urban Home Blending Privacy, Light, and Flexible Living in Japan
Compact Japanese home featuring DOMA space, flexible café potential, passive lighting, privacy zoning, and sustainable urban living design.
Alton Cliff House: A Harmonious Retreat by f2a Architecture in Lake Country, Canada
Alton Cliff House blends corten steel, prefabrication, and sustainable design, creating a luxurious, energy-efficient retreat perched on Canadian cliffs.
Similar Reads
You might also enjoy these articles
Free Architecture Competitions You Can Enter Right Now
No entry fees, real prizes. Here are the best free architecture competitions open for submissions in 2026.
Top 15 Architecture Competitions to Enter in 2026
From student-friendly idea competitions to prestigious international awards, here are the best architecture competitions open for entries in 2026. Updated regularly.
DIY & Engineering in Computational Design : Enter the BeeGraphy Design Awards
Showcase Your Creativity with Computational Design and Open Source Projects

Innovative Design Solutions: Award-Winning Projects from Recent Architecture Competitions
Exploring award-winning architectural projects shaping the future of design, sustainability, and community.
Explore Architecture Competitions
Discover active competitions in this discipline
The International Standard for Design Portfolios
The Global Benchmark for Architecture Dissertation Awards
The Global Benchmark for Graduation Excellence
Challenge to reimagine the Iron Throne
Comments (0)
Please login or sign up to add comments
No comments yet. Be the first to comment!