House Écorce by Benoit Rotteleur Architecte – A Vertical Cork-Clad Eco Home in the Heart of Malakoff
House Écorce is a vertical cork-clad eco home in Malakoff, blending natural materials, compact design, and warm light-filled living spaces.
Nestled in a serene alleyway in Malakoff, just outside Paris, House Écorce by Benoit Rotteleur Architecte redefines compact urban living through sustainable design and bold vertical architecture. Surrounded by charming workers’ houses, old ateliers, and lush vegetation, the residence provides a peaceful retreat for a family of four seeking both connection to nature and contemporary comfort.



A Bold Vertical Concept on a Narrow Urban Plot
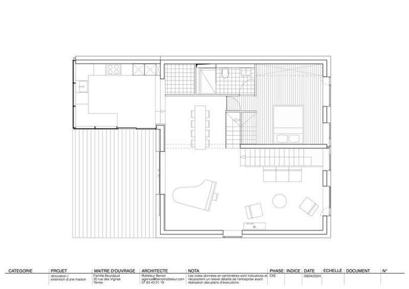
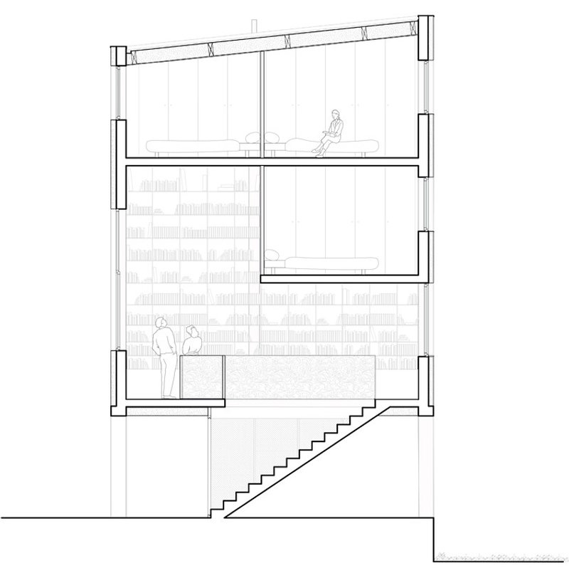
Built on a narrow and challenging site, the project demanded an innovative approach to maximize both space and functionality. The architects chose to develop upward, creating a three-level vertical home entirely wrapped in natural cork. Suspended above the street on a refined concrete portico, the structure becomes an elevated “urban cabin,” blending privacy with openness.
This unique cork façade not only defines the home’s organic appearance but also reinforces its ecological ambitions. Cork, being a natural, bio-sourced material, provides exceptional insulation and moisture regulation while ensuring durability and low environmental impact.




Light-Filled Living Spaces and Sculptural Circulation
Inside, House Écorce reveals a warm, minimalistic interior shaped by light, wood, and raw concrete. The first level serves as the main family living space, designed as an open, double-height volume that enhances natural lighting and spatial efficiency. A striking, sculptural staircase anchors the room, subtly separating the kitchen from the living area without breaking visual continuity.
Staircases leading to the upper bedroom levels are cleverly integrated into the built-in furniture, ensuring fluid movement throughout the narrow vertical layout while saving valuable square meters.




A Seamless Dialogue Between Indoors and Outdoors
At street level, the concrete portico forms a transparent connection between the interior and the garden. Framed by glass partitions, the raw concrete staircase at the center acts as a symbolic threshold between public and private zones, guiding visitors from the lively alleyway to the more intimate spaces above.
The garden-facing façade allows the living area to extend outward, creating a peaceful green refuge that enriches daily life.




Sustainable Architecture Rooted in Natural Materials
From its conception, House Écorce was designed as an environmentally responsible dwelling. The cork shell—treated to be hydrophobic for durability—provides superior thermal and acoustic insulation, contributing to year-round comfort. A centrally placed wood stove beneath the double-height ceiling heats the entire home naturally, with warmth circulating efficiently through all three levels.
The combination of cork, wood, and exposed concrete gives the residence a tactile, authentic character while meeting modern sustainability standards.





All the photographs are works of Antoine Seguin
Popular Articles
Popular articles from the community
Magic Box Office Barcelona Innovative Sustainable Workplace Design
Innovative sustainable office design featuring triangular form, ceramic façade, flexible interiors, natural light optimization, and creative workspace for modern work culture.
Alton Cliff House: A Harmonious Retreat by f2a Architecture in Lake Country, Canada
Alton Cliff House blends corten steel, prefabrication, and sustainable design, creating a luxurious, energy-efficient retreat perched on Canadian cliffs.
Split House: A Compact Urban Home Blending Privacy, Light, and Flexible Living in Japan
Compact Japanese home featuring DOMA space, flexible café potential, passive lighting, privacy zoning, and sustainable urban living design.
20 Most Popular Commercial Architecture Projects of 2025
From sustainable market concepts to heritage factories, the commercial buildings and proposals that drew the most attention on uni.xyz this year.
Similar Reads
You might also enjoy these articles
Filtering Space: A Gradual Spatial Experience
From urban intensity to spatial calm.
The Ken Roberts Memorial Delineation Competition (Krob)
As the most senior architectural drawing competition currently in operation anywhere in the world, it draws hundreds of entries each year, awarding the very best submissions in a series of medium-based categories.
Waterfront Redevelopment and Urban Revitalization in Mumbai: Forging a New Dawn for Darukhana
A transformative waterfront redevelopment project reimagining Darukhana’s shipbreaking heritage into an inclusive urban future.
OUT-OF-MAP: A Call for Postcards on Feminist Narratives of Public Space
Rhizoma Design and Research Lab invites artists, designers, architects, researchers, and students to reflect on how feminist perspectives can reshape public space. Selected works will be exhibited in Barcelona, October 2026. Submissions open until 15 April 2026.
Explore Architecture Competitions
Discover active competitions in this discipline
The International Standard for Design Portfolios
The Global Benchmark for Architecture Dissertation Awards
The Global Benchmark for Graduation Excellence
Challenge to reimagine the Iron Throne
Comments (0)
Please login or sign up to add comments
No comments yet. Be the first to comment!