Innovative Kindergarten Design: A Deep Dive into Linhai Xiecheng Kindergarten
This article explores Linhai Xiecheng Kindergarten's innovative design, blending educational spaces with nature, fostering creativity and interaction among children in Taizhou, China.
Linhai Xiecheng Kindergarten, designed by Atelier RenTian, represents a pinnacle in innovative kindergarten design. Nestled in the bustling city of Taizhou, Zhejiang Province, China, this educational facility is tailored to accommodate 360 children, offering a nurturing environment that blends play with learning.




Design Philosophy: Children's Big Toys
Embracing Nature and Imagination
At the heart of Linhai Xiecheng Kindergarten's design philosophy is the concept of "children's big toys" - a learning environment that is both comforting and stimulating. The design intricately weaves natural elements with the built environment, encouraging children to engage with the changing seasons and fostering imagination and creativity.







Overcoming Spatial Challenges
Unique Spatial Formulation
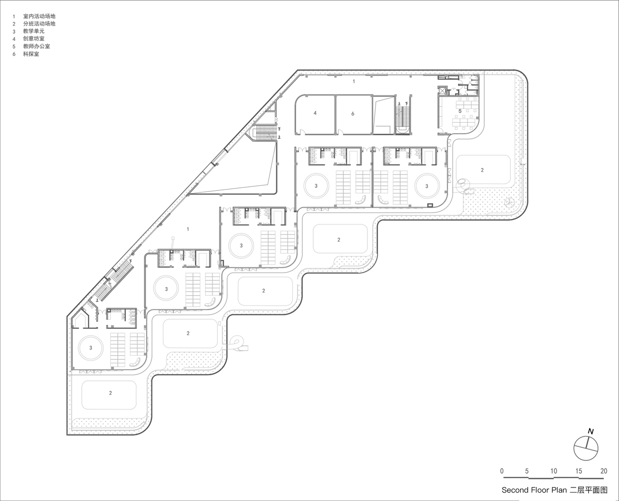
Faced with a trapezoidal plot, Atelier RenTian ingeniously breaks away from traditional kindergarten layouts. The design extends the circulation space into multifunctional indoor and outdoor areas, each themed to support varied learning and play activities. This spatial expansion creates a vibrant setting where education and entertainment intersect.







Architectural Innovations
Integration of Garden Courtyards
A standout feature of Linhai Xiecheng Kindergarten is the integration of garden courtyards between teaching spaces. These courtyards not only introduce natural light and air but also serve as dynamic outdoor classrooms, blurring the lines between indoor and outdoor learning environments.





Flexible Learning Spaces
The kindergarten employs a modular approach to its teaching units, allowing for versatile indoor activity areas complemented by class-specific outdoor spaces. This flexibility supports a more open and integrated spatial arrangement, encouraging interaction and exploration among children.




Prioritizing Environmental Affordance
Designing with "Availability" in Mind
The concept of "availability" plays a central role in the kindergarten's design, aiming to enrich educational experiences through environmental interaction. Spaces are crafted to promote discovery and curiosity, enabling children to uncover new possibilities within their surroundings.


Cultivating Emotional and Social Development
Creating Intimate and Public Spaces
Design elements such as hidden corners and low areas cater specifically to children's scales, nurturing their sense of privacy and independence. Conversely, communal areas like libraries and atriums with skylights and play facilities foster social interaction and community feeling among the young learners.



Encouraging Age-Integrated Activities
Emphasizing Social Integration
Drawing inspiration from modern early childhood education theories, Linhai Xiecheng Kindergarten prioritizes spaces that facilitate interaction across different age groups. This approach not only aids in psychological and social development but also enriches the learning environment, making it more inclusive and dynamic.






Setting a New Standard in Kindergarten Design
Linhai Xiecheng Kindergarten by Atelier RenTian is a testament to the transformative potential of innovative kindergarten design. Through its thoughtful integration of natural elements, flexible learning spaces, and emphasis on environmental and social affordance, the project sets a new benchmark for future educational architecture.





All photographs are work of Inter_mountain images
Popular Articles
Popular articles from the community
Flamboyant House by Juliana Camargo + Prumo Projetos
Modern Brazilian house integrating existing tree, pool, and volumes with glass, wood, and transitional spaces blending interior, exterior, and landscape seamlessly.
Louis Malle Cinema: A Limestone Cultural Landmark Revitalizing Community Life in Prayssac
Limestone cinema extension with public forecourt, blending heritage and modern design to create flexible cultural spaces and strengthen community interaction.
Inverted Architecture Installation by Studio Link-Arc: Exploring the Intersection of Architecture and Living Organisms
Inverted Architecture Installation by Studio Link-Arc blends mycelium, sustainability, inverted design, ecological cycles, and urban adaptive architecture in Shenzhen.
The Ken Roberts Memorial Delineation Competition (Krob)
As the most senior architectural drawing competition currently in operation anywhere in the world, it draws hundreds of entries each year, awarding the very best submissions in a series of medium-based categories.
Similar Reads
You might also enjoy these articles
The Ken Roberts Memorial Delineation Competition (Krob)
As the most senior architectural drawing competition currently in operation anywhere in the world, it draws hundreds of entries each year, awarding the very best submissions in a series of medium-based categories.
Waterfront Redevelopment and Urban Revitalization in Mumbai: Forging a New Dawn for Darukhana
A transformative waterfront redevelopment project reimagining Darukhana’s shipbreaking heritage into an inclusive urban future.
OUT-OF-MAP: A Call for Postcards on Feminist Narratives of Public Space
Rhizoma Design and Research Lab invites artists, designers, architects, researchers, and students to reflect on how feminist perspectives can reshape public space. Selected works will be exhibited in Barcelona, October 2026. Submissions open until 15 April 2026.
Documentation Work on Buddhist Wooden Temple
Architectural syncretism and cultural hybridity: A comparative study of the Buddhist temples in Chattogram Hill tracks
Explore Architecture Competitions
Discover active competitions in this discipline
The International Standard for Design Portfolios
The Global Benchmark for Architecture Dissertation Awards
The Global Benchmark for Graduation Excellence
Challenge to design public laboratory
Comments (0)
Please login or sign up to add comments
No comments yet. Be the first to comment!