Integrating Nature and Sport: The Eco-Friendly Design of La Feclaz Nordic Center
The Nordic Educational and Sports Center in La Feclaz showcases sustainable architecture with local materials, energy efficiency, and a harmonious environmental design.
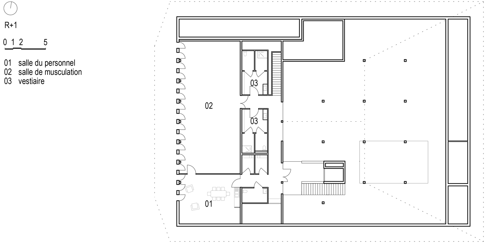
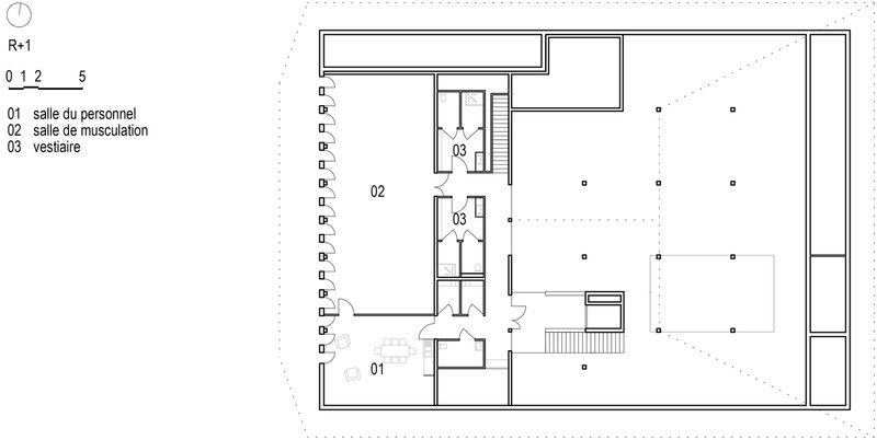
Tucked away on the serene plateau of Revard, the Nordic Educational and Sports Center of la Feclaz, designed by Brenas Doucerain Architectes, emerges as a beacon of eco-friendly sports center design. With a footprint of 1044 m² and unveiled in 2023, this facility stands as a testament to sustainable architectural practices harmonized with athletic and educational ambitions.


Design Philosophy: A Symbiosis with the Alpine Landscape
Harmonizing with the Environment
Nestled at an altitude of 1400 meters, the center occupies a unique position between the seasonal realms of cross-country skiing and pastoral tranquility. Its design, rooted in simplicity and monolithic grace, draws from the traditional alpine barns, embracing compact volumes and a large three-pitched roof. This approach not only ensures protection against the harsh weather but also minimizes its visual impact, preserving the natural majesty of the Bauges landscapes.


Sustainable Materials and Construction
Local and Bio-Sourced Building Practices
At the heart of the Nordic Center's architectural ethos is the commitment to environmental stewardship. From the solid wood framework designed to leverage local forest resources labeled "Bois des Alpes," to the larch boards cladding and local Grésy stone used for the exterior walls, every element underscores a dedication to geo- and bio-sourced materials. This frugal yet thoughtful selection of materials supports local ecosystems and reduces the carbon footprint of the building process.




Technical Innovations for Energy Efficiency
Maximizing Energy Efficiency and Comfort
The technical design of the Nordic Center speaks volumes about its eco-friendly sports center design credentials. The use of an inner concrete double wall, coupled with local sandstone and solid spruce wood, not only provides robust insulation but also forms a striking aesthetic that blends seamlessly with the alpine setting. Floor radiant heating systems work to efficiently manage the moisture and temperature levels within the facility, creating a comfortable environment for athletes and visitors alike.


Renewable Energy and Sustainable Heating
A Self-Sufficient Energy Model
Heating solutions within the center prioritize sustainability and efficiency. The introduction of radiant floor heating addresses the challenges posed by snow and cold, while buffer spaces set to a maximum of 17°C conserve energy. The facility's commitment to green energy is further exemplified by its photovoltaic power station, ensuring a significant portion of its energy needs are met through renewable sources. Additionally, the air handling unit incorporates thermodynamic production and heat recovery, highlighting the center's holistic approach to eco-friendly operations.



Leading the Way in Sustainable Sports Architecture
The Nordic Educational and Sports Center of la Feclaz stands as a pioneering example of eco-friendly sports center design. By integrating cutting-edge sustainable practices with a deep respect for the natural environment, Brenas Doucerain Architectes have crafted a facility that not only serves the athletic and educational needs of the community but also sets a new benchmark for sustainable architecture in sports facilities. As we move towards a more environmentally conscious future, the Nordic Center offers a blueprint for how sports and education can thrive in harmony with nature.







All photographs are work of Clément Molinier
Popular Articles
Popular articles from the community
An Miên Lumière Cafe by xưởng xép, Ho Chi Minh City, Vietnam
An industrial-inspired café where layered steel and warm light create a dynamic, immersive environment shaped by reflection, depth, and perception.
Treehouse Apartment: A Warm Timber Interior Blending Craft, Play, and Contemporary Living
Warm timber apartment with integrated treehouse, combining natural materials, craftsmanship, and playful design to create a flexible, family-oriented living environment.
Atelier Macri Concept Store Interior Design by CASE-REAL
Atelier Macri store features a "ko" counter, walnut wood details, cork displays, blending retail, gallery, and seamless customer experiences.
Inverted Architecture Installation by Studio Link-Arc: Exploring the Intersection of Architecture and Living Organisms
Inverted Architecture Installation by Studio Link-Arc blends mycelium, sustainability, inverted design, ecological cycles, and urban adaptive architecture in Shenzhen.
Similar Reads
You might also enjoy these articles
The Ken Roberts Memorial Delineation Competition (Krob)
As the most senior architectural drawing competition currently in operation anywhere in the world, it draws hundreds of entries each year, awarding the very best submissions in a series of medium-based categories.
Waterfront Redevelopment and Urban Revitalization in Mumbai: Forging a New Dawn for Darukhana
A transformative waterfront redevelopment project reimagining Darukhana’s shipbreaking heritage into an inclusive urban future.
OUT-OF-MAP: A Call for Postcards on Feminist Narratives of Public Space
Rhizoma Design and Research Lab invites artists, designers, architects, researchers, and students to reflect on how feminist perspectives can reshape public space. Selected works will be exhibited in Barcelona, October 2026. Submissions open until 15 April 2026.
Documentation Work on Buddhist Wooden Temple
Architectural syncretism and cultural hybridity: A comparative study of the Buddhist temples in Chattogram Hill tracks
Explore Architecture Competitions
Discover active competitions in this discipline
The International Standard for Design Portfolios
The Global Benchmark for Architecture Dissertation Awards
The Global Benchmark for Graduation Excellence
Challenge to reimagine the Iron Throne
Comments (0)
Please login or sign up to add comments
No comments yet. Be the first to comment!