Is Youjian Homestay the Ultimate Retreat Destination for Nature Lovers?
Discover the breathtaking views, rustic yet elegant design, and tranquil ambiance of this homestay, perfect for those seeking an escape from the hustle and bustle of city life.

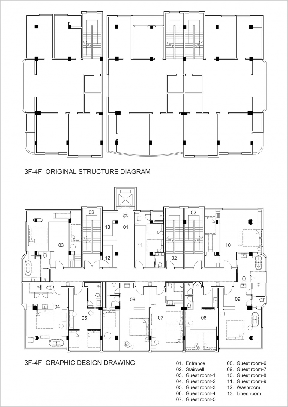
Nestled on Meiyu Island in China, Youjian Homestay offers a serene escape from the hustle and bustle of the city. This architectural marvel, designed by the renowned Size Design Studio, captures the essence of the island with its breathtaking sea views and natural landscapes. The homestay comprises of multiple spaces, each designed to invoke a sense of tranquility and comfort.


As one enters the homestay, they are greeted by the sky lobby, a space that seamlessly blends the past and future, creating a timeless aura. The minimalist décor and natural generosity of the space allow one to pause, gaze, rest and communicate. The space expands as people interact, creating infinite possibilities.


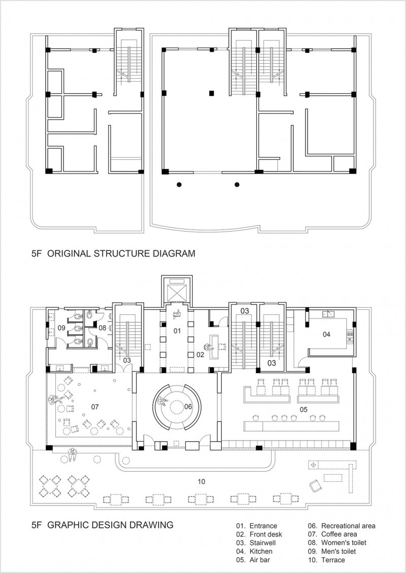
The Wild Space Bar, located on the fifth floor, sets the atmosphere for the entire space, creating a sense of leisure and comfort from the moment one enters. The designer has successfully injected a rhythm of stillness into the space with quiet tones and rustic texture, creating a harmonious blend of tranquility and vibrancy.



The Teatime space, which integrates natural tree trunks into the design, further reinforces the designer's vision of re-integrating nature into new spaces to generate life. The leisure area, with its scattered light along the staircase path, adds a mysterious and rustic atmosphere, creating a serene and relaxing environment.


The main theme of leisure continues in the homestay, where a large area of sea view immediately greets the guests as they enter. The natural scenery is reflected through the large glass windows, creating a clear and refreshing dreamlike feeling in the dialogue between the internal and external spaces. The room occupies a unique romantic sea view, with sparkling waves swinging into the room, floating and sinking in the air together with the wood aroma in the room. The designers have ensured the comfort and functionality of the space while creating a relaxing and reassuring holiday atmosphere that conveys a gentle and calm emotional feeling through the flow of lines.


The Time Restaurant, with its quiet tones and simple textures, preserves the overall cleanliness and simplicity through the setting of micro cement walls and dark soft decoration styles. The designer has skillfully introduced natural fantasies from outside to inside, using large-area French windows, allowing the flowing lingering light and shadow to become a kind of visible architectural beauty.




Youjian Homestay stands out as a unique architectural masterpiece that captures the true essence of leisure and comfort. The use of natural materials, combined with a minimalist décor, creates a tranquil and soothing environment that is perfect for relaxation. It is indeed a perfect getaway for those seeking a respite from the chaos of city life.

With its unique blend of natural beauty and modern architecture, Youjian Homestay is a must-visit destination for anyone seeking a homestay that provides a sense of tranquility and comfort. Whether it is the beautiful sea view or the natural landscapes, the homestay offers an experience that is truly unforgettable.





























Project Name: Meiyu Youjian
Designer: DAXOSTUDIO
Design Director: TsinghuaSu
Design team: Ou Zhipeng, Zhuo Jianfan, Huang Pingping, Wu Xiangxia, Chen Yingying
Project area: 2000+㎡
Construction started: 2021/04
Completion: 2022/06
Materials: artistic paint, wood veneer, granite, aluminum plate, washed stone
Construction by: Li Jian Decoration Studio
Project Photography: ACT STUDIO
Project address: No.245, Gaozhu North Ring East Road, Meizhou Island, Putian City, Fujian Province