ISHIMIRAI Lab Showroom Design: A Space to Explore the Future of Marble
The ISHIMIRAI Lab Showroom reimagines marble's future, blending innovation, design flexibility, and collaboration in a dynamic architectural space.
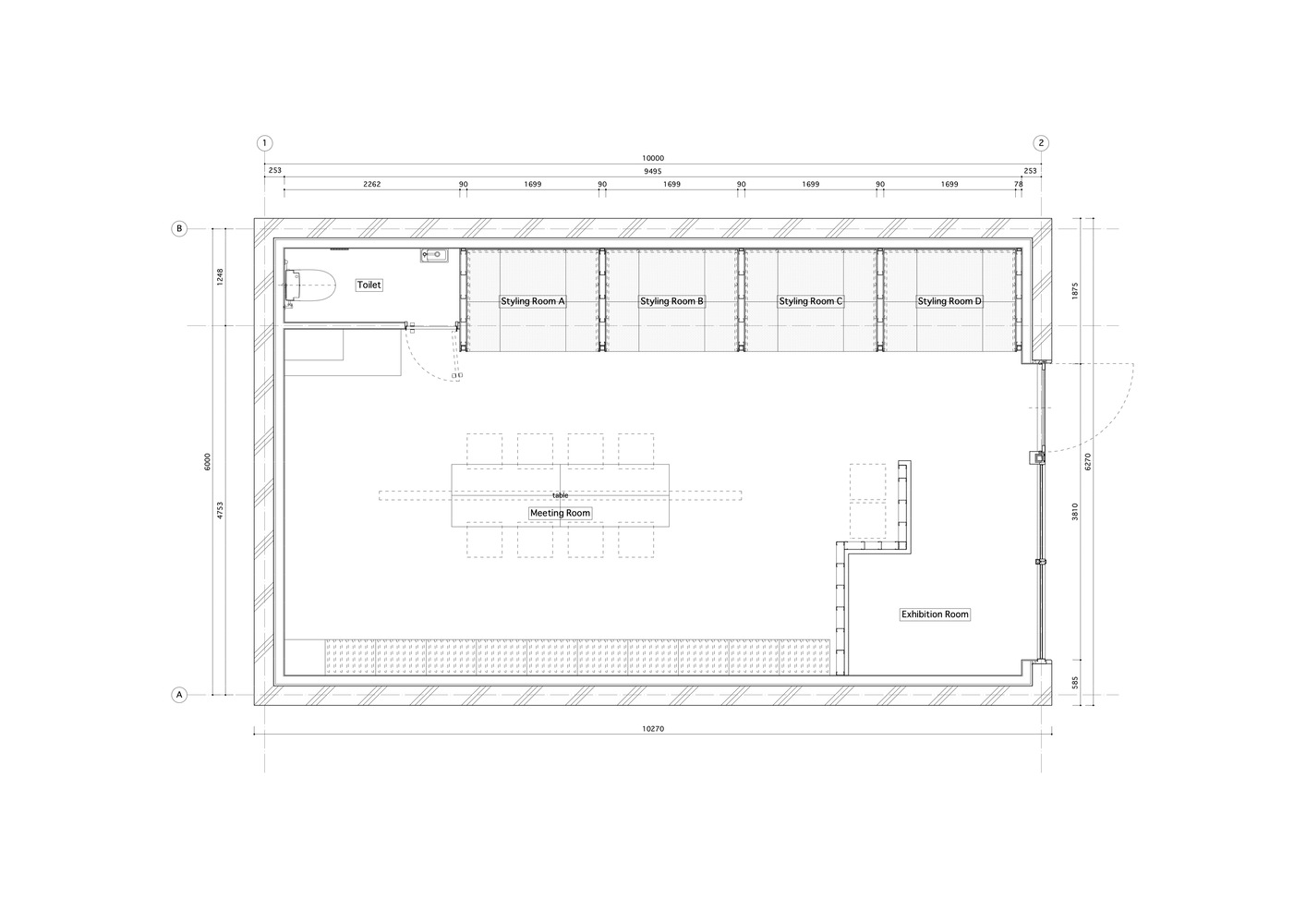
The ISHIMIRAI Lab Showroom in Bunkyo City, Japan, is a transformative space that merges innovation and aesthetics, showcasing the new uni Marble Panel by Yabashi Marble. Designed by POINT Inc. and Spicy Architects, this 65 m² showroom invites clients, designers, and builders to explore the endless possibilities of marble in modern architecture. Built in 2024, it functions as both a laboratory and a design inspiration hub, emphasizing flexibility and creativity.



A Platform for Innovation and Experimentation
Founded in 1901, Yabashi Marble is renowned for its innovative approach to stone and marble applications. With the introduction of the lightweight uni Marble Panel, specifically tailored for interior use, the ISHIMIRAI Lab was conceived to highlight the material's versatility. The space goes beyond traditional showrooms, allowing users to test combinations of colors, textures, and materials in real-world scenarios.


The showroom features four distinct booths, each designed in basic color palettes—black, gray, beige, and reddish brown. These booths serve as experimental environments where users can mix and match materials. A large display wall showcases 14 different types of uni Marble Panels, which can be easily attached and detached using specialized brackets, promoting a hands-on approach to design exploration.





Integrating Materials for a Holistic Experience
To expand the creative potential of the showroom, additional material samples such as wood and metal are available. These samples enable users to test combinations of marble with other textures, encouraging innovative interior design ideas. Furniture, including chairs and tables, further enhances the experience with a mix of materials like cork, aluminum, wood, and plastic. This diverse palette fosters an atmosphere of experimentation, allowing designers and clients to visualize their ideas in a functional setting.





Functional Design Meets Aesthetic Appeal
At the heart of ISHIMIRAI Lab is its ability to simulate real-life interior scenarios. The thoughtfully designed space balances functionality with inspiration, serving as a collaborative environment for clients, architects, and builders. The central meeting table, surrounded by material-rich furniture, acts as a focal point for dialogue and design brainstorming. This approach bridges the gap between conceptualization and execution, offering an immersive experience that maximizes the aesthetic and functional appeal of marble.



Pioneering the Future of Marble Applications
ISHIMIRAI Lab is not just a showroom but a forward-thinking laboratory for architectural exploration. It encourages dialogue and interaction among stakeholders, enabling them to discover the untapped potential of stone and marble in diverse architectural contexts. By blending innovative material systems with a dynamic design environment, the ISHIMIRAI Lab sets a new standard for how architectural materials are showcased and utilized.




The space exemplifies how architecture can serve as a medium for discovery, fostering creativity and pushing the boundaries of material applications. As an inspirational hub, it opens new pathways for integrating marble into modern interiors while honoring its timeless elegance.



All Photographs are work of Kenta Hasegawa
Popular Articles
Popular articles from the community
Atelier Macri Concept Store Interior Design by CASE-REAL
Atelier Macri store features a "ko" counter, walnut wood details, cork displays, blending retail, gallery, and seamless customer experiences.
Gads Hill Early Learning Center by JGMA: Adaptive Reuse Shaping Community-Focused Educational Architecture
Adaptive reuse transforms fragmented structure into vibrant early learning center with playful façade, natural light, and community-focused sustainable design.
Fifth NRE Jazz Club – De Bever Architecten: Eindhoven’s Revitalized Cultural Hub
Historic gas factory transformed into Fifth NRE Jazz Club blending modern sustainability, jazz culture, dining, and heritage architecture seamlessly.
Solar Steam: A Climate-Responsive Architecture That Redefines the Monument
A climate-responsive memorial architecture that transforms heat, decay, and time into a living system reflecting humanity’s ecological impact.
Similar Reads
You might also enjoy these articles
The Ken Roberts Memorial Delineation Competition (Krob)
As the most senior architectural drawing competition currently in operation anywhere in the world, it draws hundreds of entries each year, awarding the very best submissions in a series of medium-based categories.
Waterfront Redevelopment and Urban Revitalization in Mumbai: Forging a New Dawn for Darukhana
A transformative waterfront redevelopment project reimagining Darukhana’s shipbreaking heritage into an inclusive urban future.
OUT-OF-MAP: A Call for Postcards on Feminist Narratives of Public Space
Rhizoma Design and Research Lab invites artists, designers, architects, researchers, and students to reflect on how feminist perspectives can reshape public space. Selected works will be exhibited in Barcelona, October 2026. Submissions open until 15 April 2026.
Documentation Work on Buddhist Wooden Temple
Architectural syncretism and cultural hybridity: A comparative study of the Buddhist temples in Chattogram Hill tracks
Explore Architecture Competitions
Discover active competitions in this discipline
The International Standard for Design Portfolios
The Global Benchmark for Architecture Dissertation Awards
The Global Benchmark for Graduation Excellence
Challenge to reimagine the Iron Throne
Comments (0)
Please login or sign up to add comments
No comments yet. Be the first to comment!