Lane House by CORE Cluster: Innovative Courtyard House Design in Bangkok
Lane House in Bangkok by CORE Cluster integrates courtyard house design, sports tracks, and wellness-focused architecture into a unique urban residence.
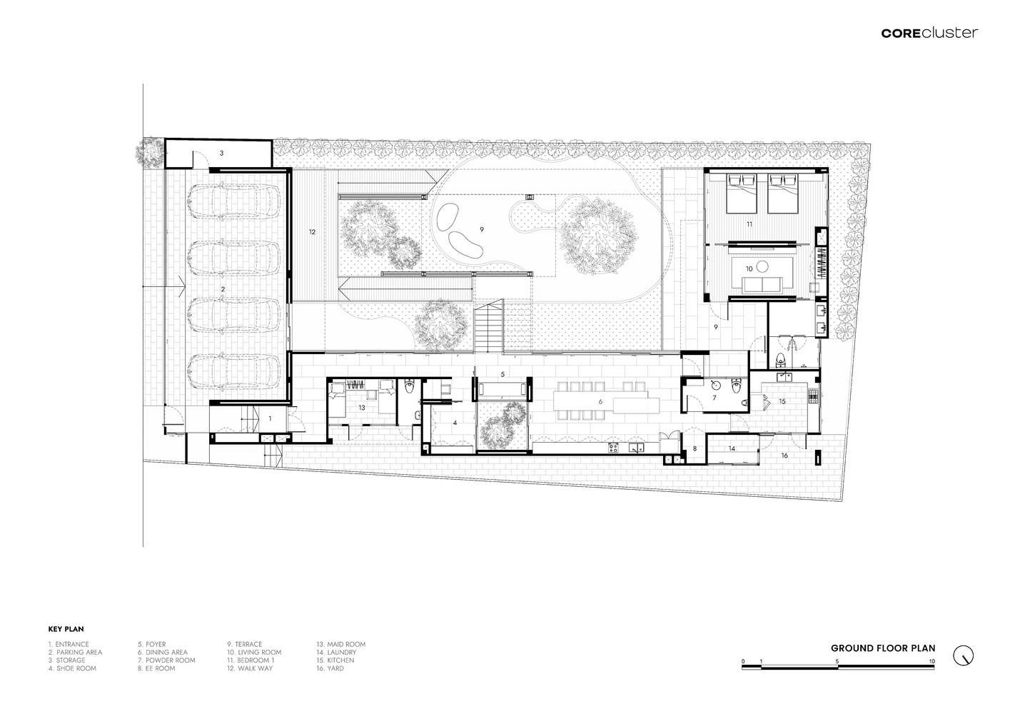
The Lane House by CORE Cluster redefines residential living in Bangkok by integrating health, architecture, and community into a single home. Completed in 2025, this 850 m² residence was designed in response to the COVID-19 pandemic, when access to parks and outdoor spaces was restricted. By embedding a running and cycling track directly into its structure, this project represents a new standard for courtyard house design in dense urban environments.



A Home Shaped by Movement
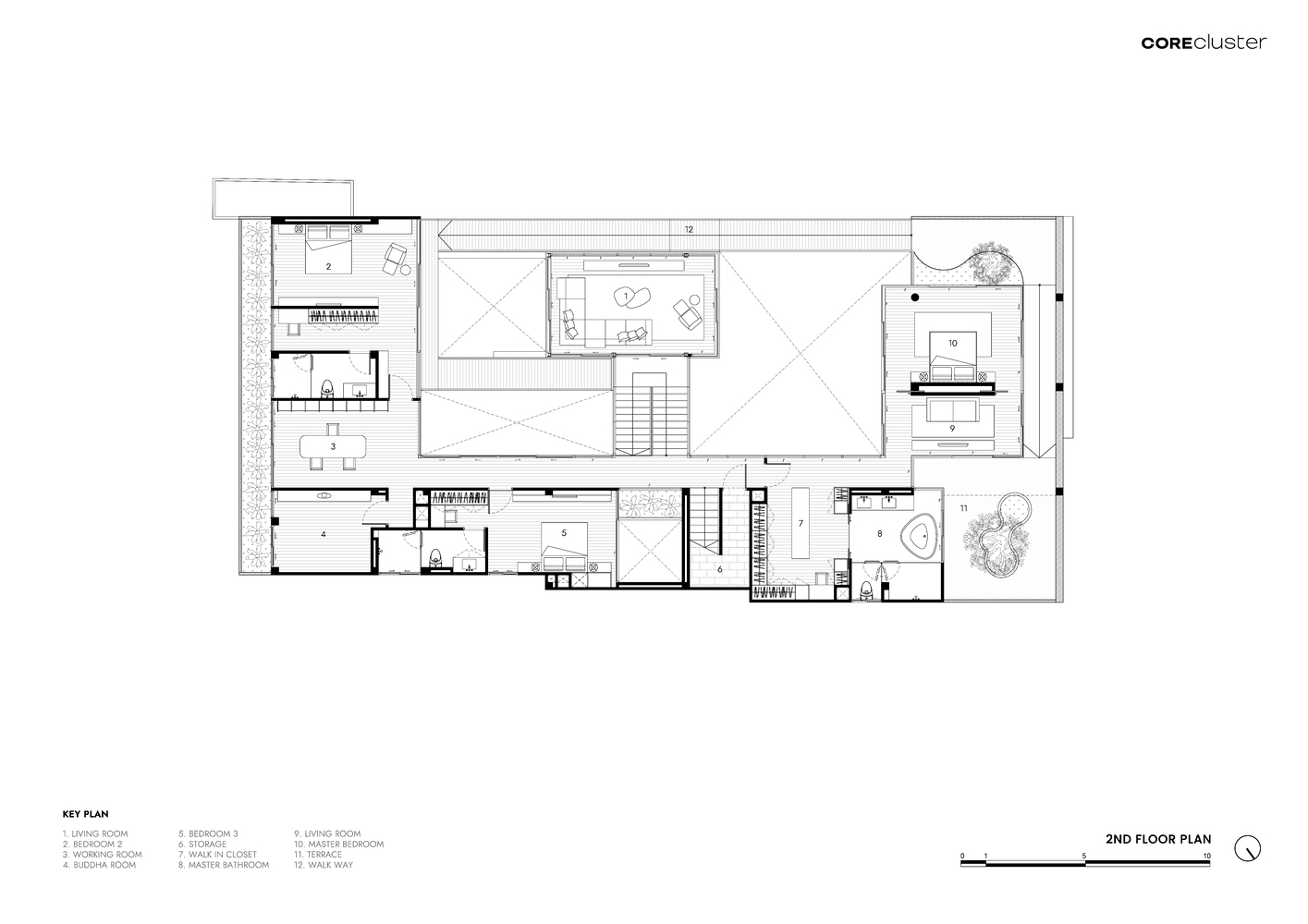
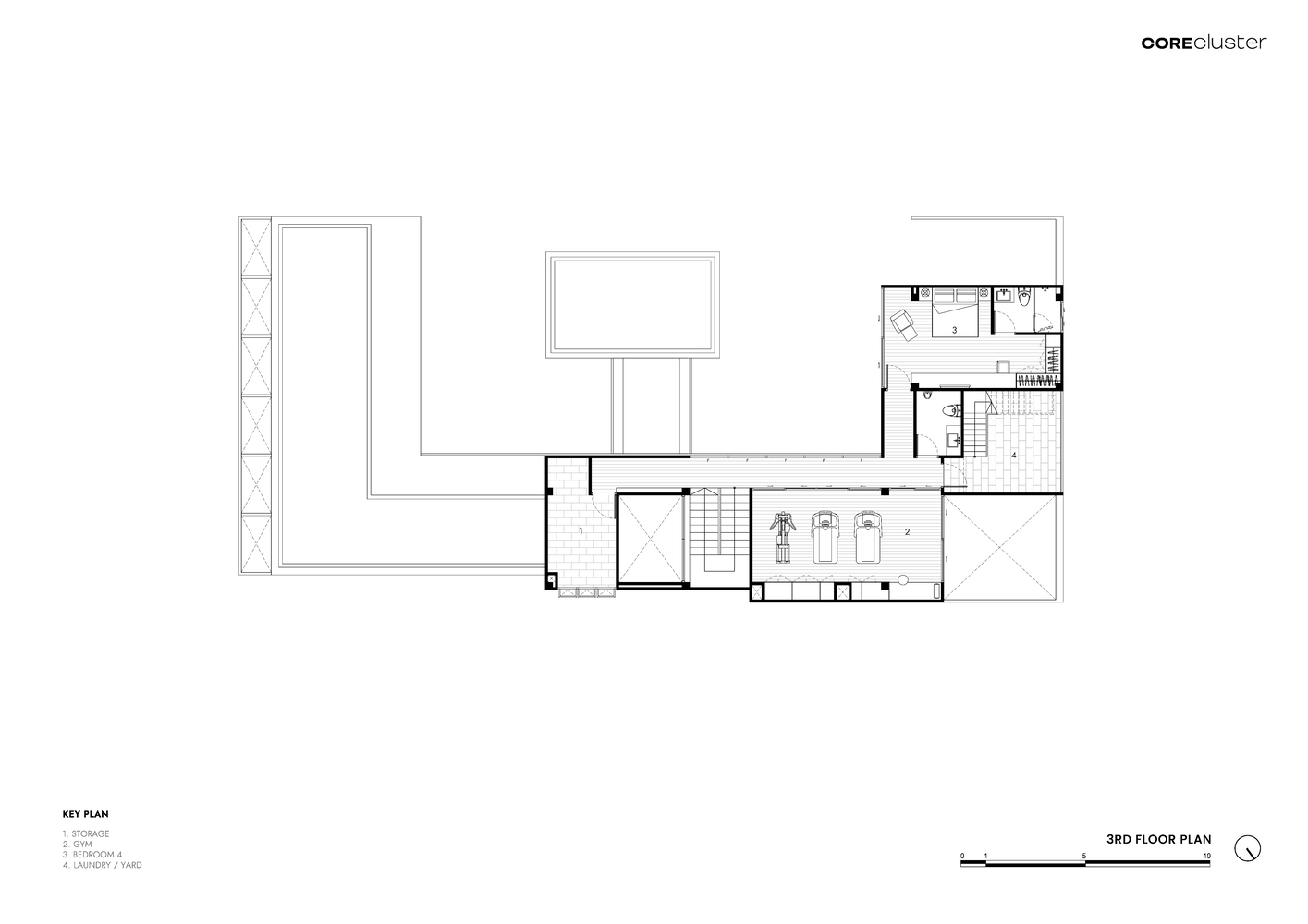
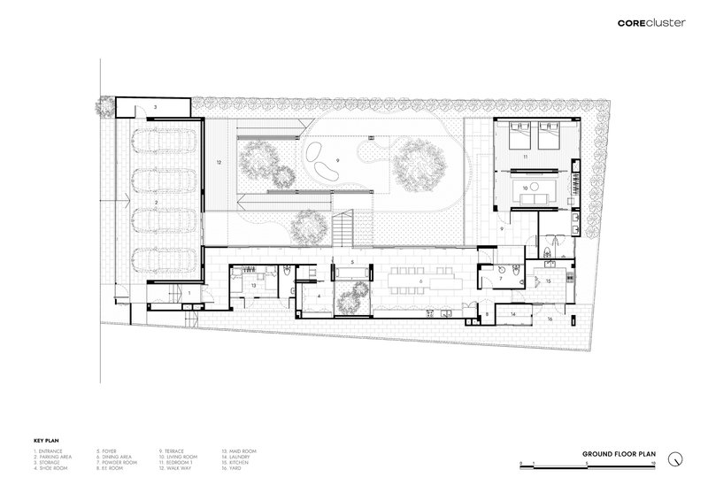
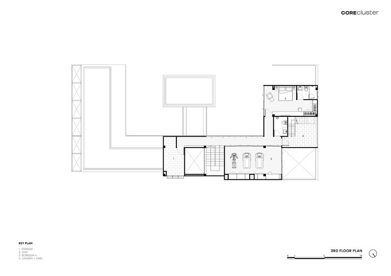
The central concept of Lane House lies in its integration of a sports track within the domestic space. The architects designed a continuous 200-meter loop that weaves around the house, linking everyday functions with opportunities for exercise. Beginning at ground level, the ramp ascends along the perimeter, connecting the courtyard, living areas, and even the master bedroom on the top floor. This seamless flow of movement transforms the house itself into an exercise landscape.




U-Shaped Plan and Courtyard Living
To maximize both the track length and functional arrangement, the house adopts a U-shaped layout positioned along the site’s edges. This form naturally creates a central courtyard, which serves as the social and visual heart of the residence. Floating above it, the elevated living room acts as a communal hearth, visually connecting family members while opening toward greenery. Beneath this raised space, shaded areas extend the running lane and create layered experiences of movement and rest.



Transparency, Privacy, and Light
The design carefully balances openness and seclusion. Courtyard-facing walls are transparent, maximizing daylight and views while fostering interaction between indoor and outdoor spaces. In contrast, the exterior walls facing Bangkok’s highways and bridges are more enclosed, ensuring privacy and acoustic comfort. Ventilation strategies respond to the tropical climate, creating naturally lit and breezy interiors that minimize reliance on mechanical cooling.





Brick Façade and Climatic Adaptation
One of the most distinctive features of Lane House is its double-skin façade of burnt-grey bricks. Two diagonally arranged bricks form a perforated pattern that filters sunlight, reduces heat gain, and creates striking shadow play throughout the day. This robust yet low-maintenance material weathers gracefully, embodying the passage of time while maintaining architectural integrity.





Redefining Courtyard House Design in Thailand
Lane House is more than a private residence—it is a reflection of evolving lifestyles in dense cities. By merging a traditional courtyard house design with modern wellness-focused architecture, the project responds to contemporary needs for health, privacy, and social connection within a limited urban footprint. CORE Cluster has created a house that is both protective and open, introspective and playful, functional and poetic.




The Lane House demonstrates how courtyard house design can evolve in response to global challenges and urban constraints. By embedding a sports track, embracing openness to nature, and using timeless materials, CORE Cluster has created a residence that supports both body and spirit while standing resilient within Bangkok’s urban fabric.






All Photographs are works of Chalermwat Wongchompoo | Sofography
Popular Articles
Popular articles from the community
Atelier Macri Concept Store Interior Design by CASE-REAL
Atelier Macri store features a "ko" counter, walnut wood details, cork displays, blending retail, gallery, and seamless customer experiences.
Inverted Architecture Installation by Studio Link-Arc: Exploring the Intersection of Architecture and Living Organisms
Inverted Architecture Installation by Studio Link-Arc blends mycelium, sustainability, inverted design, ecological cycles, and urban adaptive architecture in Shenzhen.
Split House: A Compact Urban Home Blending Privacy, Light, and Flexible Living in Japan
Compact Japanese home featuring DOMA space, flexible café potential, passive lighting, privacy zoning, and sustainable urban living design.
Free Architecture Competitions You Can Enter Right Now
No entry fees, real prizes. Here are the best free architecture competitions open for submissions in 2026.
Similar Reads
You might also enjoy these articles
Free Architecture Competitions You Can Enter Right Now
No entry fees, real prizes. Here are the best free architecture competitions open for submissions in 2026.
Top 15 Architecture Competitions to Enter in 2026
From student-friendly idea competitions to prestigious international awards, here are the best architecture competitions open for entries in 2026. Updated regularly.
DIY & Engineering in Computational Design : Enter the BeeGraphy Design Awards
Showcase Your Creativity with Computational Design and Open Source Projects

Innovative Design Solutions: Award-Winning Projects from Recent Architecture Competitions
Exploring award-winning architectural projects shaping the future of design, sustainability, and community.
Explore Architecture Competitions
Discover active competitions in this discipline
The International Standard for Design Portfolios
The Global Benchmark for Architecture Dissertation Awards
The Global Benchmark for Graduation Excellence
Challenge to reimagine the Iron Throne
Comments (0)
Please login or sign up to add comments
No comments yet. Be the first to comment!