Linzhou Guojiazhuang Homestay Hotel: A Masterpiece of Courtyard Hotel Design
This article explores the Linzhou Guojiazhuang Homestay Hotel, a stunning example of courtyard hotel design blending nature and architecture.
Introduction to Linzhou Guojiazhuang Homestay Hotel
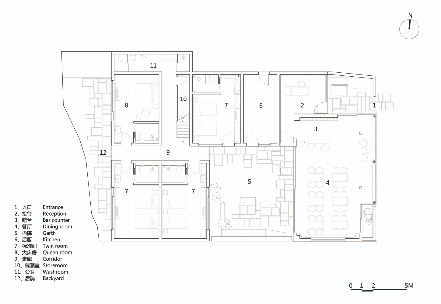
The Linzhou Guojiazhuang Homestay Hotel by Atelier Shen is a striking example of courtyard hotel design nestled in the breathtaking Taihang Grand Canyon in Shibanyan Town, Linzhou City, China. Known as the “Soul of the Eight-Hundred-Mile Taihang Mountains,” this region is celebrated for its majestic peaks and sweeping natural beauty. Despite the village’s ordinary and disordered surroundings, the hotel transforms its site into a serene retreat that harmonizes architecture, landscape, and human experience.




Context and Site Challenges
Set amidst a village with little visual appeal, the hotel faces a unique challenge. To the north, it is flanked by the town’s only school; to the east, a school playground; to the west, a four-story student lodging building; and to the south, a neighboring property across the road. While the surrounding environment is chaotic, the design team turned its gaze inward toward the courtyard and outward toward the distant mountains to create an architectural refuge.




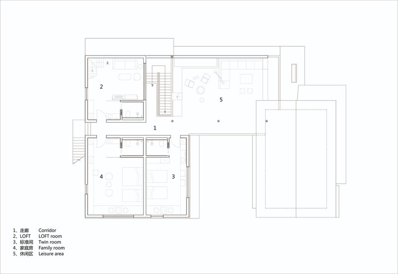
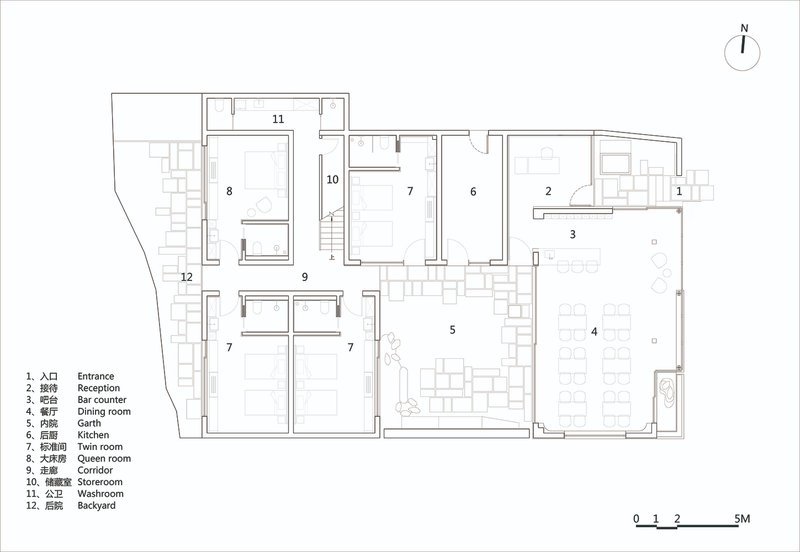
The Essence of Courtyard Hotel Design
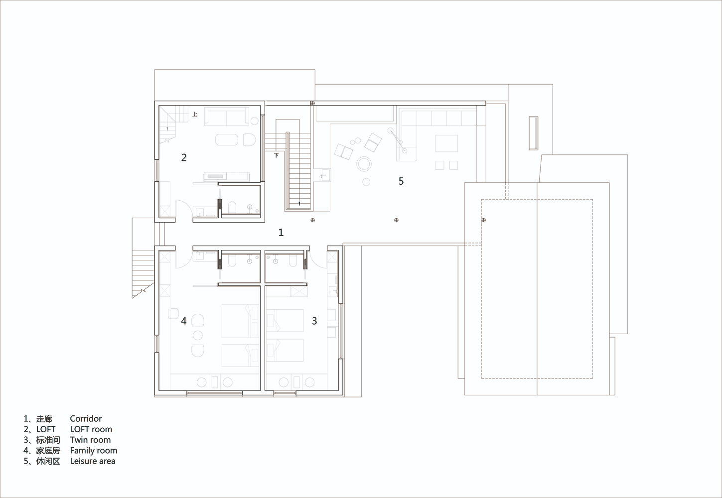
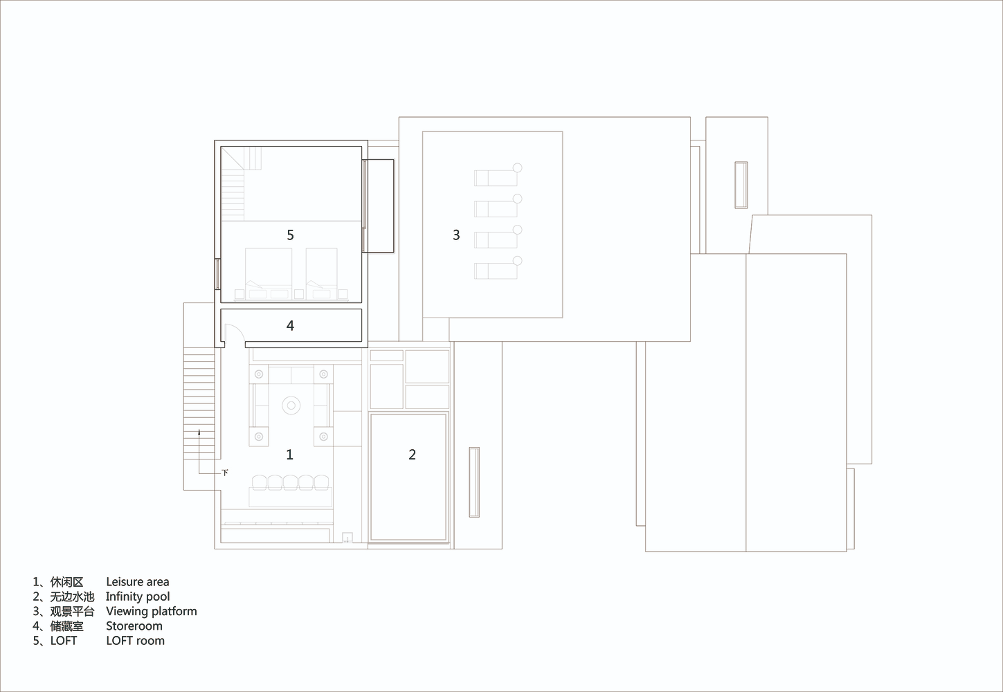
Atelier Shen embraced an enclosed courtyard layout to shield the hotel from its surroundings and craft an intimate atmosphere. The eastern section along the road houses public functions, while the western section embraces the guest rooms and private spaces centered around the inner courtyard. Open leisure areas and viewing platforms on the third floor and rooftop create a layered spatial experience, offering ever-changing vistas of the mountains framed by the sloping rooflines.




Architectural Form and Materiality
The hotel’s stacked volumes, topped with a bidirectional pitched roof, echo the forms of the distant mountains, creating a sculptural, dynamic façade. Locally sourced slate, used innovatively on the exterior walls and partial roofing, was cut into narrow strips and layered in a pattern reminiscent of traditional slate roofs. This crafted texture enhances the tactile quality of the façade while forming a striking contrast with the white surfaces, establishing a dialogue between tradition and innovation.




Interior Design and Atmosphere
Inside, the Linzhou Guojiazhuang Homestay Hotel exudes tranquility and simplicity. Artisanal plaster-like paint creates soft, natural wall finishes, while wooden furniture, window and door systems, and green marble accents infuse warmth and elegance. The design seamlessly blends functionality with aesthetics, offering guests a calming, immersive experience that invites relaxation and contemplation.



A Harmonious Integration with Nature
This project exemplifies the power of courtyard hotel design in creating a refuge that balances seclusion and openness. By focusing inward to the courtyard and outward to the dramatic mountain landscape, Atelier Shen has crafted a hotel that provides an unforgettable sensory experience. The design’s success lies in its ability to transform a visually challenging site into a harmonious sanctuary, celebrating the intersection of architecture, nature, and human connection.




The Linzhou Guojiazhuang Homestay Hotel stands as a testament to thoughtful courtyard hotel design, transforming an ordinary village site into a destination of calm and beauty. By merging local materials, spatial innovation, and a deep respect for its natural context, Atelier Shen has created a timeless retreat that resonates with guests and honors its surroundings.


All the photographs are works of Dong Image
Popular Articles
Popular articles from the community
Alton Cliff House: A Harmonious Retreat by f2a Architecture in Lake Country, Canada
Alton Cliff House blends corten steel, prefabrication, and sustainable design, creating a luxurious, energy-efficient retreat perched on Canadian cliffs.
Marvila Apartment Renovation in Lisbon: A Bright Minimalist Attic Transformation by KEMA Studio
Bright attic transformed into minimalist Lisbon apartment with skylights, sustainable materials, open plan layout, and industrial-inspired interior design elements.
Filtering Space: A Gradual Spatial Experience
From urban intensity to spatial calm.
Magic Box Office Barcelona Innovative Sustainable Workplace Design
Innovative sustainable office design featuring triangular form, ceramic façade, flexible interiors, natural light optimization, and creative workspace for modern work culture.
Similar Reads
You might also enjoy these articles
20 Most Popular Commercial Architecture Projects of 2025
From sustainable market concepts to heritage factories, the commercial buildings and proposals that drew the most attention on uni.xyz this year.
Free Architecture Competitions You Can Enter Right Now
No entry fees, real prizes. Here are the best free architecture competitions open for submissions in 2026.
Top 15 Architecture Competitions to Enter in 2026
From student-friendly idea competitions to prestigious international awards, here are the best architecture competitions open for entries in 2026. Updated regularly.
DIY & Engineering in Computational Design : Enter the BeeGraphy Design Awards
Showcase Your Creativity with Computational Design and Open Source Projects
Explore Architecture Competitions
Discover active competitions in this discipline
The International Standard for Design Portfolios
The Global Benchmark for Architecture Dissertation Awards
The Global Benchmark for Graduation Excellence
Challenge to reimagine the Iron Throne
Comments (0)
Please login or sign up to add comments
No comments yet. Be the first to comment!