Mercure Bukhara Old Town Hotel: A Revival of Bukhara's Traditional Architecture
The article explores the Mercure Bukhara Old Town Hotel, highlighting its traditional Uzbek-inspired architecture and modern amenities by ARC Architects.
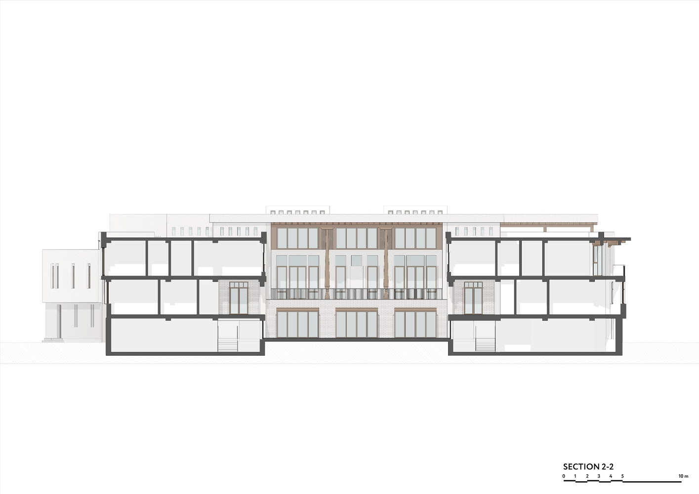
Located in the heart of Bukhara, Uzbekistan, Mercure Bukhara Old Town Hotel by ARC Architects presents a seamless blend of cultural heritage and modern hospitality design. This three-story, 4,170-square-meter building embodies the rich architectural traditions of Bukhara while integrating modern amenities for a luxurious guest experience. Completed in 2021, this hotel respects its historical roots and plays a significant role in revitalizing the old town district of Bukhara.





Architectural Context and Historical Background
The hotel sits along a historically significant street that connects the Samarkand Gates with Lyabi Hauz Square, a prominent tourist attraction in Bukhara. This site was previously industrial, transformed in 2010 when Bukhara's city council moved factories to the outskirts, aiming to restore the area’s historical essence and attract tourism. Using aerial photography and archival documents, city planners divided this area into sections, allocating one for hotels, where the Mercure Bukhara Old Town Hotel now stands.





Design Philosophy and Structure
Perimeter Structure and Courtyard Design
The hotel follows a classic perimeter structure, characteristic of Bukhara architecture, with windows facing an inner courtyard to maintain privacy and enhance natural airflow. The main courtyard, designed to resemble Bukhara's traditional covered shopping streets, serves as a serene gathering space with a fountain and high aivan (windcatcher), creating a cooling microclimate during the region's hot summers.





Layered Courtyard Spaces
The design includes multiple courtyards, each serving distinct purposes:
- Lobby Courtyard: Inspired by Bukhara’s bustling streets, the lobby courtyard captures the energy of the city, offering a shaded, welcoming space for guests.
- Main Residential Courtyard: This space includes an aivan and a water feature to regulate temperature and provide a peaceful retreat.
- Additional Courtyards: Smaller courtyards around the hotel offer natural light to the corner rooms and corridors, ensuring that each space feels open and connected to the outdoors.





Interior Spaces and Amenities
Room Design and Layout
The Mercure Bukhara Old Town Hotel offers 57 rooms, each meticulously designed to reflect the aesthetic of traditional Bukhara homes. Rooms open to the inner courtyards, ensuring privacy and reducing heat through the building's clever natural ventilation.






Dining and Recreational Facilities
- Restaurant and Terrace: Situated on the third floor, the hotel’s restaurant features a summer terrace, where guests can enjoy panoramic views of Bukhara's historic skyline.
- Spa and Hammam: The basement level houses a spa and hammam, allowing guests to experience traditional Uzbek wellness practices.
- Additional Facilities: The hotel also includes a coffee shop, a fitness center, and a conference room, providing a full range of amenities for both leisure and business travelers.






Materials and Aesthetic
ARC Architects carefully selected materials that honor Bukhara’s architectural heritage. The building is constructed from locally sourced materials, including:
- Gishti Obi: The distinctive Bukhara brick used extensively throughout the exterior and interior facades.
- Adobe Plaster and Wood: Adds to the authentic Uzbek atmosphere, blending rustic elements with modern design.
- Handmade Ceramics and Limestone: Artisanal ceramics and limestone finishes add textural variety and celebrate traditional craftsmanship.






Sustainable Architectural Approach
The design of the Mercure Bukhara Old Town Hotel prioritizes sustainable practices. By using local materials and incorporating natural cooling techniques through traditional architectural elements like the aivan, ARC Architects minimized the hotel’s environmental impact. The layered courtyards and use of fountains further reduce the need for artificial cooling, demonstrating a thoughtful, eco-friendly approach.

Mercure Bukhara Old Town Hotel is more than just a luxury accommodation; it is a tribute to Bukhara's architectural heritage. Through meticulous design and attention to cultural context, ARC Architects have created a space that serves as a bridge between the city’s past and present, offering guests an authentic and immersive experience. This hotel is a valuable addition to Bukhara’s architectural landscape, promoting sustainable tourism while preserving the spirit of traditional Uzbek design.









Photographs are work of Denis Komarov