Modern Brazilian Residential Architecture: Unveiling the FG House by Caracho Arquitetos
The article showcases the FG House by Caracho Arquitetos, a modern Brazilian residence emphasizing natural cooling, privacy, and seamless indoor-outdoor integration.
Brazilian residential architecture is renowned for its innovative approach and tropical modernism. The FG House in Bauru, designed by Caracho Arquitetos, exemplifies this with its unique composition and integration with nature, marking a significant contribution to modern Brazilian residential architecture.


Design Philosophy and Structure of the FG House
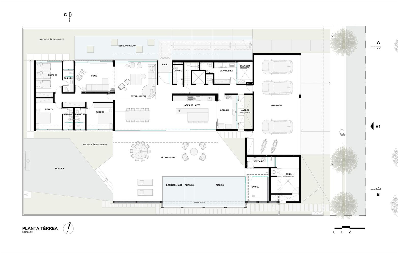
The FG House is strategically situated to optimize natural cooling, avoiding the harsh western sun. This 6308 ft² residence is divided into three distinct blocks, each serving a unique purpose while promoting seamless indoor-outdoor living.




Functional Division into Three Blocks
The house's layout consists of three aligned blocks, each contributing to the residence's functionality and aesthetic appeal:
- The Front Block: Housing the garage, service areas, and support facilities, this section ensures operational efficiency while maintaining street-side privacy.
- The Rear Block: Dedicated to the private quarters, including bedrooms and intimate spaces, this area guarantees privacy and tranquility, harmonizing with the lush side garden.
- The Central Living Area: Formed by the gap between the two ground-level blocks, this space encompasses the living room, dining area, and gourmet kitchen, flowing into a vast terrace that connects with the gardens and the leisure area.





Elevated Design and Leisure Integration
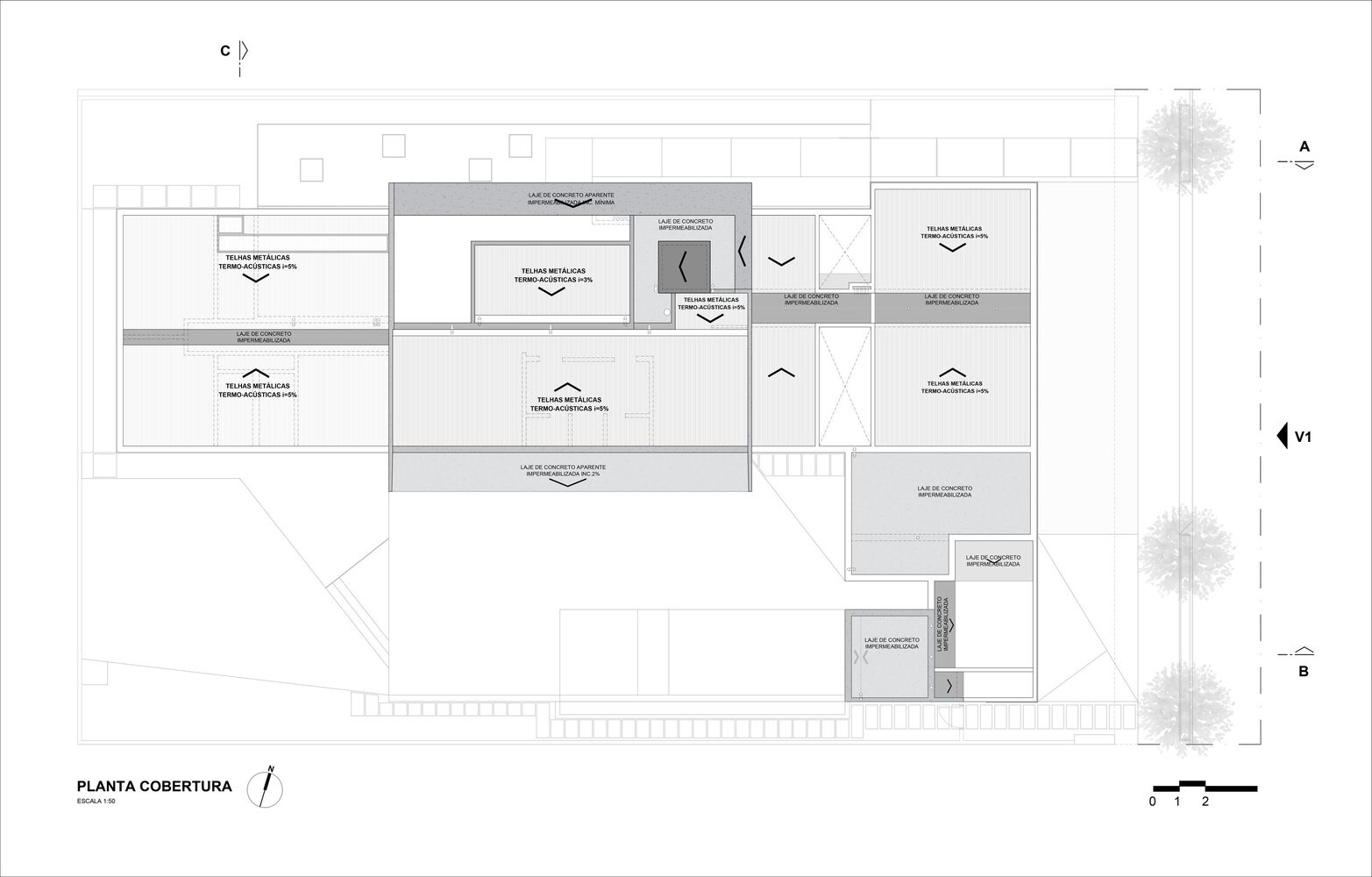
The elevated third block, crafted from exposed concrete, houses the master suite, offering panoramic views and privacy. This section stands out architecturally with its brise-soleil façade, enhancing both the aesthetic and environmental performance of the home.



Environmental Adaptation and Aesthetics
The FG House adopts several strategies to align with the tropical Brazilian climate:
- Orientation and Ventilation: The longitudinal layout minimizes heat exposure while maximizing natural ventilation, creating comfortable living conditions year-round.
- Indoor-Outdoor Connection: Large glass panels and strategic layout foster a deep connection with the surrounding gardens, enhancing the quality of life for residents.
- Material Selection: The use of exposed concrete and aluminum brises reflects a modern material palette that is both functional and visually appealing.


A New Paradigm in Brazilian Homes
The FG House by Caracho Arquitetos sets a new standard for modern Brazilian residential architecture, combining innovative design with environmental strategies. It stands as a testament to contemporary living, where comfort, aesthetics, and nature converge seamlessly.







All photographs are work of Daniel Santo
Popular Articles
Popular articles from the community
20 Most Popular Office Building Projects of 2025
From biophilic workspaces in India to net-positive energy offices in New Delhi, 20 office building projects that defined architecture in 2025.
boq architekti Fits a Gabled Family House onto a Tiny Moravian Hillside Plot with No Room for a Garden
A 115 square meter home in South Moravia trades a garden for a rooftop terrace and a fully glazed facade facing the village below.
Architects Group RAUM Stacks Offset White Volumes into a Compact Office Tower in Busan
A 524-square-meter building on a tight corner lot in Haeundae plays with sunlight rights and shifting floor plates to create generous terraces.
20 Most Popular Furniture Design Projects of 2025
Modular street systems, parametric benches, and insect hotels: the furniture design projects that captivated architects on uni.xyz in 2025.
Similar Reads
You might also enjoy these articles
BICA Arquitectos Buries a Coastal Home in a Man-Made Dune on Portugal's Tróia Peninsula
A 300-square-meter house of timber, sand mortar, and travertine dissolves into the dune landscape it helped regenerate on the Alentejo coast.
The Ranch Mine Runs a White Pavilion Parallel to a 1970s House in Paradise Valley
A hemlock-lined addition reframes desert living by pulling light, views, and a courtyard pool from an outdated Arizona home.
Architects Group RAUM Stacks Offset White Volumes into a Compact Office Tower in Busan
A 524-square-meter building on a tight corner lot in Haeundae plays with sunlight rights and shifting floor plates to create generous terraces.
Studio Gram Unfurls a Concrete Curve Through an Adelaide Queen Anne Villa
In Rose Park, a billowing concrete threshold stitches a century-old house to a sun-chasing pavilion organized around an existing pool.
Explore Architecture Competitions
Discover active competitions in this discipline
The International Standard for Design Portfolios
The Global Benchmark for Architecture Dissertation Awards
The Global Benchmark for Graduation Excellence
Challenge to reimagine the Iron Throne
Comments (0)
Please login or sign up to add comments
No comments yet. Be the first to comment!