Modern Ceramic-Clad Cultural Architecture: The Nanchang Grand Theatre by PES-Architects
A comprehensive exploration of the Nanchang Grand Theatre, blending ceramic-clad modernity with sustainable design and cultural significance.
Situated along the scenic Jiulong Lake in Nanchang, China, the Nanchang Grand Theatre is a testament to modern cultural architecture infused with traditional craftsmanship. Designed by PES-Architects, this 45,000-square-meter landmark serves as a vibrant cultural hub for Nanchang South New City. With its translucent ceramic façade and sustainable design, the theatre harmoniously blends aesthetics, functionality, and environmental responsibility, redefining what it means to be a modern cultural institution.



A Translucent Cultural Vessel
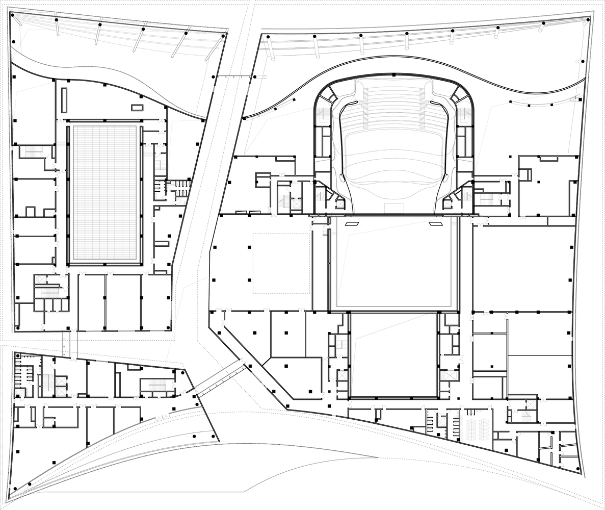
The Nanchang Grand Theatre is envisioned as a porous urban cube, seamlessly integrating interior and exterior spaces. Its unique design encompasses three main functional components: a 1,600-seat opera hall, a 450-seat multipurpose hall, and a cultural center featuring rehearsal and exhibition spaces. These elements are connected by a naturally lit central passage that invites the public to explore its spaces while linking Jiulong Lake Park with the city’s future commercial district.
The open ground floor fosters accessibility, housing public and commercial functions such as cafés, events, and exhibitions. This layout draws inspiration from the vibrant streets of traditional Chinese villages, ensuring the building remains lively and inviting throughout the day.




Innovative Use of Ceramics and Bamboo
The theatre’s design showcases an extensive use of ceramics and bamboo, materials deeply rooted in Chinese culture. The exterior is wrapped in a "veil" of China White ceramic louvres, inspired by the translucent quality of local rice porcelain. These double-curved surfaces, supported by steel cables, not only provide solar protection but also offer glimpses into the building’s contrasting terracotta and bamboo interiors.



Inside, the foyers and performance spaces are clad in fireproof stained bamboo, a sustainable material that imparts warmth and elegance. Flooring materials include natural stone and strand-woven bamboo, creating a cohesive palette that connects the structure to its natural surroundings.


Acoustically Mastered Performance Spaces
At the heart of the theatre is the opera hall, a masterpiece of acoustic engineering and artistic design. Its dark-stained bamboo cladding, inspired by the rippling waves of Jiulong Lake, transforms the space into a finely crafted musical instrument. The multipurpose hall, with its adjustable seating and grid-mounted lighting, offers flexibility for various events. Light bamboo finishes in this space contrast with the opera hall, emphasizing the adaptability of the venue.


Urban Integration and Connectivity
The theatre is strategically positioned to serve as a bridge between the commercial and cultural zones of Nanchang South New City. Its main entrance plaza to the south opens onto the park, while a northern entrance connects to the commercial district. The expansive roof canopy above the main entrance creates an iconic focal point, complemented by a large outdoor auditorium. These spaces encourage community engagement and foster a dynamic interplay of commerce, culture, and green areas.


Sustainability at the Core
Sustainability is a guiding principle in the design of the Nanchang Grand Theatre. The ceramic façade reduces cooling costs by providing natural shading, while rooftop solar collectors and rainwater harvesting systems optimize resource efficiency. The use of durable, natural materials ensures minimal maintenance and a long lifespan, underscoring the theatre’s commitment to environmental responsibility.







A Timeless Cultural Landmark
The Nanchang Grand Theatre transcends its role as a performance venue to become a cultural and architectural beacon for the region. Its innovative use of materials, thoughtful urban integration, and dedication to sustainability position it as a modern cultural landmark. By blending tradition and modernity, the theatre not only enriches the urban fabric but also inspires a deeper appreciation for the arts and sustainable design.







All Photographs are work of Yuhao Ding, Virgile Bertrand
Popular Articles
Popular articles from the community
Fifth NRE Jazz Club – De Bever Architecten: Eindhoven’s Revitalized Cultural Hub
Historic gas factory transformed into Fifth NRE Jazz Club blending modern sustainability, jazz culture, dining, and heritage architecture seamlessly.
Free Architecture Competitions You Can Enter Right Now
No entry fees, real prizes. Here are the best free architecture competitions open for submissions in 2026.
Solar Steam: A Climate-Responsive Architecture That Redefines the Monument
A climate-responsive memorial architecture that transforms heat, decay, and time into a living system reflecting humanity’s ecological impact.
Similar Reads
You might also enjoy these articles
Free Architecture Competitions You Can Enter Right Now
No entry fees, real prizes. Here are the best free architecture competitions open for submissions in 2026.
Top 15 Architecture Competitions to Enter in 2026
From student-friendly idea competitions to prestigious international awards, here are the best architecture competitions open for entries in 2026. Updated regularly.
DIY & Engineering in Computational Design : Enter the BeeGraphy Design Awards
Showcase Your Creativity with Computational Design and Open Source Projects

Innovative Design Solutions: Award-Winning Projects from Recent Architecture Competitions
Exploring award-winning architectural projects shaping the future of design, sustainability, and community.
Explore Architecture Competitions
Discover active competitions in this discipline
The International Standard for Design Portfolios
The Global Benchmark for Architecture Dissertation Awards
The Global Benchmark for Graduation Excellence
Challenge to reimagine the Iron Throne
Comments (0)
Please login or sign up to add comments
No comments yet. Be the first to comment!