Modern Concrete House in Vietnam: V+J House by NAW Studio
V+J House is a modern concrete home in Vietnam blending personal expression, minimalist design, and multi-generational comfort.
A Personalised Living Space Reflecting Passion and Precision
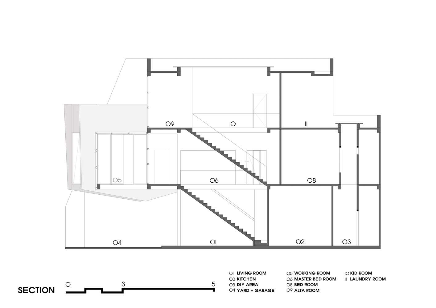
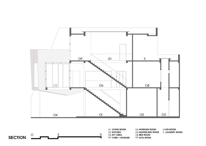
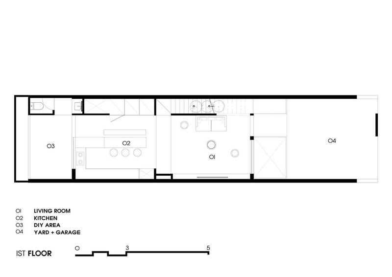
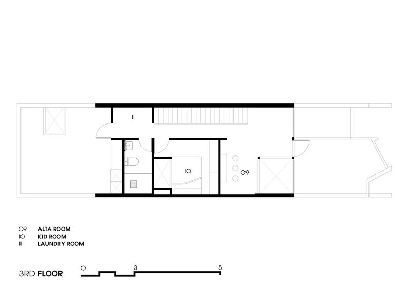
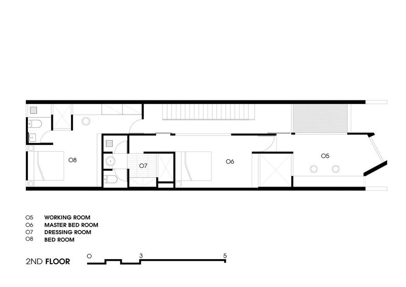
The V+J House, designed by NAW Studio, is a striking example of a modern concrete house in Vietnam. Located on Tran Dang Street in Da Nang, this three-storey residence reflects the lifestyle and personality of a tech-savvy young homeowner. Built on a 100m² plot and home to three generations, the project is a seamless expression of identity, contemporary architecture, and high-performance design.




A Bold Concrete Facade That Leaves a Lasting Impression
The first impression of the house is its bold geometric facade, characterized by a sharply beveled concrete block that appears to float mid-structure. This dynamic form creates a striking visual contrast while asserting the architectural language of the home. The diagonally cut volume not only highlights the use of raw concrete but becomes a sculptural landmark on the street—a strong reflection of the owner’s modernist aesthetic and individuality.




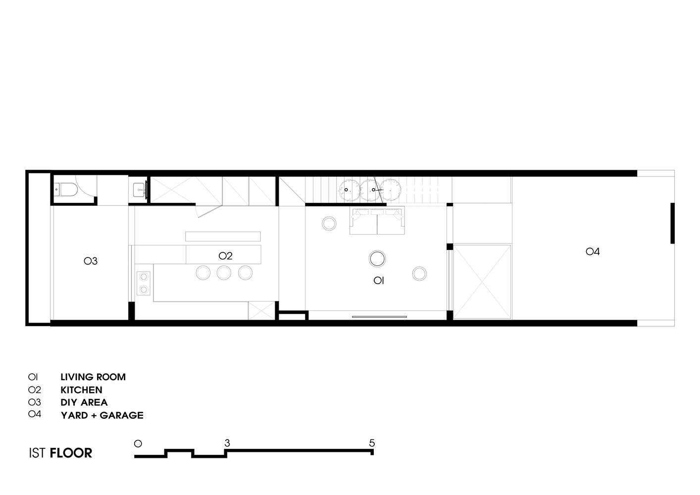
A Ground Floor Designed for Interaction and Identity
Upon entering, the residence reveals its carefully curated spatial arrangement and refined material palette. The ground floor is a continuous open-plan layout that merges the kitchen and dining spaces into a central hub of daily life. A small koi pond greets guests at the entrance, serving both functional and symbolic purposes—it enhances air circulation and offers a tranquil touch that nods to the homeowner’s appreciation for nature.


Within this floor, dark grey tones define the interiors, giving the space a sleek, contemporary look. Every element, from the audio-visual equipment to high-end kitchen appliances, was handpicked to reflect the owner's interest in technology and high-performance gadgets. A small, light-filled studio sits at the rear—a private space for creative projects and displaying personal collectibles. The stairway, subtly tucked into the layout, leads effortlessly to the upper floors, preserving the openness of the plan.


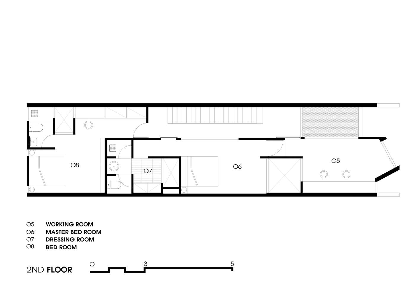
Concrete Studio and Skylight Integration on the Second Floor
Moving to the second level, the home transitions into more private spaces, while continuing its narrative of materiality and personality. This floor houses a standout feature: a concrete-encased working studio, designed to accommodate the owner’s daily IT work. With large skylights and clever diagonal cuts in the concrete, the studio is bathed in natural light and cross-ventilation, making it both functional and inspiring.



Connected to a trellis area, this space allows for moments of pause and recharging throughout the workday. The fusion of raw textures and soft natural light creates an atmosphere of calm focus, tailored perfectly for a tech-driven lifestyle. The rest of the floor serves the family's needs with equal care, ensuring that the modern living environment extends to all members of the household.



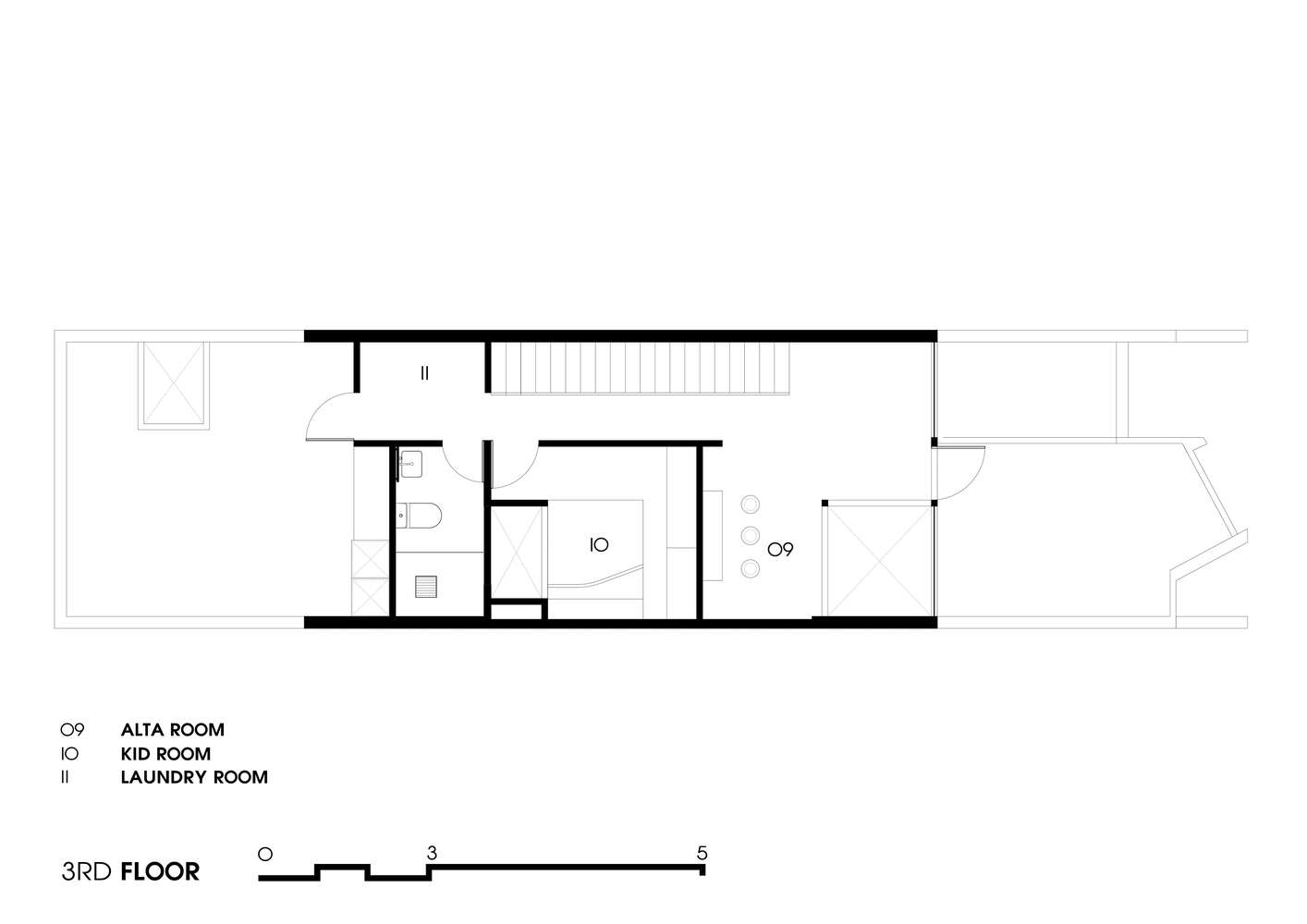
Designing for Generational Comfort and Environmental Harmony
Throughout the home, NAW Studio achieved a balance between bold architectural gestures and domestic comfort. Multiple sides of the house are open to natural light and breezes, creating a healthy, energy-efficient environment. The use of raw materials such as exposed concrete is softened by interior finishes and strategic greenery, aligning the project with both contemporary aesthetics and sustainable design values.



The V+J House is not only a residence—it is an extension of the homeowner's passions, meticulously crafted into built form. The success of the project lies in how intimately the design reflects the character, interests, and aspirations of its occupant, while also providing a multi-generational home with comfort, flexibility, and lasting architectural impact.



All photographs are works of DinhR