Modern Courtyard House Design: Chill House by STEPS Architecture in Beijing
A contemporary courtyard house in Beijing, Chill House blends traditional form and modern design for a serene family retreat with mountain and garden views.
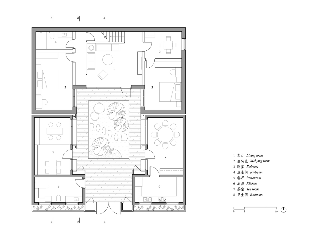
Chill House by STEPS Architecture is a stunning example of modern courtyard house design, blending traditional Chinese quadrangle layouts with contemporary architectural elements. Located in the Miyun District of Beijing, this 275 m² residence was completed in 2025 as a weekend retreat for a family seeking comfort, connection to nature, and spaces to relax. The renovation reimagines a one-tier quadrangle courtyard, keeping the two wing buildings while replacing the principal building with a new two-story structure for the main living spaces.

A Courtyard-Centered Concept
The courtyard is the heart of this modern courtyard house design. Before the renovation, the existing structures lacked visual and physical connections to the courtyard, limiting its potential. The redesign directly links the principal and wing buildings, reshaping the interior-exterior relationship. Large exterior niches in the dining and tea rooms, formed under the eaves of the original wings, provide window seats with views of the landscaped courtyard. The living room features a large French window, seamlessly extending the view outdoors, while cantilevered eaves create shaded areas and expand the perception of space.



Mountain Views and Roof Terrace Living
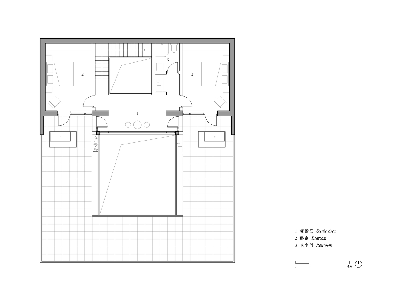
By connecting the principal and wing buildings, the architects expanded the roof terrace, making it an ideal spot for viewing mountains, sunrises, and sunsets. Accessed from the second floor, the terrace is reached via a widened cantilevered corridor that also forms the eave of the living room below. Long horizontal windows frame layered views of the courtyard, distant peaks, and the neighborhood’s tiled roofs. The recessed walls of the second-floor bedrooms create eaves that provide shade while enhancing the transition between indoors and outdoors.




Harnessing Light with Skylights
Natural light plays a pivotal role in Chill House. The double-pitched roof of the principal building integrates a skylight, flooding the double-height living room with daylight. The L-shaped staircase incorporates framed views of both the courtyard and skylight, turning circulation into an experience. Bedrooms on the first floor, which receive less daylight due to their proximity to the wing buildings, are illuminated with skylights positioned to create seating areas on the roof terrace.


Practical Construction Choices
The project’s construction adapted to the limitations of local building expertise. The structure shifted from a reinforced concrete frame to a brick-concrete system to match local capabilities. Overturning concrete beams were cleverly integrated to allow for insulation, waterproofing, and elegant proportions. External insulation and water-based sand paint protect the home against Beijing’s harsh winters, while maintaining a refined, modern look.
A Home Designed for Relaxation
The essence of this modern courtyard house design lies in its ability to make every corner a place to pause, look out, and relax. From the shaded eaves to the terrace seats, every element invites slow living and contemplation. The result is a contemporary interpretation of a traditional courtyard home — one that embraces views of the sky, mountains, and the intimate garden within.




Chill House is a masterful example of how modern courtyard house design can honor tradition while embracing contemporary needs. Through thoughtful spatial connections, strategic views, and climate-conscious construction, STEPS Architecture has created a warm, inviting retreat that reflects both place and lifestyle.




All photographs are works of Ji Zhang
Popular Articles
Popular articles from the community
Free Architecture Competitions You Can Enter Right Now
No entry fees, real prizes. Here are the best free architecture competitions open for submissions in 2026.
Split House: A Compact Urban Home Blending Privacy, Light, and Flexible Living in Japan
Compact Japanese home featuring DOMA space, flexible café potential, passive lighting, privacy zoning, and sustainable urban living design.
Alton Cliff House: A Harmonious Retreat by f2a Architecture in Lake Country, Canada
Alton Cliff House blends corten steel, prefabrication, and sustainable design, creating a luxurious, energy-efficient retreat perched on Canadian cliffs.
Inverted Architecture Installation by Studio Link-Arc: Exploring the Intersection of Architecture and Living Organisms
Inverted Architecture Installation by Studio Link-Arc blends mycelium, sustainability, inverted design, ecological cycles, and urban adaptive architecture in Shenzhen.
Similar Reads
You might also enjoy these articles
Free Architecture Competitions You Can Enter Right Now
No entry fees, real prizes. Here are the best free architecture competitions open for submissions in 2026.
Top 15 Architecture Competitions to Enter in 2026
From student-friendly idea competitions to prestigious international awards, here are the best architecture competitions open for entries in 2026. Updated regularly.
DIY & Engineering in Computational Design : Enter the BeeGraphy Design Awards
Showcase Your Creativity with Computational Design and Open Source Projects

Innovative Design Solutions: Award-Winning Projects from Recent Architecture Competitions
Exploring award-winning architectural projects shaping the future of design, sustainability, and community.
Explore Architecture Competitions
Discover active competitions in this discipline
The International Standard for Design Portfolios
The Global Benchmark for Architecture Dissertation Awards
The Global Benchmark for Graduation Excellence
Challenge to reimagine the Iron Throne
Comments (0)
Please login or sign up to add comments
No comments yet. Be the first to comment!