Modern Residential Architecture in Tehran: Sayeh Residential Building by Ali Haghighi Architects
Explore the Sayeh Residential Building by Ali Haghighi Architects, showcasing modern residential architecture and innovative design in Tehran.
The Sayeh Residential Building, designed by Ali Haghighi Architects, is a striking example of modern residential architecture in Tehran. This project showcases a transition from a neoclassical structure to a contemporary design, reflecting the evolving architectural landscape of Iran's capital.




Project Overview
Client's Vision and Project Scope
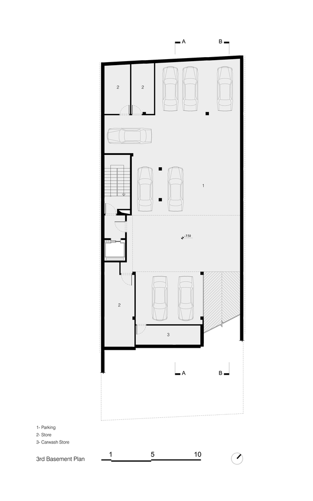
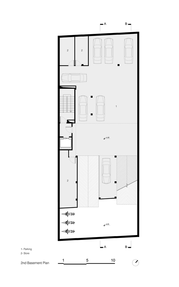
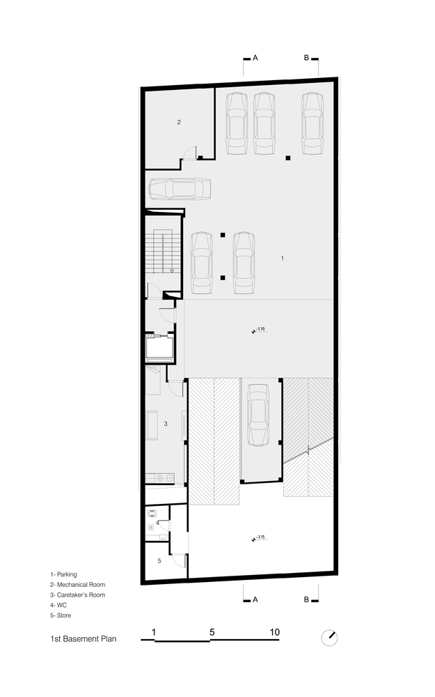
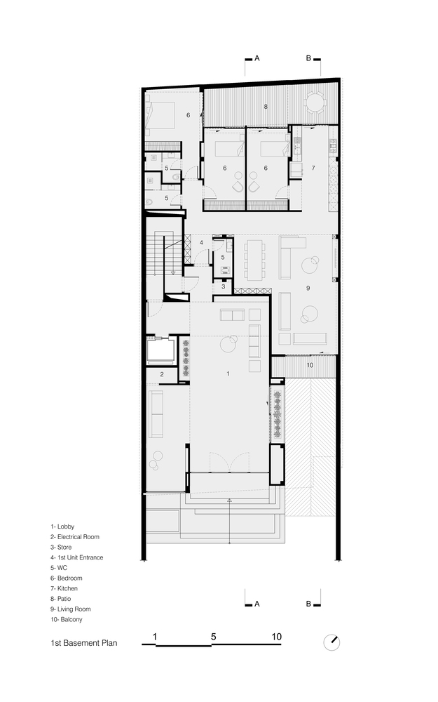
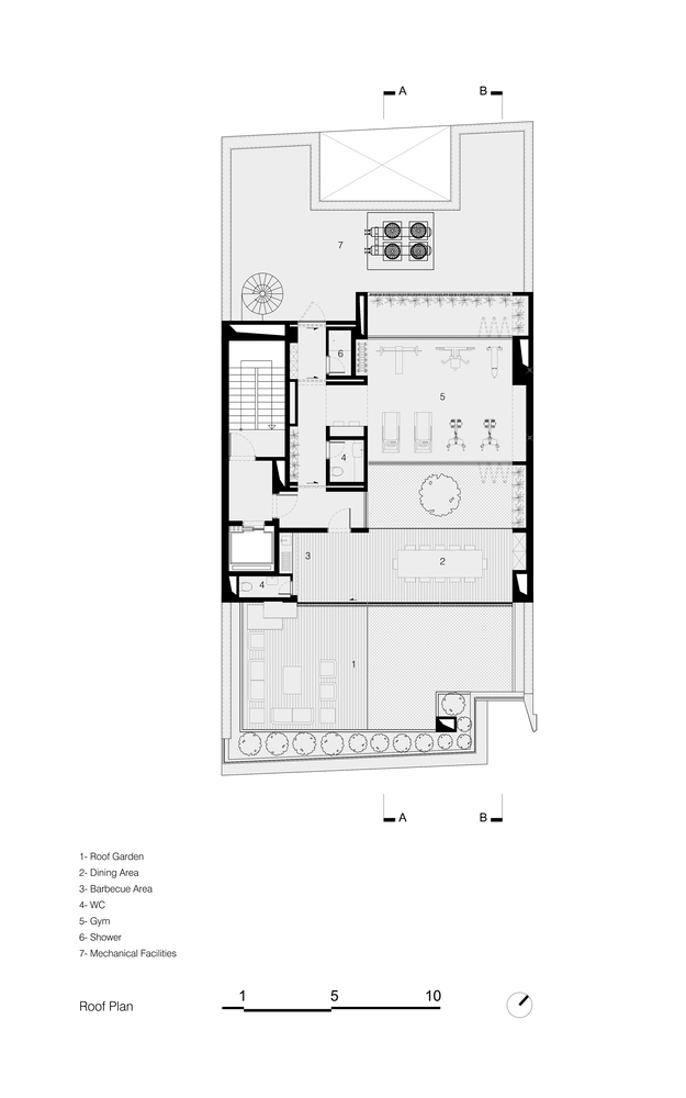
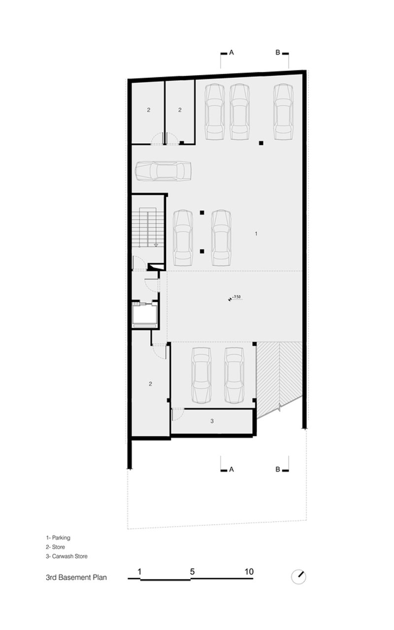
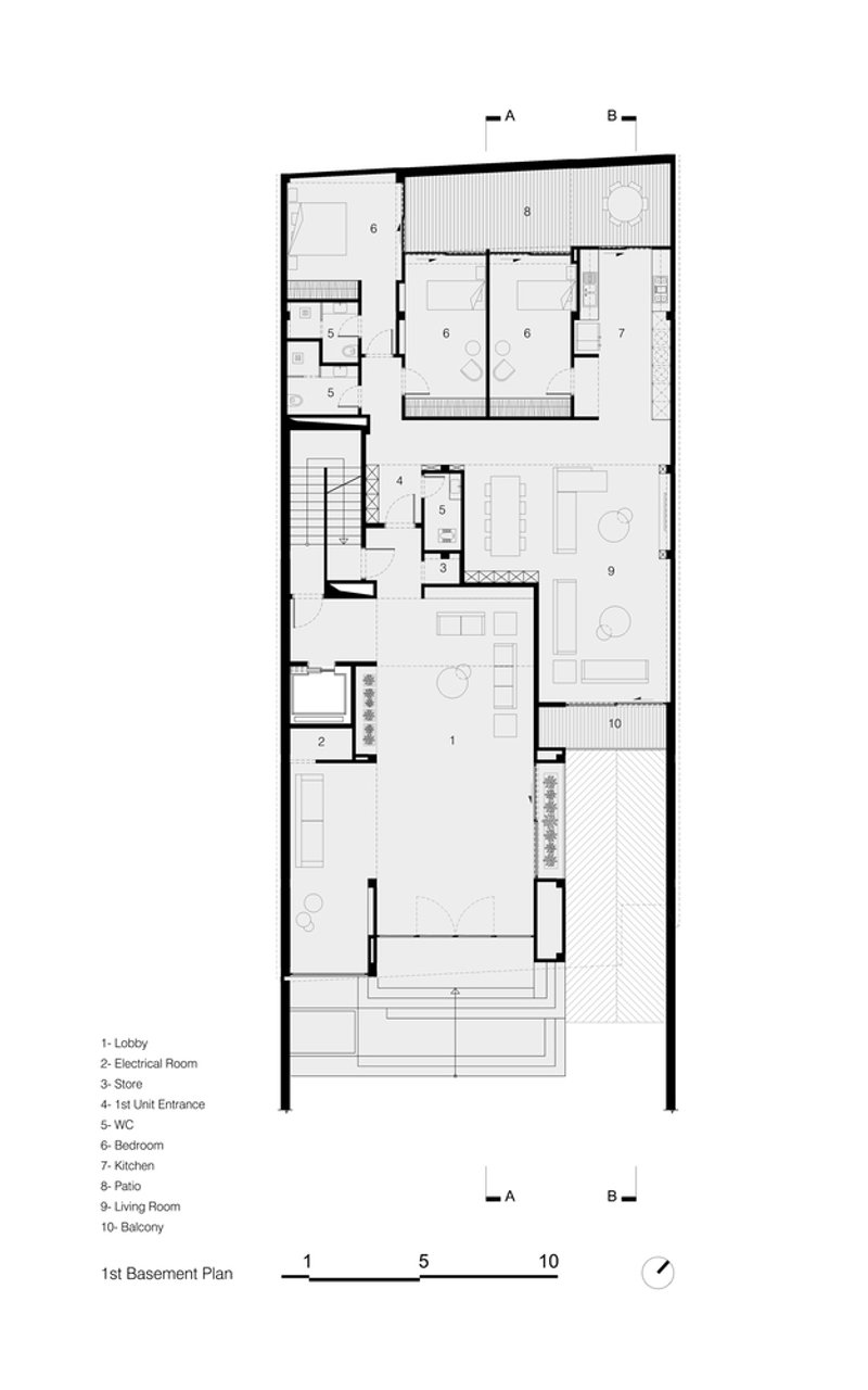
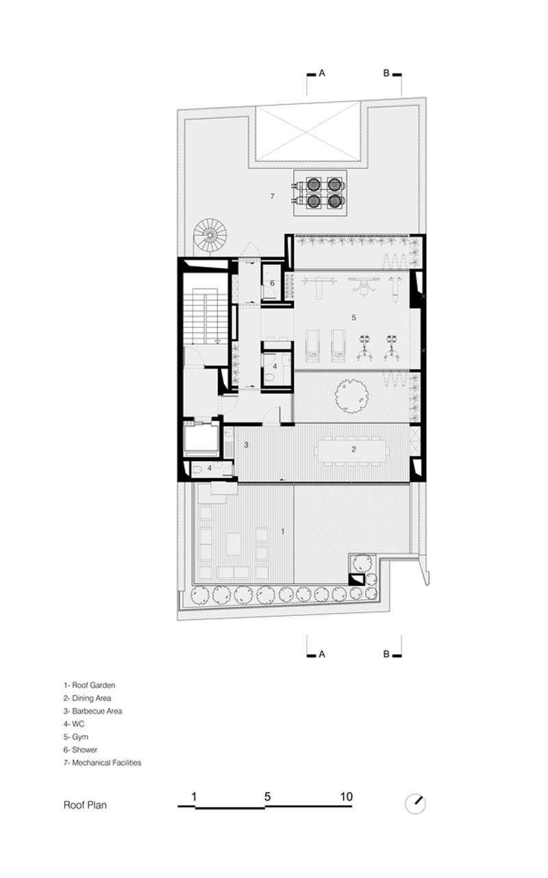
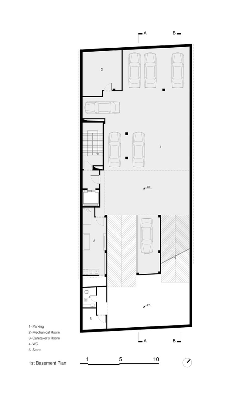
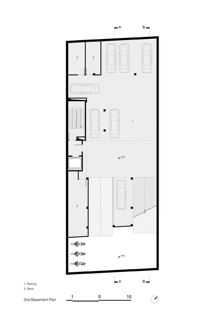
Originally designed with a neoclassical structure, the project was re-envisioned to embrace a modern aesthetic at the client's request. The building comprises five residential units, each occupying 330 square meters per floor, a ground-floor unit near the lobby, and three underground floors. The common areas include a sports space and a communal area with a movable roof adjacent to the roof garden.



Design Challenges and Solutions
Structural Constraints
The existing structure imposed several restrictions, including fixed columns, low floor heights, and a 45° bevel on the facade. Despite these limitations, the redesign aimed to achieve a better spatial order and a modern facade that stands out in Tehran's diverse urban landscape.



Facade Design
Simplicity and Aesthetics
In a cityscape marked by a variety of colors, materials, and redundant details, the design team focused on simplicity. The facade design adheres to principles of aesthetics such as proportions, scale, rhythm, and balance of vertical and horizontal lines. This approach creates a static yet dynamic composition that enhances the building's visual appeal.



Innovative Use of Materials
The facade features polished carved stone ingots that serve as vertical louvers with a trapezoidal cross-section. These elements not only provide partial enclosure for private spaces like guest rooms and terraces but also reflect sunlight, enhancing both privacy and light management.



Interior Design and Functionality
Spatial Organization
The interior design focuses on creating harmonious and functional living spaces. The extension of stone ingots into the interior spaces, combined with vertical mirrors, creates a play of light, shadow, and reflection. This design choice deepens the facade and adds a poetic perception to the interior spaces.



Light and Privacy
The facade design addresses the need for both light and privacy. The eastern-facing section is compact to prevent direct views, while the southern-facing section opens up to provide connectivity with the city. Fixed stone elements create a boundary that balances light and privacy without relying on common solutions like movable screens.



Environmental and Aesthetic Impact
Shadows and Reflections
The arrangement of the carved stone ingots creates various shadows and half-shadows throughout the day. Their polished surfaces reflect sunlight inside, enhancing the natural lighting and contributing to the building's energy efficiency.


Integration with Urban Context
The Sayeh Residential Building integrates seamlessly into Tehran's urban fabric while standing out due to its modern design. The building's simplicity and elegance offer a fresh perspective on residential architecture in the city.

The Sayeh Residential Building by Ali Haghighi Architects exemplifies modern residential architecture in Tehran. Through innovative design solutions and a commitment to aesthetics and functionality, the project redefines urban living in Iran's capital. This transformation from a neoclassical to a contemporary structure showcases the dynamic evolution of Tehran's architectural landscape.


All photographs are work of Deed Studio – Ali Haghighi
Popular Articles
Popular articles from the community
Split House: A Compact Urban Home Blending Privacy, Light, and Flexible Living in Japan
Compact Japanese home featuring DOMA space, flexible café potential, passive lighting, privacy zoning, and sustainable urban living design.
Gads Hill Early Learning Center by JGMA: Adaptive Reuse Shaping Community-Focused Educational Architecture
Adaptive reuse transforms fragmented structure into vibrant early learning center with playful façade, natural light, and community-focused sustainable design.
The Ken Roberts Memorial Delineation Competition (Krob)
As the most senior architectural drawing competition currently in operation anywhere in the world, it draws hundreds of entries each year, awarding the very best submissions in a series of medium-based categories.
Similar Reads
You might also enjoy these articles
Free Architecture Competitions You Can Enter Right Now
No entry fees, real prizes. Here are the best free architecture competitions open for submissions in 2026.
Top 15 Architecture Competitions to Enter in 2026
From student-friendly idea competitions to prestigious international awards, here are the best architecture competitions open for entries in 2026. Updated regularly.
DIY & Engineering in Computational Design : Enter the BeeGraphy Design Awards
Showcase Your Creativity with Computational Design and Open Source Projects

Innovative Design Solutions: Award-Winning Projects from Recent Architecture Competitions
Exploring award-winning architectural projects shaping the future of design, sustainability, and community.
Explore Architecture Competitions
Discover active competitions in this discipline
The International Standard for Design Portfolios
The Global Benchmark for Architecture Dissertation Awards
The Global Benchmark for Graduation Excellence
Challenge to reimagine the Iron Throne
Comments (0)
Please login or sign up to add comments
No comments yet. Be the first to comment!