Museum Bezau by Innauer-Matt Architekten: A Fusion of Heritage and Contemporary Museum Architecture
A contemporary timber museum in Austria harmoniously expands a heritage building, fusing traditional craftsmanship with modern spatial design.
Introduction to Museum Bezau: Honoring Local Tradition through Contemporary Design
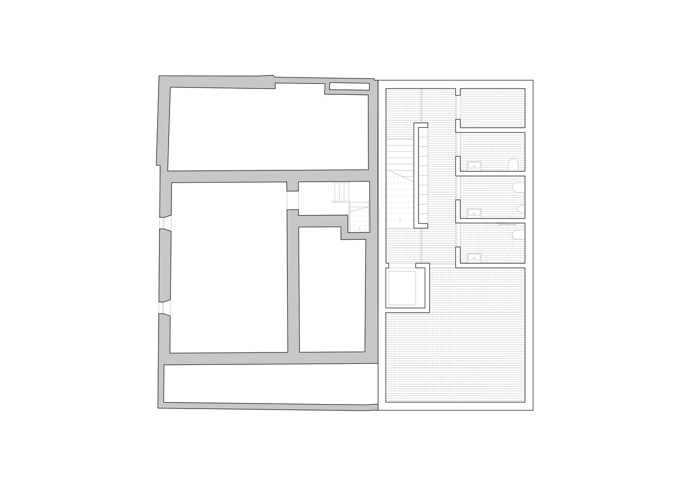
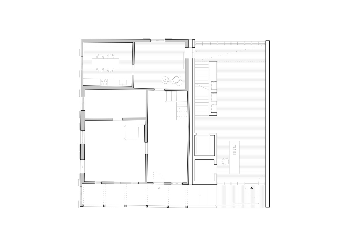
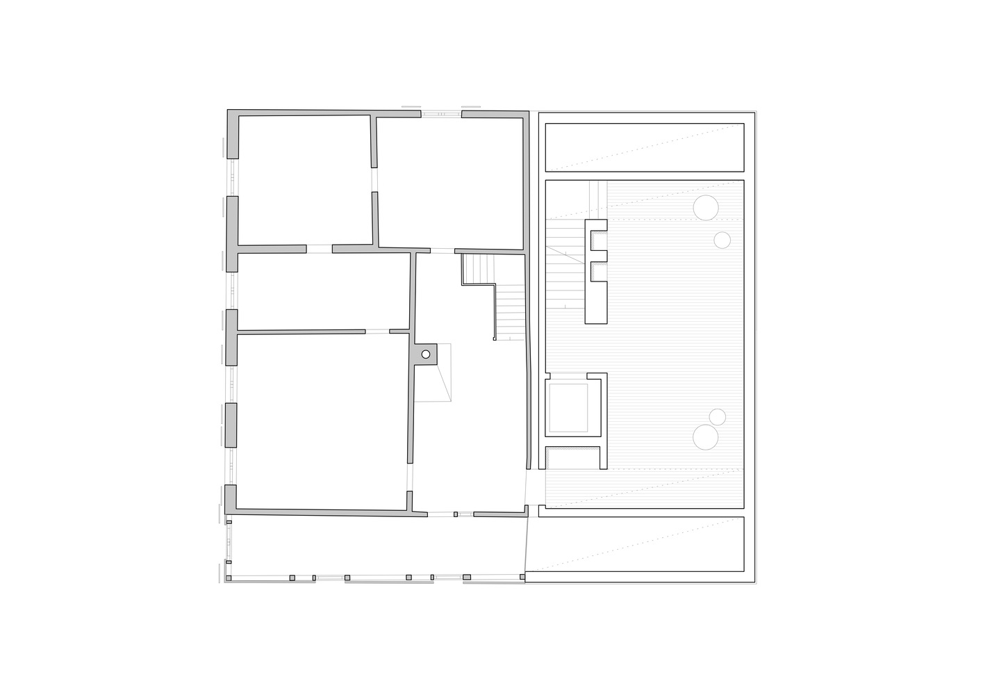
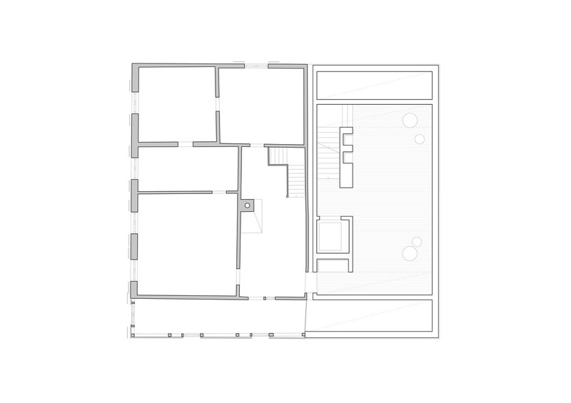
Nestled in the scenic village of Bezau, Austria, the newly expanded Museum Bezau by Innauer-Matt Architekten exemplifies the evolution of contemporary museum architecture within a heritage setting. Completed in 2024, this 408 m² structure bridges past and present by extending a protected historic building with a thoughtfully designed modern timber volume. The project restores the traditional Bregenzerwald house typology while offering state-of-the-art exhibition spaces and cultural programming.




Architectural Strategy: Merging Historical Authenticity with Modern Craft
The core of the architectural narrative is rooted in the dialogue between old and new. The original building, heritage-listed and rich in local craftsmanship, stands as a cultural artifact in itself. Its character is not only preserved but enhanced by the new extension, which revitalizes the Bregenzerwald spatial logic of a “front and rear” layout.


The design restores this spatial rhythm, carefully continuing its architectural language in a way that feels both contextual and innovative. By embedding the extension within the existing architectural fabric, Innauer-Matt Architekten reestablish a meaningful continuity, allowing the building to serve both as an object of study and a container for stories.



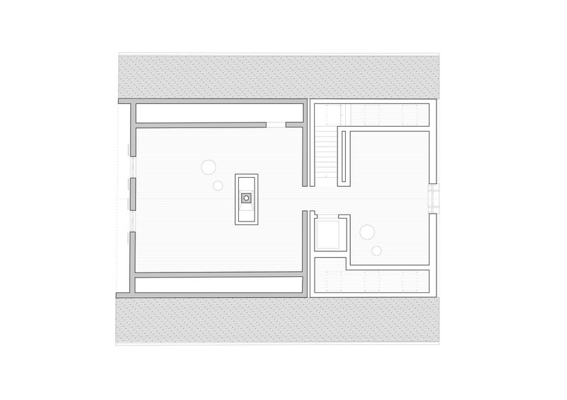
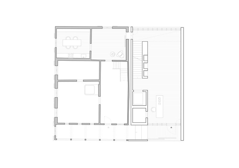
Spatial Composition: Interlocking Volumes for Exhibition Versatility
The new addition spans three floors, providing flexible and multifunctional spaces for modern museum use. It accommodates a visitor reception area, hosts small cultural events, and houses rotating exhibitions. The internal arrangement is conceived as a spatial interplay—interlocking horizontally and vertically across levels to create a dynamic experience.


Contrasts are central to the spatial concept: dark and light, narrow and wide, high and low. This rich spatial variety enhances the curation and perception of the museum's content, allowing for immersive storytelling and engaging exhibitions that adapt to their architectural frame.

Materiality and Craftsmanship: Celebrating Local Building Culture
The project embodies the Baroque tradition of craftsmanship native to the region. True to this ethos, architecture and craft converge in both the planning and execution phases. A prefabricated timber structure forms the contemporary extension, aligning with the ecological and aesthetic values of Bregenzerwald architecture.



Externally, the shingle façade and differentiated textures express the building’s modern function while echoing traditional materials. Internally, the architecture remains warm and tactile. Whitewashed wood wall paneling, solid spruce floorboards, and finely crafted ash furniture compose a serene, timeless backdrop for historical exhibits.


Creating a Cohesive Cultural Ensemble
The result is not just an extension, but a new architectural whole—a cohesive ensemble where Old and New coexist in a layered spatial narrative. The Museum Bezau becomes a landmark of contemporary museum architecture, one that deeply respects its roots while inviting the future.





Through sensitive design, material expression, and architectural intelligence, Innauer-Matt Architekten have not only expanded a museum—they have revitalized a cultural icon, offering visitors an architectural experience as meaningful as the exhibits themselves.





All Photographs are works of Dominic Kummer
Popular Articles
Popular articles from the community
Rojkind Arquitectos and Think Parametric Build a Glueless Pavilion from 67 Interlocking Panels
A serpentine fiber-cement installation in Chapultepec Park celebrates a decade of architectural media in Mexico City.
YOAP Architects Round a Corner in Yeongcheon with a Cylindrical Community Hub
A 197-square-meter brick and ribbed-clad tower turns a forgotten alley corner in South Korea into a public garden with a low threshold.
20 Most Popular Office Building Projects of 2025
From biophilic workspaces in India to net-positive energy offices in New Delhi, 20 office building projects that defined architecture in 2025.
Takeshi Hosaka Architects Suspends a Concrete Cross Above a Yokohama Cemetery
A 28-square-meter burial renovation in Yokohama lifts the symbol of resurrection into the sky so mourners see it against heaven.
Similar Reads
You might also enjoy these articles
Bamboo Housing Challenge 2026: Design Affordable, Sustainable Homes Using Bamboo
An international design competition by Bamboo U and IBUKU inviting architects and designers to reimagine affordable housing using bamboo — with the winning design built full-scale in Bali.
Computational Design & Education: Beegraphy Design Awards Introduces 7th Category (Featuring Jiyun's Innovative Approach)
Dive into Beegraphy’s 7th Design Awards category, where computational design meets education to create immersive, interactive learning tools, inspired by Jiyun’s work.
From Parametric Lighting to Urban Furniture: Join the 2nd Workshop in Beegraphy’s Computational Design Series
Dive into Cutting-Edge Design Techniques and Practical Applications with Industry Experts
Introducing Sphere by UNI: Pioneering a New Era in AEC Industry
Unlocking Global Potential with BIM and Agile Management
Explore Architecture Competitions
Discover active competitions in this discipline
The International Standard for Design Portfolios
The Global Benchmark for Architecture Dissertation Awards
The Global Benchmark for Graduation Excellence
Challenge to reimagine the Iron Throne
Comments (0)
Please login or sign up to add comments
No comments yet. Be the first to comment!