Naranjo House by Taller Michoacán + Bruno Lomelín Gomez
Naranjo House blends modern Mexican architecture with patios, water, and natural light, creating a serene holiday retreat embracing privacy and openness.
A Contemporary Mexican Holiday Home Rooted in Tradition
The Naranjo House, designed by Taller Michoacán in collaboration with Bruno Lomelín Gomez, is a striking holiday home located in Peribán de Ramos, Mexico. With its bold geometry, carefully designed patios, and strategic use of light and water, the residence redefines the concept of a modern Mexican courtyard house while respecting local traditions and climate.
The client’s vision for a retreat home was met by creating two distinct volumes, connected through patios, green spaces, and a central body of water that integrates the architecture with the landscape. These volumes create a harmonious balance between privacy and openness, offering serene spaces for both social gatherings and intimate living.

Architecture and Design Concept
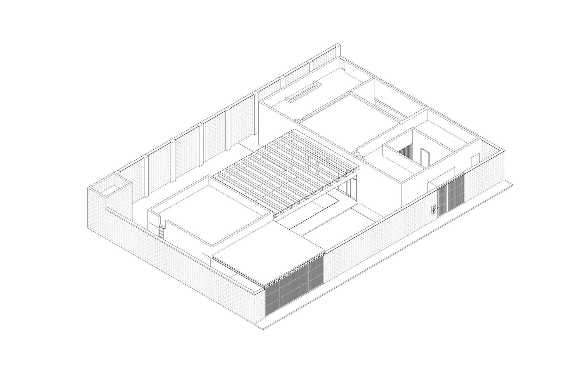
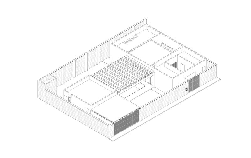
From the exterior, the façade of Naranjo House appears hermetic and minimal, with only pedestrian and vehicular entrances visible. This closed-off presence enhances the sense of privacy. However, once inside, the home reveals its dynamic sectional design, where spaces gradually unfold through patios, courtyards, and double-height areas.
The first volume contains the entrance patio, a transitional space that distributes circulation between vehicular and pedestrian access. Designed with conventional height, it creates a sense of intrigue and anticipation before opening into the expansive day area.
This central day zone, designed at one-and-a-half height, embraces the living and dining rooms. From here, the physical and visual connection to the swimming pool becomes immediate. The space also acts as a hub linking the kitchen, the breakfast patio, and the private night area. A wooden dividing wall subtly conceals the entrance to the bedrooms and bathrooms, scaling down the height to create an intimate residential experience.




Integration of Light, Water, and Nature
The pool is not just a recreational feature but a central convergence point for the house’s circulation. Covered by a glass roof, it blurs the boundaries between indoor and outdoor environments. This thoughtful integration also enhances natural heating, as the home’s orientation maximizes solar gain.
The second volume opens directly to landscaped terraces and the pool. This area is designed as a flexible leisure zone, blending indoor comfort with outdoor living.
The architects employed the patio house concept, ensuring that orientation, materiality, and distribution align with traditional Mexican architectural wisdom while embracing modern design language.





Materials and Atmosphere
The home uses brick, wood, and glass, balancing warmth with structural elegance. While the façade conveys solidity and privacy, the interiors are light-filled and connected to the outdoors. Natural materials bring timelessness, while spatial layering creates a rich sensory experience for its inhabitants.
Ultimately, Naranjo House is not just a vacation residence but a carefully orchestrated architectural experience—a dialogue between landscape, water, light, and human ritual.




All the photographs are works of Alberto Figueroa
Popular Articles
Popular articles from the community
Split House: A Compact Urban Home Blending Privacy, Light, and Flexible Living in Japan
Compact Japanese home featuring DOMA space, flexible café potential, passive lighting, privacy zoning, and sustainable urban living design.
Gads Hill Early Learning Center by JGMA: Adaptive Reuse Shaping Community-Focused Educational Architecture
Adaptive reuse transforms fragmented structure into vibrant early learning center with playful façade, natural light, and community-focused sustainable design.
Free Architecture Competitions You Can Enter Right Now
No entry fees, real prizes. Here are the best free architecture competitions open for submissions in 2026.
The Ken Roberts Memorial Delineation Competition (Krob)
As the most senior architectural drawing competition currently in operation anywhere in the world, it draws hundreds of entries each year, awarding the very best submissions in a series of medium-based categories.
Similar Reads
You might also enjoy these articles
The Ken Roberts Memorial Delineation Competition (Krob)
As the most senior architectural drawing competition currently in operation anywhere in the world, it draws hundreds of entries each year, awarding the very best submissions in a series of medium-based categories.
Waterfront Redevelopment and Urban Revitalization in Mumbai: Forging a New Dawn for Darukhana
A transformative waterfront redevelopment project reimagining Darukhana’s shipbreaking heritage into an inclusive urban future.
OUT-OF-MAP: A Call for Postcards on Feminist Narratives of Public Space
Rhizoma Design and Research Lab invites artists, designers, architects, researchers, and students to reflect on how feminist perspectives can reshape public space. Selected works will be exhibited in Barcelona, October 2026. Submissions open until 15 April 2026.
Documentation Work on Buddhist Wooden Temple
Architectural syncretism and cultural hybridity: A comparative study of the Buddhist temples in Chattogram Hill tracks
Explore Architecture Competitions
Discover active competitions in this discipline
The International Standard for Design Portfolios
The Global Benchmark for Architecture Dissertation Awards
The Global Benchmark for Graduation Excellence
Challenge to reimagine the Iron Throne
Comments (0)
Please login or sign up to add comments
No comments yet. Be the first to comment!