Neuroscience Center Sainte-Anne Hospital: Redefining Healthcare Architecture in Paris
An innovative neuroscience center blending modern functionality with historical architecture in Paris, shaping the future of healthcare design.
A Landmark of Modern Healthcare
The Neuroscience Center Sainte-Anne Hospital, designed by Pargade Architecte, is a groundbreaking facility in Paris, completed in 2024. This innovative center seamlessly integrates modern healthcare needs with historical architecture, redefining how hospitals serve both patients and the urban environment.




Historical Context: Bridging Legacy and Modernity
Sainte-Anne Hospital has long been a hub for mental health innovation, situated in a historical context shaped by Charles Auguste Questel’s neoclassical design. Pargade Architecte’s project respects this legacy while introducing contemporary elements to meet the demands of modern neuroscience and psychiatry.



Architectural Harmony with Heritage
The new Neuroscience Center incorporates handmade limestone-colored brickwork that blends the historical aesthetic with modern functionality. Its pure, volumetric form complements the original pavilion layout while introducing a sense of openness and connection to the city.



Functional and Sustainable Design
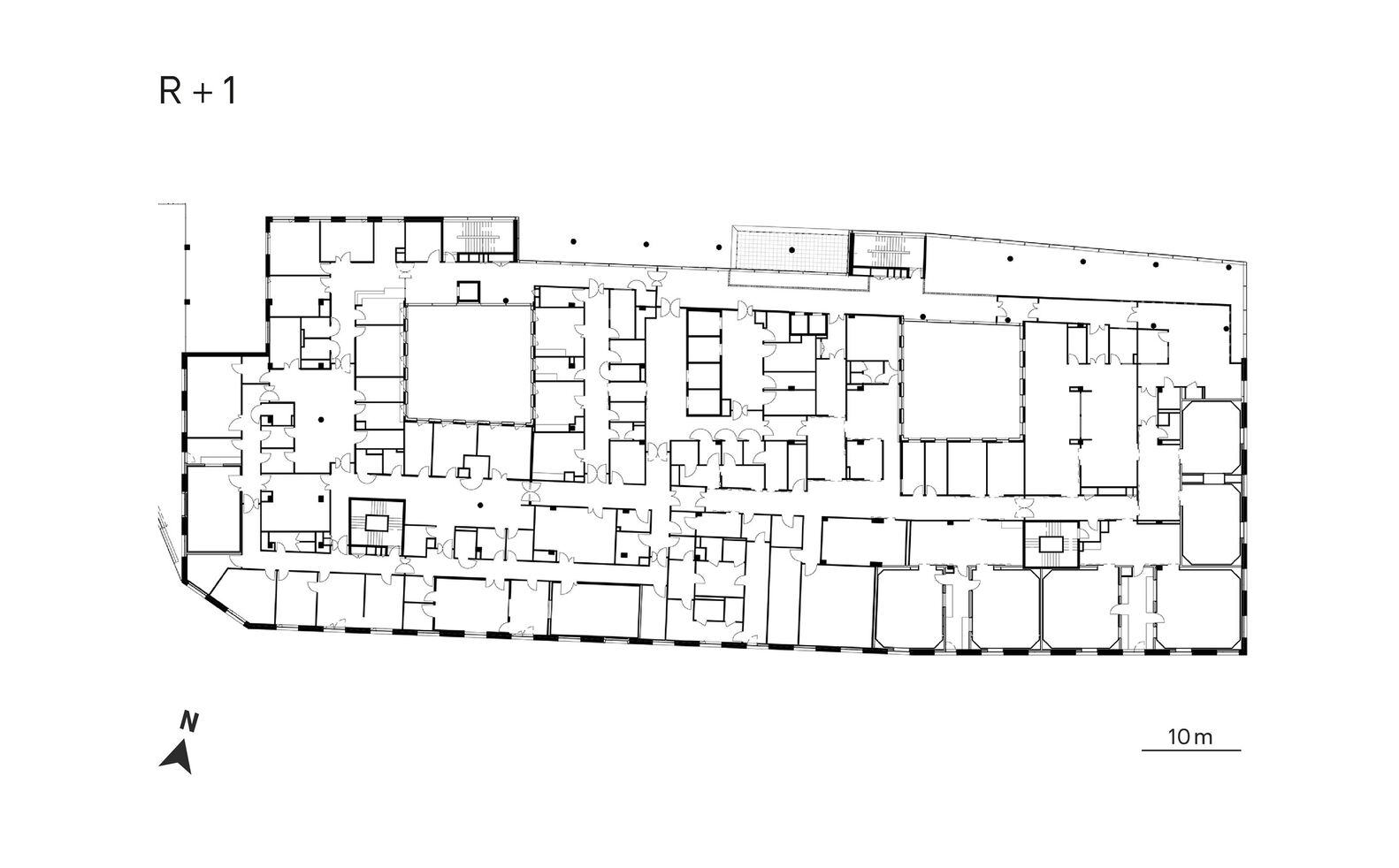
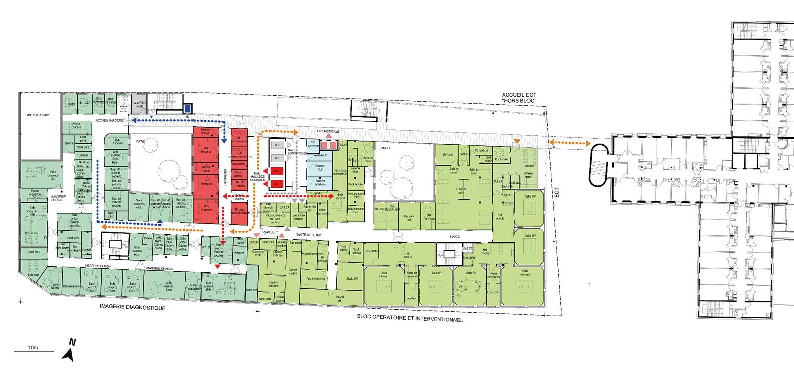
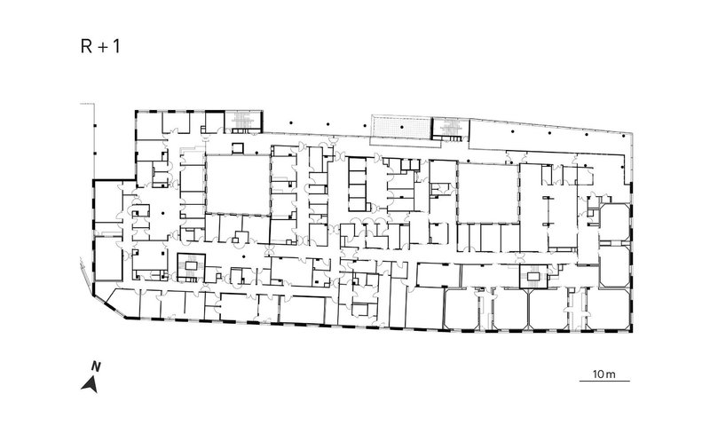
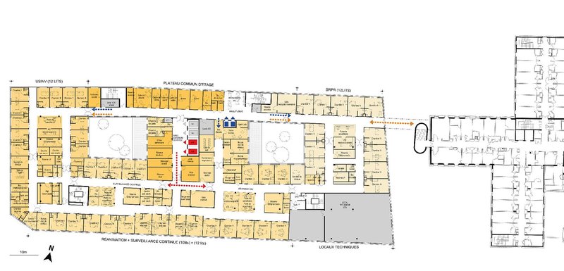
Programmatic Excellence
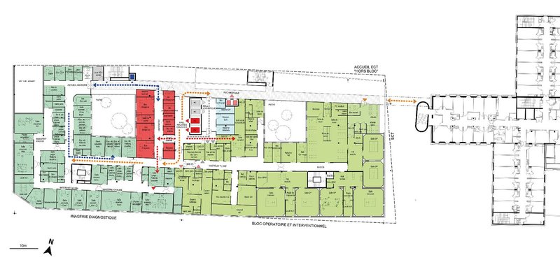
The center is designed to accommodate diverse medical and academic functions, including:
- Four operating rooms
- Two electroconvulsive therapy rooms
- An imaging department
- 135 patient beds
- Spaces for consultations and a day hospital
These facilities are organized into adaptable multi-purpose floors that prioritize patient flow and efficient circulation.



Green Spaces and Eco-District Vision
Half of the seven-hectare site is dedicated to landscaped green spaces, creating a "hospital eco-district." These cooling green areas improve patient recovery environments and foster community engagement, paving the way for sustainable urban healthcare models.

Architectural Innovations for Tomorrow
Flexibility in Design
The center’s flexible floor plans and modular spaces allow for future adaptations, reflecting the evolving complexities of healthcare and research.



Connectivity and Accessibility
Hospital-university hubs, or satellites, are integrated into the design, ensuring that the Neuroscience Center remains a vital part of the city’s fabric. The new urban square serves as an interface between the facility and its surroundings, inviting greater interaction between the hospital and the community.



A Model for Future Healthcare Facilities
The Neuroscience Center Sainte-Anne Hospital by Pargade Architecte is a testament to the transformative power of architecture in healthcare. It balances respect for historical legacy with forward-thinking design, creating a facility that is as functional as it is inspirational.


All Photographs are work of Charly Broyez
Popular Articles
Popular articles from the community
Studio Gram Unfurls a Concrete Curve Through an Adelaide Queen Anne Villa
In Rose Park, a billowing concrete threshold stitches a century-old house to a sun-chasing pavilion organized around an existing pool.
1-1 Architects Builds a Nagoya House and Office from Decades of Stockpiled Timber
A 69-square-meter tower in dense residential Nagoya transforms surplus lumber into a home and workplace for a construction company.
Paco Oria Estudio Rebuilds a 1949 Valencian Town House Around Timber, Terracotta, and a New Interior Patio
In Godella, Spain, a semi-detached house from the postwar era is stripped to its party walls and rebuilt with wood and ceramics.
20 Most Popular Office Building Projects of 2025
From biophilic workspaces in India to net-positive energy offices in New Delhi, 20 office building projects that defined architecture in 2025.
Similar Reads
You might also enjoy these articles
Olio Towers: A Mid-Rise for Performers That Fuses Housing, Rehearsal, and Stage
Located blocks from Houston's Theater District, this modular tower stacks living units around a central performance atrium.
Oasis: Modular Green Housing Carved into Dhaka's Urban Fabric
A shortlisted Plugin Housing entry reclaims unauthorized settlements in Dhaka with stepped concrete volumes, green roofs, and ventilation-driven design.
Black Hole: A Floating Megastructure for the Post-Physical Era
Emiliano Mazzarotto envisions a spherical, self-scaling arena where e-sports, digital hotels, and holographic stadiums replace traditional public space.
Compact & Sustainable Living in Piraeus: A Four-Level Family Home Built Around Light and Air
A narrow townhouse in one of Greece's densest port cities uses a central atrium and passive strategies to house three generations under one roof.
Explore Architecture Competitions
Discover active competitions in this discipline
The International Standard for Design Portfolios
The Global Benchmark for Architecture Dissertation Awards
The Global Benchmark for Graduation Excellence
Challenge to design an Ayurvedic Treatment Center
Comments (0)
Please login or sign up to add comments
No comments yet. Be the first to comment!