North Shore Residence: A Stunning Mid Century Modern Home Renovation by HEID Architects
This article explores the renovation of North Shore Residence, transforming a mid-century modern home into a contemporary lakeside retreat.
Transforming a Mid Century Modern Home into a Contemporary Lakeside Retreat
The North Shore Residence, designed by HEID Architects, stands as a masterful example of mid century modern home renovation. Located in West Bloomfield, Michigan, this 4,600-square-foot residence overlooks a picturesque lake and is surrounded by dense woodlands. Originally built with mid-century design principles, the home underwent a sophisticated renovation in 2024 that redefined its architectural language while embracing modern living standards.


The project carefully balanced preservation with innovation, honoring the home's mid-century character while introducing contemporary materials, open spaces, and nature-inspired detailing. This renovation transforms the residence into a serene retreat that seamlessly integrates with the surrounding landscape.


Bridging Nature and Architecture Through Design
Approaching the North Shore Residence, visitors are welcomed by an elongated bridge re-clad with warm cedar shingles and wood decking. This elevated entryway creates a sense of suspension among the tree canopies, offering glimpses of the lake beyond. The bridge serves as a visual and physical link between the home's natural setting and its architectural framework.


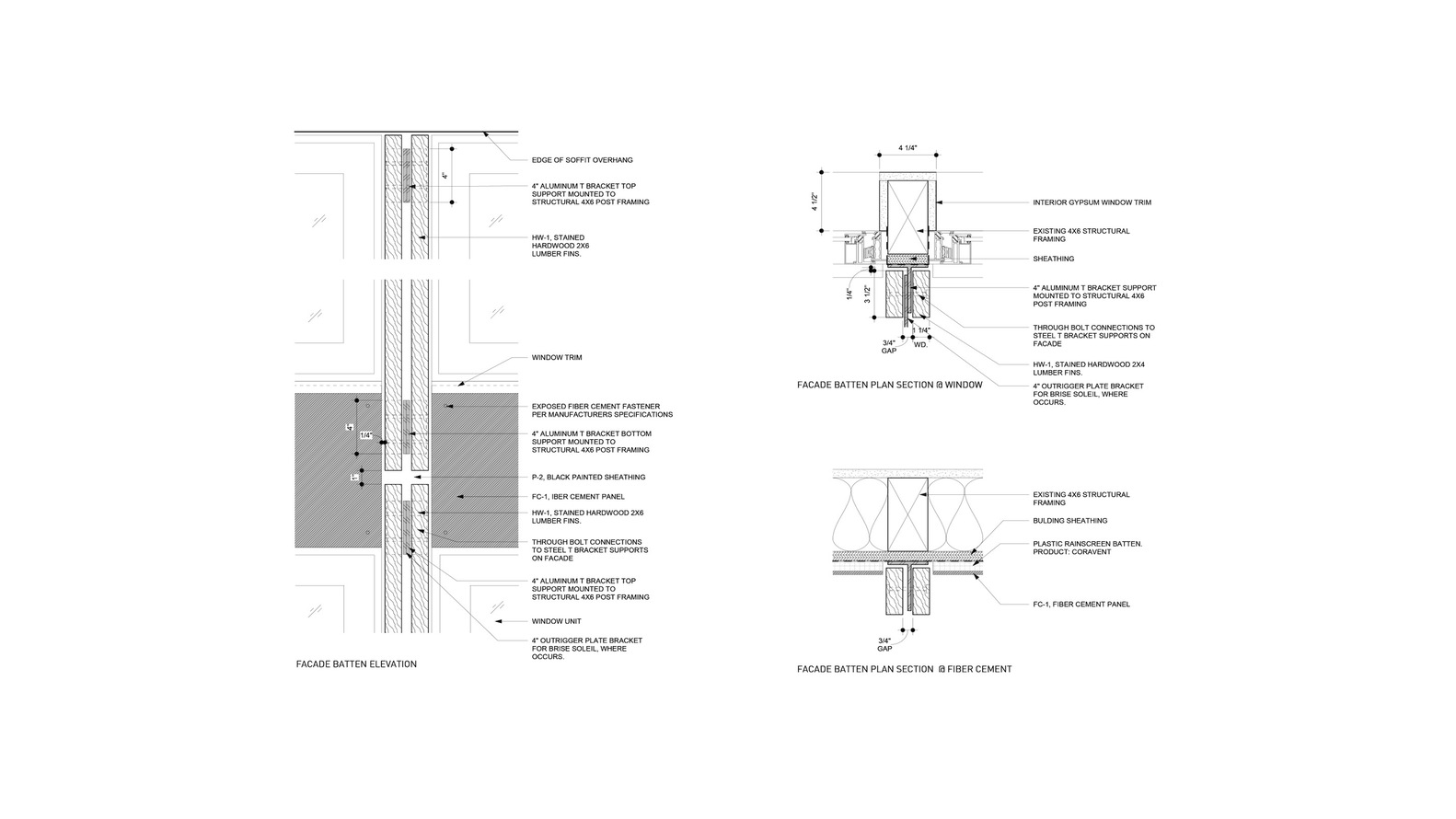
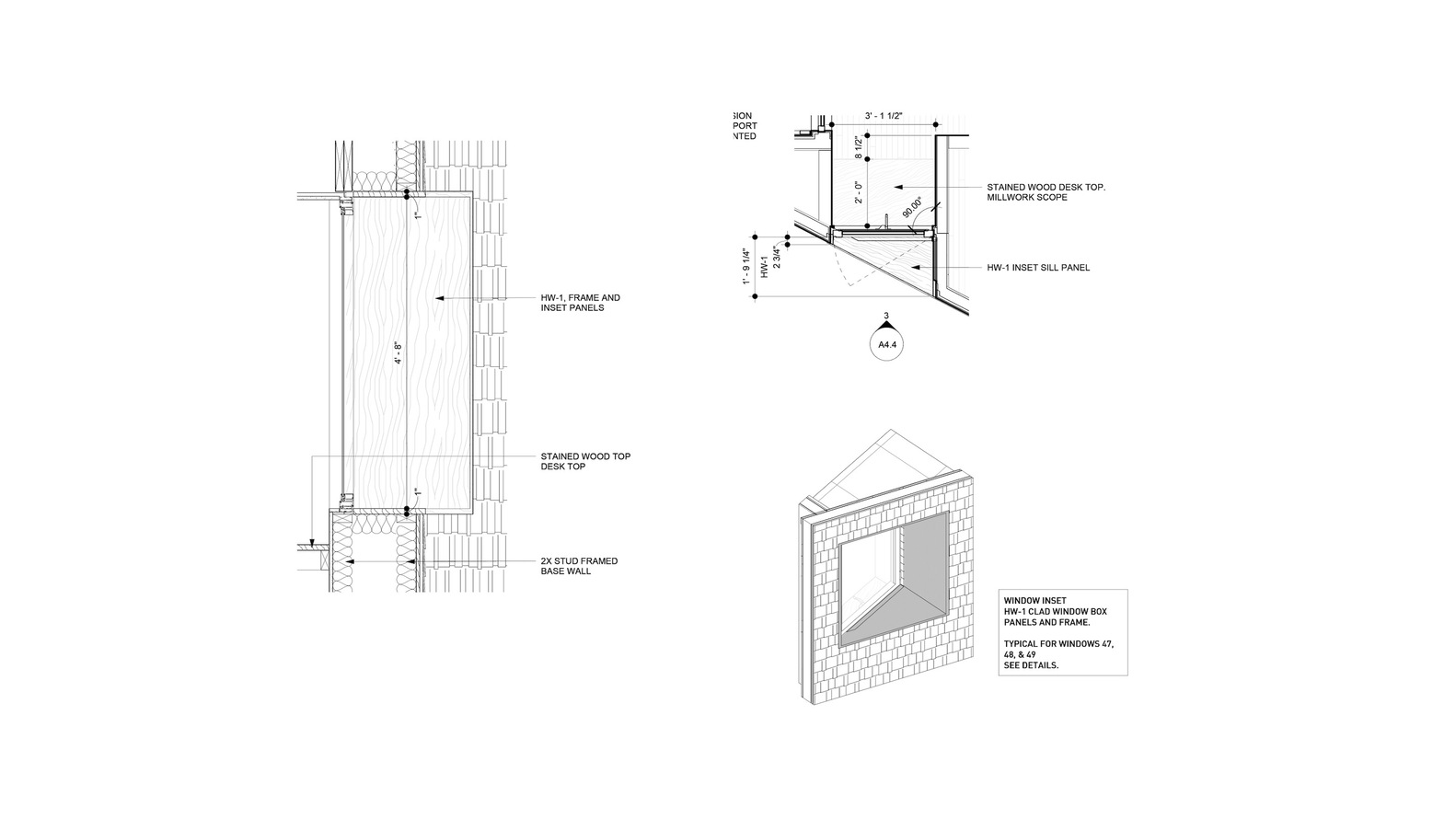
The renovation focused on strengthening this connection to nature, with floor-to-ceiling glass facades and expansive windows framing views of the lake and forest. Paired vertical fins of white oak accentuate the home's structural lines, reflecting the verticality of the surrounding trees. These fins visually blur the boundary between the interior and exterior, allowing the home to harmonize with its environment.


Preserving Mid Century Modern Character with Contemporary Materials
The exterior retains the essence of the mid-century aesthetic through the use of eastern white cedar shingles, which respect the original material palette. This choice pays homage to the home's history while enhancing its durability and visual appeal. Oblique window openings were introduced to punctuate the triangular ends of the house, adding modern definition and creating captivating patterns of light and shadow.



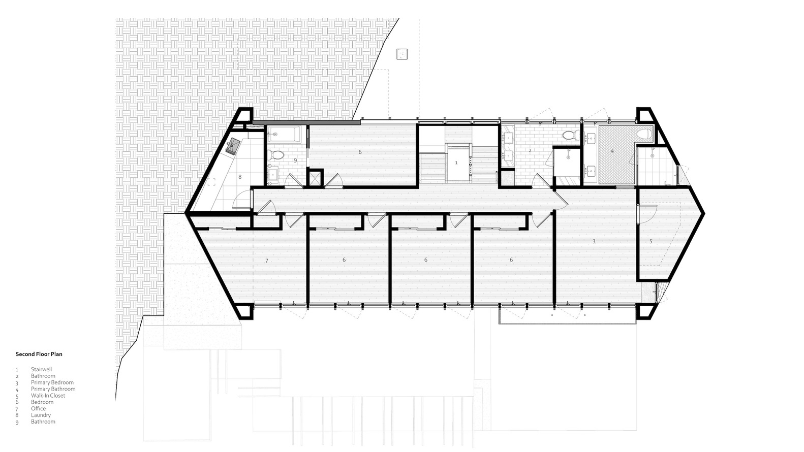
Inside, the renovation stripped away the postmodern, compartmentalized layout, opting instead for an open floor plan that fosters fluidity and natural light. The home's diamond-shaped plan was reinterpreted with simplified circulation lines, creating a sense of spatial clarity while preserving the architectural rhythm of the original structure.



A Modern Hearth Anchoring the Heart of the Home
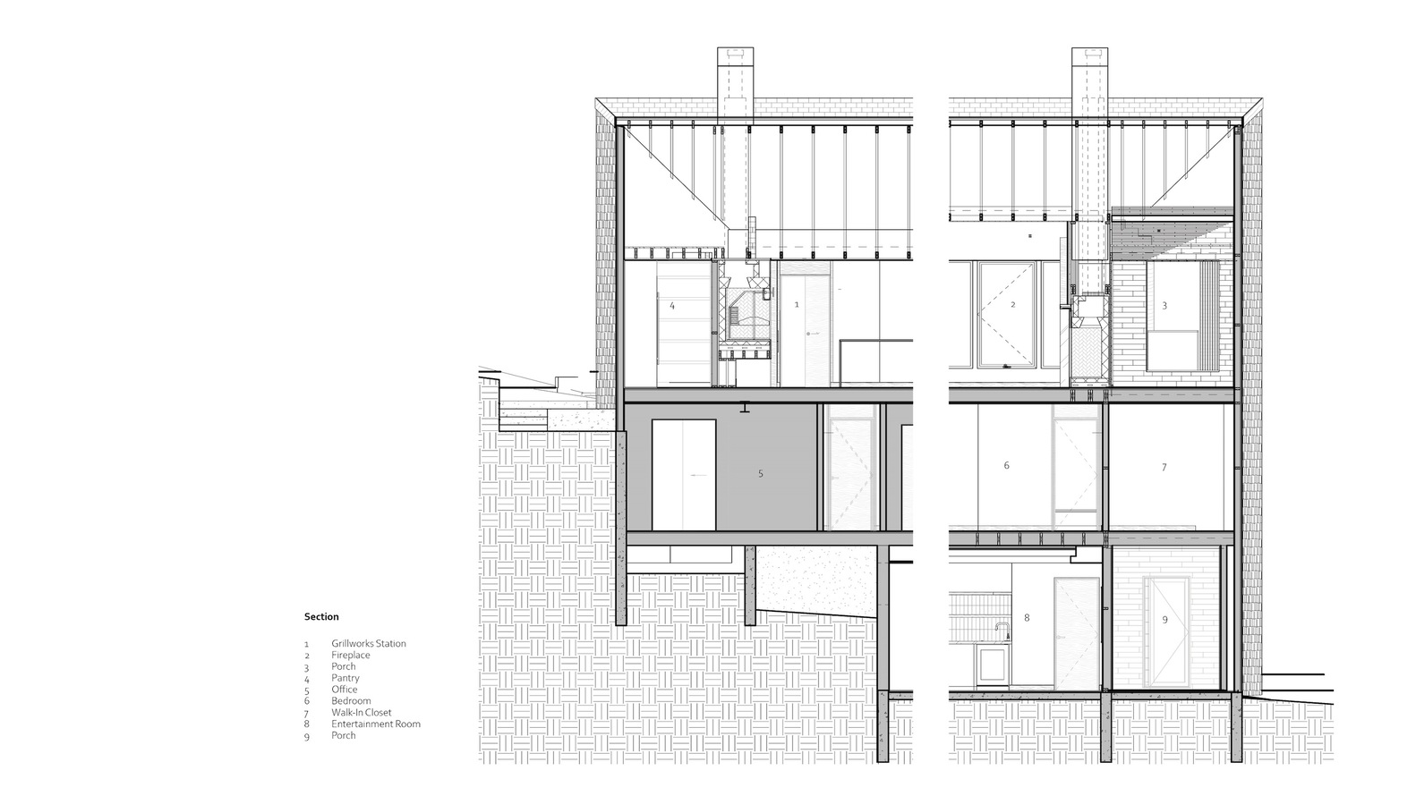
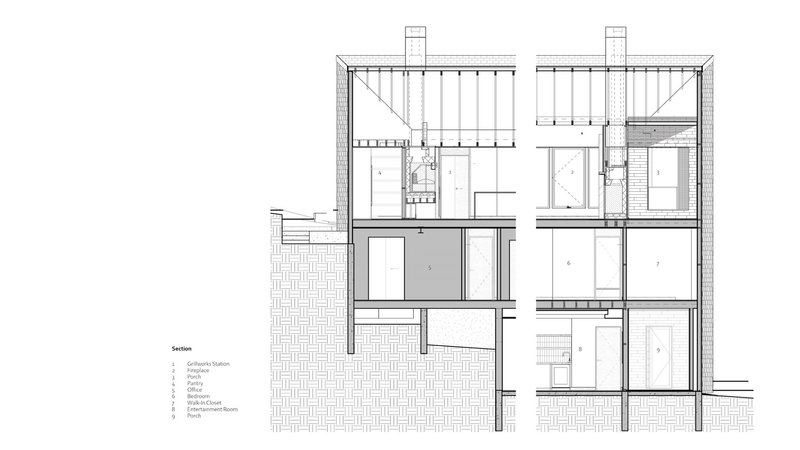
At the heart of the home, two wood-burning fireplaces anchor the open-plan living spaces. One fireplace serves as a functional cooking element, while the other offers warmth and comfort. Clad in handmade emerald-green tiles and framed by custom oak trim, these fireplaces become sculptural features that ground the interiors in both tradition and craftsmanship.



The kitchen, a focal point of the renovation, features a custom-built wood-burning Grillwork station. This heavy masonry unit, positioned on the third floor, is supported by a reinforced steel beam integrated into the floor framing. The grill is enveloped in herringbone-laid artisan tiles, with a solid soapstone base and a ten-foot-long soapstone island. White oak cabinetry completes the ensemble, combining natural textures with functional design.



Elevating Vertical Circulation with Craftsmanship
The renovation addressed the home's vertical circulation with a reimagined three-story staircase. Previously cramped and carpeted, the staircase was transformed into a sculptural element clad in white oak. Paired wood latticework and a continuous railing visually echo the exterior fins, guiding residents from the basement to the upper floors with seamless elegance.

This stairway acts as a unifying architectural gesture, enhancing the sense of verticality while reinforcing the connection between interior spaces. It exemplifies the renovation's emphasis on craftsmanship, material honesty, and visual harmony.

Maximizing Views and Embracing Natural Light
One of the defining achievements of this mid century modern home renovation is the enhancement of sight lines. Large casement windows replaced segmented curtain walls, offering uninterrupted views of the lake and forest. This design intervention amplifies natural light while emphasizing the home's relationship with its landscape.

The renovation embraced transparency and openness, allowing each space to flow into the next. The removal of partitions fostered a sense of expansiveness, transforming the home into a modern retreat immersed in nature.

Integrating Nature-Inspired Materials and Artisan Craftsmanship
Throughout the home, natural materials and earthy tones reinforce the connection to the outdoors. White oak, soapstone, and handmade clay tiles evoke the textures of the forest and lake. The emerald-green tiles of the fireplaces and kitchen reference the lush surroundings, while custom oak detailing adds warmth and authenticity.

The material palette not only enhances the aesthetic appeal but also promotes well-being. The renovation exemplifies how a mid century modern home can be revitalized through the careful selection of materials that echo the natural environment.

Reinterpreting Mid Century Modernism for Contemporary Living
The North Shore Residence renovation by HEID Architects redefines mid century modern home renovation by blending classic design principles with contemporary sensibilities. The project preserves the home's architectural integrity while elevating its functionality, comfort, and visual appeal.

This renovation exemplifies the enduring relevance of mid-century design, proving that with thoughtful adaptation, these iconic homes can meet the demands of modern living. The North Shore Residence stands as a testament to the timelessness of mid century modern architecture, reimagined through the lens of the present.

A Harmonious Fusion of Past and Present
The transformation of the North Shore Residence showcases the potential of mid century modern home renovation to create spaces that honor history while embracing innovation. HEID Architects achieved a delicate balance between preservation and modernization, resulting in a home that celebrates nature, craftsmanship, and architectural continuity.

By enhancing visual connections to the lake and forest, introducing natural materials, and refining spatial organization, the North Shore Residence emerges as a sanctuary where architecture and landscape exist in perfect harmony.


All Photographs are works of Jason Keen, Sally Matak
Popular Articles
Popular articles from the community
Atelier Macri Concept Store Interior Design by CASE-REAL
Atelier Macri store features a "ko" counter, walnut wood details, cork displays, blending retail, gallery, and seamless customer experiences.
Solar Steam: A Climate-Responsive Architecture That Redefines the Monument
A climate-responsive memorial architecture that transforms heat, decay, and time into a living system reflecting humanity’s ecological impact.
Gads Hill Early Learning Center by JGMA: Adaptive Reuse Shaping Community-Focused Educational Architecture
Adaptive reuse transforms fragmented structure into vibrant early learning center with playful façade, natural light, and community-focused sustainable design.
Alton Cliff House: A Harmonious Retreat by f2a Architecture in Lake Country, Canada
Alton Cliff House blends corten steel, prefabrication, and sustainable design, creating a luxurious, energy-efficient retreat perched on Canadian cliffs.
Similar Reads
You might also enjoy these articles
Free Architecture Competitions You Can Enter Right Now
No entry fees, real prizes. Here are the best free architecture competitions open for submissions in 2026.
Top 15 Architecture Competitions to Enter in 2026
From student-friendly idea competitions to prestigious international awards, here are the best architecture competitions open for entries in 2026. Updated regularly.
DIY & Engineering in Computational Design : Enter the BeeGraphy Design Awards
Showcase Your Creativity with Computational Design and Open Source Projects

Innovative Design Solutions: Award-Winning Projects from Recent Architecture Competitions
Exploring award-winning architectural projects shaping the future of design, sustainability, and community.
Explore Architecture Competitions
Discover active competitions in this discipline
The International Standard for Design Portfolios
The Global Benchmark for Architecture Dissertation Awards
The Global Benchmark for Graduation Excellence
Challenge to reimagine the Iron Throne
Comments (0)
Please login or sign up to add comments
No comments yet. Be the first to comment!