Organic Architecture Restaurant Design: Lucida Restaurant and Bar by Shahira Fahmy Architects
Lucida Restaurant and Bar by Shahira Fahmy Architects blends organic design with local materials, creating a gathering space in Cairo.
The Essence of Organic Design
Lucida Restaurant and Bar, designed by Shahira Fahmy Architects, is a stunning example of organic architecture, crafted to provide a gathering place that transcends the typical dining experience. Situated on a rooftop in Cairo, this space embraces both modern and traditional elements to create a unique environment that encourages social interaction and a sense of belonging. Designed with a focus on sustainability and community, Lucida blends the organic with the contemporary, providing a space for dining and performance while offering a retreat from the busy urban environment.





The Architectural Vision: Embracing Form and Function
Shahira Fahmy’s architectural philosophy centers on creating spaces that honor both their environment and the people who inhabit them. The design of Lucida Restaurant and Bar reflects this by incorporating natural materials and organic forms that contrast with the rigid Bauhaus-style framework of the building. Fahmy's intention was to create a place that feels like a sanctuary within the chaos of modern Cairo, a space that provides both shelter and an escape, combining the organic and the manmade into a harmonious whole.






The Organic Structure: A Heart of Nature
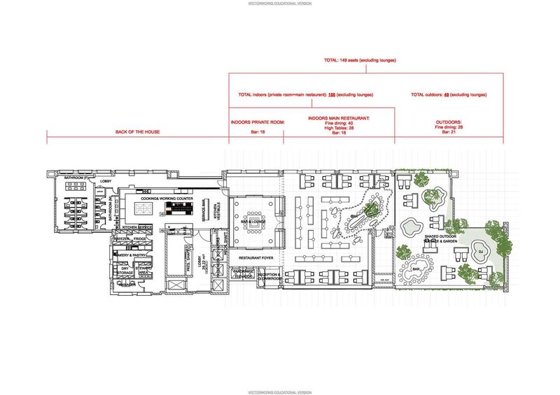
One of the most striking features of the Lucida Restaurant and Bar is its organic, amorphous structure. Made primarily from Jereed ElNakhl (palm leaves) woven together, this structure creates a sense of connection to Egypt’s heritage and crafts. The structure serves as the heart of the space, an undulating, continuous bar that appears to have emerged organically from the ground. The design brings a sense of warmth and protection, reminiscent of a womb or a natural shelter, offering a respite from the outside world.




The structure is intentionally offset from the center of the room, just as the human heart is not located in the center of the body. This subtle design decision draws attention to the importance of the space and its role as the focal point for gatherings. The space surrounding the bar is dynamic, inviting guests to engage with the architecture as they share meals, drinks, and conversations.




Materiality and Craftsmanship: A Tribute to Egypt’s Resources
Shahira Fahmy’s use of local materials is integral to the design of Lucida Restaurant and Bar. The walls are constructed with a mixture of mud, natural pigments, and hay, hand-combed by artisans to create a ridged effect that emphasizes the tactile qualities of the space. This use of traditional materials speaks to the rich cultural history of Egypt, while also reflecting Fahmy’s commitment to sustainability.




The combination of materials such as terracotta, palm straw, brass, and copper gives the space an earthy and organic feel. Each material was chosen not only for its aesthetic appeal but also for its environmental benefits, aligning with Fahmy’s belief that architecture must be resourceful and attuned to its surroundings. The careful crafting of these materials by local artisans adds a layer of authenticity and connection to the place, creating a space that feels both grounded and elevated.


The Spatial Experience: Layered and Intimate
Lucida is designed to be experienced in person, with each layer of the space unfolding to reveal new dimensions. The combination of indoor and outdoor spaces, along with the play of light through the perforated palm straw walls, creates a dynamic environment that changes throughout the day. The space is meant to be explored and felt, inviting visitors to engage with the architecture on a deeper level.



The skylight above the central structure allows natural light to filter in, casting shifting shadows that enhance the organic feel of the space. This interaction between light and material creates an atmosphere that feels alive, constantly changing and evolving as the day progresses. This dynamic interplay of architecture and environment encourages guests to slow down, connect with others, and experience the space in a way that goes beyond the visual.



Sustainability and Context: A Responsible Approach to Design
Fahmy’s approach to sustainability is deeply rooted in the context of Cairo and the surrounding environment. The materials used in Lucida were chosen for their sustainability, as well as their ability to reflect the local culture and heritage. The project reflects Fahmy’s commitment to environmental consciousness, ensuring that the design minimizes waste and energy consumption while maximizing the use of locally sourced materials.



The design of Lucida also reflects Fahmy’s understanding of the urban landscape in Cairo. The building is situated on a rooftop in a fast-developing area, yet the design ensures that the space feels intimate and connected to the surrounding environment. By using natural materials and creating a sense of enclosure, Lucida provides a place of refuge from the urban sprawl below, allowing visitors to connect with both nature and the city.




An Invitation to Gather and Connect
Lucida Restaurant and Bar is a testament to the power of organic architecture and its ability to create spaces that foster human connection. Shahira Fahmy’s thoughtful design integrates local materials, sustainable practices, and an understanding of the urban context to create a space that is both functional and meaningful. Whether hosting an intimate dinner or a large performance, Lucida provides a place for people to gather, share experiences, and create lasting memories. This project exemplifies how architecture can transcend its role as a mere shelter and become a catalyst for social interaction and cultural exchange.



All Photographs are work of Nour El Refai, Farida Bustani
Popular Articles
Popular articles from the community
Atelier Macri Concept Store Interior Design by CASE-REAL
Atelier Macri store features a "ko" counter, walnut wood details, cork displays, blending retail, gallery, and seamless customer experiences.
Inverted Architecture Installation by Studio Link-Arc: Exploring the Intersection of Architecture and Living Organisms
Inverted Architecture Installation by Studio Link-Arc blends mycelium, sustainability, inverted design, ecological cycles, and urban adaptive architecture in Shenzhen.
The Ken Roberts Memorial Delineation Competition (Krob)
As the most senior architectural drawing competition currently in operation anywhere in the world, it draws hundreds of entries each year, awarding the very best submissions in a series of medium-based categories.
Solar Steam: A Climate-Responsive Architecture That Redefines the Monument
A climate-responsive memorial architecture that transforms heat, decay, and time into a living system reflecting humanity’s ecological impact.
Similar Reads
You might also enjoy these articles
The Ken Roberts Memorial Delineation Competition (Krob)
As the most senior architectural drawing competition currently in operation anywhere in the world, it draws hundreds of entries each year, awarding the very best submissions in a series of medium-based categories.
Waterfront Redevelopment and Urban Revitalization in Mumbai: Forging a New Dawn for Darukhana
A transformative waterfront redevelopment project reimagining Darukhana’s shipbreaking heritage into an inclusive urban future.
OUT-OF-MAP: A Call for Postcards on Feminist Narratives of Public Space
Rhizoma Design and Research Lab invites artists, designers, architects, researchers, and students to reflect on how feminist perspectives can reshape public space. Selected works will be exhibited in Barcelona, October 2026. Submissions open until 15 April 2026.
Documentation Work on Buddhist Wooden Temple
Architectural syncretism and cultural hybridity: A comparative study of the Buddhist temples in Chattogram Hill tracks
Explore Architecture Competitions
Discover active competitions in this discipline
The International Standard for Design Portfolios
The Global Benchmark for Architecture Dissertation Awards
The Global Benchmark for Graduation Excellence
Challenge to reimagine the Iron Throne
Comments (0)
Please login or sign up to add comments
No comments yet. Be the first to comment!