OZBE Café by KKOL Studio: A Harmonious Blend of Concrete and Nature
OZBE Café by KKOL Studio blends raw concrete with warm wood and greenery, creating a modern, multi-functional space for community and relaxation.
A New Vision for Café Interiors in South Korea
OZBE Café, designed by KKOL Studio, redefines café culture with a multi-functional space spanning 495 m² across four floors. Located in South Korea, this innovative café merges an industrial aesthetic with natural elements, creating an inviting yet contemporary atmosphere.


A Café Designed for Experience
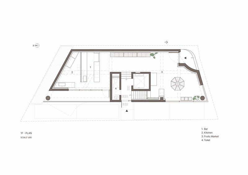
The café is structured with a clear functional division:
- First Floor: A vibrant fruit market, where premium fruits are freshly prepared for customers.
- Second Floor: A dedicated office space for operations and management.
- Third & Fourth Floors: Cozy lounge areas, offering a relaxing ambiance for guests to enjoy fresh juices and plated fruit creations.
This unique layout enhances both customer experience and operational efficiency, setting OZBE apart from conventional café designs.

Juxtaposing Industrial Elements with Organic Warmth
From the project's inception, the design team focused on harmonizing raw concrete surfaces with the café's core theme—fresh fruit. While concrete symbolizes an urban, industrial essence, the vibrant colors and organic forms of fruit introduce a sense of freshness and vitality.


The Inspiration: Flowers Blooming Through Concrete
The primary design inspiration stemmed from the imagery of flowers blossoming through cracks in concrete—a powerful metaphor that guided the material and spatial choices. This concept shaped the interior's aesthetic, emphasizing the interplay of:
- Exposed concrete: Retained to preserve the building’s raw character.
- Maple hardwood: Used extensively to introduce warmth and natural contrast.
- Lush greenery: Strategically placed to enhance the organic feel and complement the café’s core theme.


Interior Design: A Balance of Form and Function
To create an inclusive and engaging space, KKOL Studio incorporated a diverse range of furniture and seating solutions, catering to different age groups. Given the expected demographic of middle-aged customers and families, the design integrates:
- Curved benches with wooden slats, offering ergonomic and aesthetic appeal.
- Custom-designed large-scale furniture, making the space interactive and welcoming for children.
- Lounge seating and varied table heights, ensuring comfort and accessibility for all guests.


Material Palette and Spatial Flow
By maintaining a seamless material transition across all floors, the design fosters a cohesive atmosphere. Plants of varying sizes are scattered throughout the space, reinforcing the connection between nature and the built environment. The presence of natural light further enhances the café’s inviting ambiance, highlighting the interplay between texture, color, and materiality.

Redefining Café Culture with Thoughtful Design
OZBE Café is more than just a coffee shop—it’s an immersive experience where design, nature, and function converge. Through a delicate balance of industrial and organic elements, KKOL Studio has crafted a space that embodies vitality, warmth, and modern sophistication.
All Photographs are works of Donggyu Kim
Popular Articles
Popular articles from the community
Split House: A Compact Urban Home Blending Privacy, Light, and Flexible Living in Japan
Compact Japanese home featuring DOMA space, flexible café potential, passive lighting, privacy zoning, and sustainable urban living design.
The Ken Roberts Memorial Delineation Competition (Krob)
As the most senior architectural drawing competition currently in operation anywhere in the world, it draws hundreds of entries each year, awarding the very best submissions in a series of medium-based categories.
Alton Cliff House: A Harmonious Retreat by f2a Architecture in Lake Country, Canada
Alton Cliff House blends corten steel, prefabrication, and sustainable design, creating a luxurious, energy-efficient retreat perched on Canadian cliffs.
Inverted Architecture Installation by Studio Link-Arc: Exploring the Intersection of Architecture and Living Organisms
Inverted Architecture Installation by Studio Link-Arc blends mycelium, sustainability, inverted design, ecological cycles, and urban adaptive architecture in Shenzhen.
Similar Reads
You might also enjoy these articles
The Ken Roberts Memorial Delineation Competition (Krob)
As the most senior architectural drawing competition currently in operation anywhere in the world, it draws hundreds of entries each year, awarding the very best submissions in a series of medium-based categories.
Waterfront Redevelopment and Urban Revitalization in Mumbai: Forging a New Dawn for Darukhana
A transformative waterfront redevelopment project reimagining Darukhana’s shipbreaking heritage into an inclusive urban future.
OUT-OF-MAP: A Call for Postcards on Feminist Narratives of Public Space
Rhizoma Design and Research Lab invites artists, designers, architects, researchers, and students to reflect on how feminist perspectives can reshape public space. Selected works will be exhibited in Barcelona, October 2026. Submissions open until 15 April 2026.
Documentation Work on Buddhist Wooden Temple
Architectural syncretism and cultural hybridity: A comparative study of the Buddhist temples in Chattogram Hill tracks
Explore Architecture Competitions
Discover active competitions in this discipline
The International Standard for Design Portfolios
The Global Benchmark for Architecture Dissertation Awards
The Global Benchmark for Graduation Excellence
Challenge to reimagine the Iron Throne
Comments (0)
Please login or sign up to add comments
No comments yet. Be the first to comment!