Pré de l’Enclos 2 Housing Rehabilitation by SOL Architecture & Urbanisme – A Model for Sustainable Housing Renewal in France
A transformative housing rehabilitation creating energy-efficient winter gardens, enhancing resident comfort, identity, and sustainability through participatory design in Villiers-le-Bel.
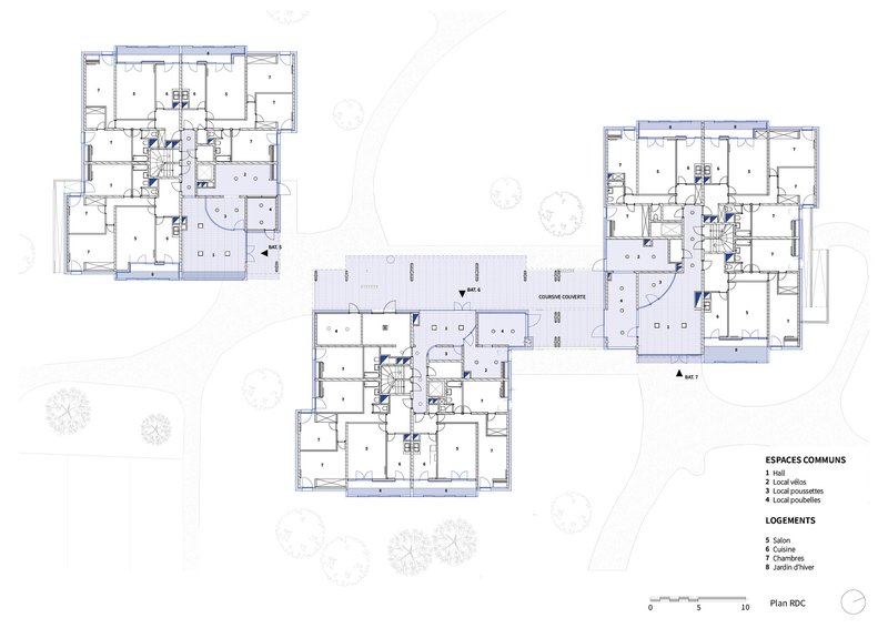
The Pré de l’Enclos 2 Housing Rehabilitation by SOL Architecture & Urbanisme stands as a groundbreaking example of how France is addressing the dual challenge of the housing crisis and the energy transition. Located in Villiers-le-Bel, this ambitious 7,500 m² project transforms a deteriorating 1970s condominium into a vibrant, energy-efficient, community-driven residential complex.

A Vision for Sustainable Housing Renewal
As aging housing stock across France demands urgent upgrades, the rehabilitation of Pré de l’Enclos 2 reveals how sustainable architecture, thermal renovation, and social participation can coexist. The project was carried out within the national Plan de Sauvegarde des Copropriétés Dégradées, a program dedicated to regenerating distressed private housing. Instead of merely applying technical fixes, SOL Architecture turned the thermal retrofit into an architectural reinvention.
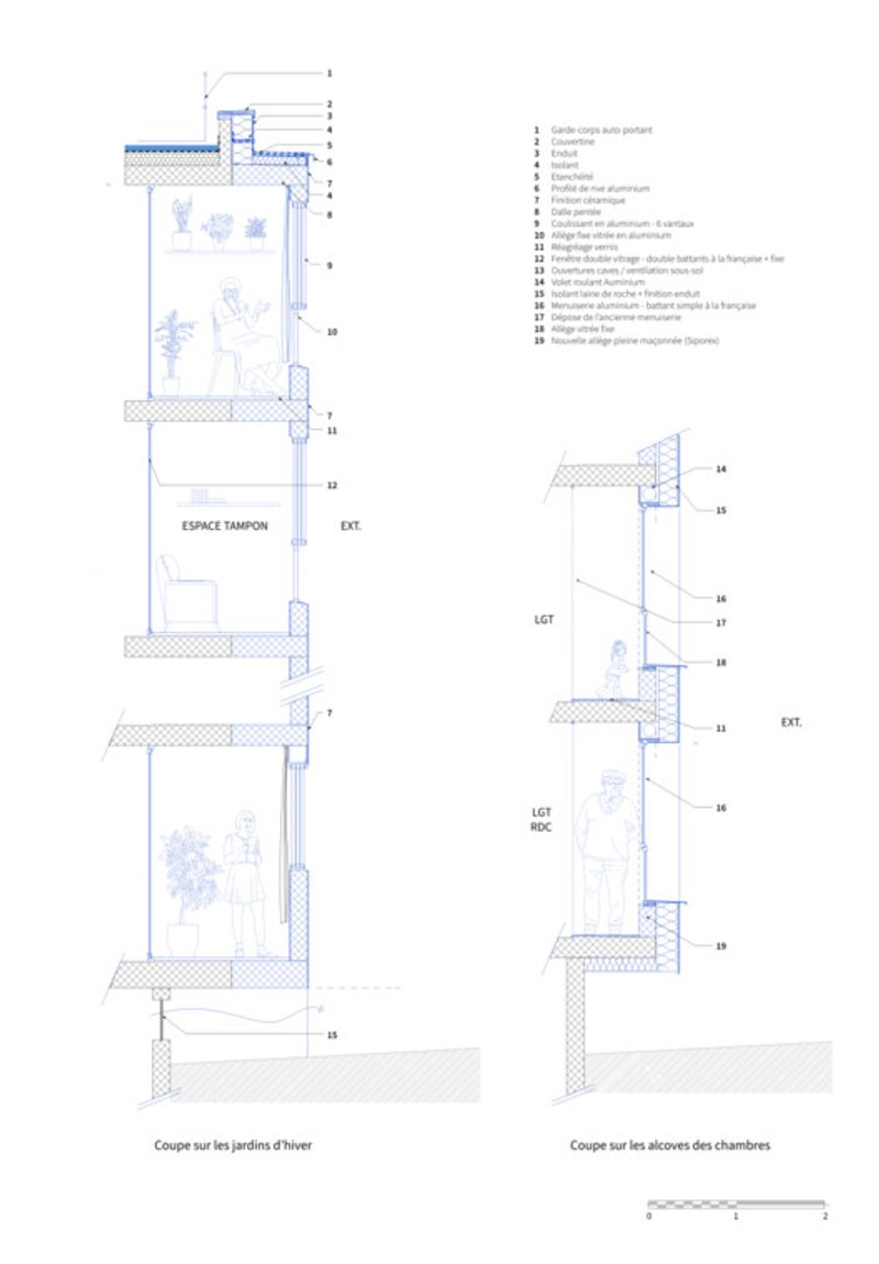
The central concept—The Winter Gardens—transforms each apartment by adding a new habitable layer between the interior and exterior. What was once a simple insulation barrier becomes a bright, flexible space that residents can use year-round. This design innovation achieves a remarkable 56% reduction in energy consumption, reaching an impressive 72 kWh/m²/year, comparable to modern new-build standards.


A Collaborative Model: Rehabilitation Through Participation
One of the most distinctive aspects of the project is its commitment to co-authorship. With 91 co-owners acting as full project participants, the transformation became a shared journey. Residents took part in selecting materials, colors, and spatial strategies—ensuring the final design reflected their collective identity.
Before design decisions were finalized, SOL Architecture conducted door-to-door consultations, ensuring every household had a voice, including those rarely present in formal meetings. The construction process, spanning two and a half years, was carried out in occupied conditions, coordinated by SOLIHA Île-de-France and executed by GTM Bâtiment. Rather than disruption, the process became a continuous dialogue between architects and residents.


Spatial Innovation as an Energy Strategy
Beyond the technical upgrades—new windows, rock-wool external insulation, enhanced ventilation, and floor insulation—the project elevates space as a tool for energy efficiency. Existing small balconies were incorporated as insulated alcoves to eliminate thermal bridges, while the main balconies were extended and enclosed to become Winter Gardens.
These semi-outdoor rooms offer seasonal flexibility:
- Winter: Act as thermal buffers, reducing heating demand
- Summer: Open fully to allow natural ventilation and connection to the outdoors
- Year-round: Provide extra living space that residents personalize with plants, seating, and décor
This approach transforms the building’s envelope from a passive insulating layer into an active, lived interface.


A Unified Aesthetic Through Blue Mosaic Cladding
The new extensions are clad in stunning blue mosaic tiles, chosen collectively by the residents for their tactile character and cultural resonance. The mosaic finish evokes Mediterranean craftsmanship while offering a fresh, contemporary identity. The three buildings now share a unified visual language, reinforcing the spirit of community—“We’re one group, one entity,” as residents affirm.


Renaturing the Courtyard and Reviving Common Spaces
The rehabilitation extends beyond individual homes to reshape the broader site. The once asphalt-covered central courtyard has been renatured, replaced by topsoil, grass, and a gracious walnut tree that now anchors the outdoor gathering area. Roofs were structurally reinforced and transformed into green roofs, contributing to biodiversity, insulation, and stormwater management.


A New Future for Existing Housing
Pré de l’Enclos 2 illustrates a powerful truth: rehabilitation is not the end of architecture—it is its evolution. By merging design excellence, energy performance, and community participation, SOL Architecture & Urbanisme demonstrates how existing buildings can gain new life and new meaning.
This project proves that sustainable renovation, not demolition, is the future of urban housing. Through its Winter Gardens and collaborative approach, Pré de l’Enclos 2 becomes a blueprint for regenerative architecture—one that upgrades performance, improves daily life, and strengthens social bonds.



All the photographs are works of Clément Guillaume
Popular Articles
Popular articles from the community
Fifth NRE Jazz Club – De Bever Architecten: Eindhoven’s Revitalized Cultural Hub
Historic gas factory transformed into Fifth NRE Jazz Club blending modern sustainability, jazz culture, dining, and heritage architecture seamlessly.
Free Architecture Competitions You Can Enter Right Now
No entry fees, real prizes. Here are the best free architecture competitions open for submissions in 2026.
Solar Steam: A Climate-Responsive Architecture That Redefines the Monument
A climate-responsive memorial architecture that transforms heat, decay, and time into a living system reflecting humanity’s ecological impact.
Inverted Architecture Installation by Studio Link-Arc: Exploring the Intersection of Architecture and Living Organisms
Inverted Architecture Installation by Studio Link-Arc blends mycelium, sustainability, inverted design, ecological cycles, and urban adaptive architecture in Shenzhen.
Similar Reads
You might also enjoy these articles
The Ken Roberts Memorial Delineation Competition (Krob)
As the most senior architectural drawing competition currently in operation anywhere in the world, it draws hundreds of entries each year, awarding the very best submissions in a series of medium-based categories.
Waterfront Redevelopment and Urban Revitalization in Mumbai: Forging a New Dawn for Darukhana
A transformative waterfront redevelopment project reimagining Darukhana’s shipbreaking heritage into an inclusive urban future.
OUT-OF-MAP: A Call for Postcards on Feminist Narratives of Public Space
Rhizoma Design and Research Lab invites artists, designers, architects, researchers, and students to reflect on how feminist perspectives can reshape public space. Selected works will be exhibited in Barcelona, October 2026. Submissions open until 15 April 2026.
Documentation Work on Buddhist Wooden Temple
Architectural syncretism and cultural hybridity: A comparative study of the Buddhist temples in Chattogram Hill tracks
Explore Architecture Competitions
Discover active competitions in this discipline
The International Standard for Design Portfolios
The Global Benchmark for Architecture Dissertation Awards
The Global Benchmark for Graduation Excellence
Challenge to design mud housing for contemporary communities
Comments (0)
Please login or sign up to add comments
No comments yet. Be the first to comment!