Rahyaft Office by NOIR Office: An Innovative Office Architecture Design that Fosters Interaction and Flexibility
An interactive office building in Tehran redefines workspaces through innovative design, collective zones, vertical atriums, and flexible spatial planning.
Reimagining the Traditional Workspace in Tehran
Located in Tehran, Iran, the Rahyaft Central Office by NOIR Office redefines the conventional boundaries of workplace design through an innovative architectural language. Completed in 2024 and spanning 7,500 square meters, this office building merges architectural experimentation with programmatic fluidity, transforming how occupants engage with their environment. At the heart of the concept is the idea of challenging typical office typologies, proposing a more dynamic, interactive, and human-centered space for work, collaboration, and leisure.




Stacked Massing and Responsive Volume Shifts
The design originates from a simple mass occupying half of the site footprint, shaped into three stacked rectangular volumes that rise up to three stories. These volumes are strategically shifted along the north-south axis to create cascading terraces and semi-open spaces. The resulting design moves away from a monolithic block and instead produces a tiered configuration that introduces visual permeability and spatial openness. These terraces function as outdoor rooms, collective zones, and breathing spaces that blur the line between work and relaxation.





A Vertical Void That Connects and Activates
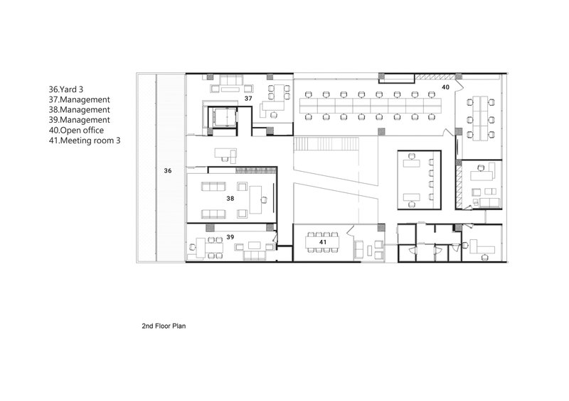
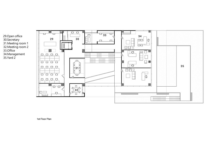
Carved through the core of the stacked forms is a dramatic vertical void, which becomes a central atrium running throughout the height of the building. This void divides the structure into administrative and communal zones while integrating visual connections and transparent circulation routes via bridges and staircases. These elements establish a vertical rhythm and enhance interaction between floors. More than a lightwell, this atrium serves as a spatial heart—inviting users to pause, connect, and observe activity within the building ecosystem.



An Active Ground Plane and Underground Integration
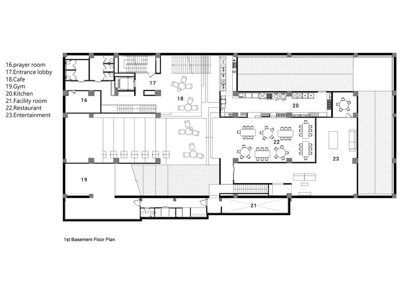
The ground floor extends the project's ethos of engagement through a covered platform envisioned as an “active stage.” This open area, visible from all upper levels, supports public events and informal gatherings. Flanking this zone are amenities such as a cafeteria, a recreational gaming area, and indoor sports facilities, anchoring the building in social activity. Beneath this level lies an amphitheater, woven seamlessly into the circulation loop. This subterranean space supports presentations and performances, enhancing the experiential narrative of the building.





Transparency, Circulation, and Unscripted Encounters
Transparency is a key driver in the architectural expression of Rahyaft Office. Glass partitions, open walkways, and transparent bridges encourage passive visibility and spontaneous encounters. Rather than compartmentalizing programs into isolated silos, NOIR Office allows the functions to breathe into one another—offering users glimpses into adjacent areas as they navigate the space. This openness not only supports team collaboration but also invites moments of cross-disciplinary exchange, reinforcing the building’s role as a collective, rather than individualistic, workplace.







An Architecture of Movement and Engagement
The overall architectural composition of Rahyaft Office is not static—it is choreographed to encourage movement and engagement. From stepped terraces to interactive atrium paths, and from underground amphitheaters to elevated gathering points, the design invites users to experience space as a dynamic journey. It supports both productivity and socialization, proposing an architecture that adapts to human rhythms rather than forcing users into rigid routines.







All Photographs are works of Deed Studio
Popular Articles
Popular articles from the community
A Contemporary Take on Iranian Residential Architecture
A modern interior design in Mashhad that reinterprets brick, light, and spatial flow to create a warm, contemporary residential architecture.
Solar Steam: A Climate-Responsive Architecture That Redefines the Monument
A climate-responsive memorial architecture that transforms heat, decay, and time into a living system reflecting humanity’s ecological impact.
Treehouse Apartment: A Warm Timber Interior Blending Craft, Play, and Contemporary Living
Warm timber apartment with integrated treehouse, combining natural materials, craftsmanship, and playful design to create a flexible, family-oriented living environment.
Inverted Architecture Installation by Studio Link-Arc: Exploring the Intersection of Architecture and Living Organisms
Inverted Architecture Installation by Studio Link-Arc blends mycelium, sustainability, inverted design, ecological cycles, and urban adaptive architecture in Shenzhen.
Similar Reads
You might also enjoy these articles
Top 15 Architecture Competitions to Enter in 2026
From student-friendly idea competitions to prestigious international awards, here are the best architecture competitions open for entries in 2026. Updated regularly.
DIY & Engineering in Computational Design : Enter the BeeGraphy Design Awards
Showcase Your Creativity with Computational Design and Open Source Projects

Innovative Design Solutions: Award-Winning Projects from Recent Architecture Competitions
Exploring award-winning architectural projects shaping the future of design, sustainability, and community.
Explore Architecture Competitions
Discover active competitions in this discipline
The International Standard for Design Portfolios
The Global Benchmark for Architecture Dissertation Awards
The Global Benchmark for Graduation Excellence
Challenge to reimagine the Iron Throne
Comments (0)
Please login or sign up to add comments
No comments yet. Be the first to comment!