Retail Interior Design Trends: Innovating Brand Experience at LADOR Seongsu Store by Indiesalon
This article explores the innovative retail interior design of LADOR Seongsu Store in South Korea, designed by Indiesalon.
In the evolving world of retail, the design of a store is paramount not only in brand representation but also in enhancing customer experience. The newly inaugurated LADOR Seongsu Store in Seongdong-gu, South Korea, designed by the innovative Indiesalon, exemplifies cutting-edge retail interior design trends that merge functionality with aesthetic innovation.


Embracing Brand Identity with Architectural Innovation
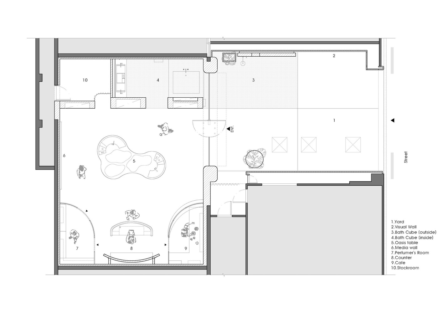
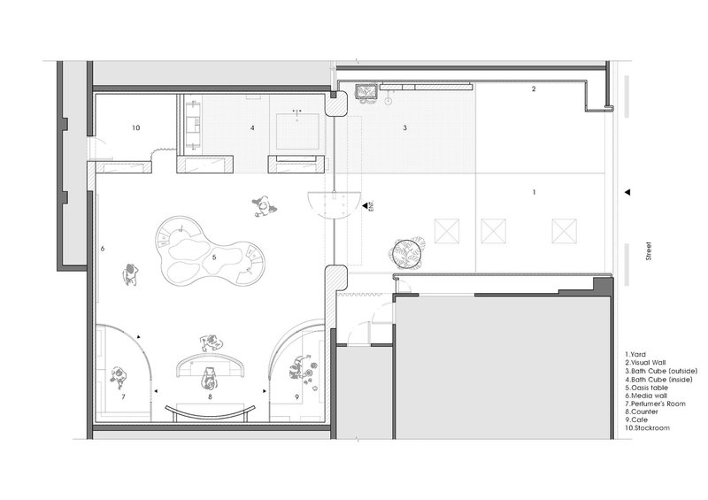
The Concept of the Bath Cube
One of the most striking features of the LADOR Seongsu Store is the incorporation of a bath cube throughout the space. This design element is integral to establishing the brand's identity, creating a distinctive and immersive environment for customers. The bath cube serves as a focal point where the curve of the store's architecture and the central oasis table meet, guiding the flow within the space and extending the flagship store's territoriality.


The Oasis Table: Central to Customer Flow
At the heart of the store's layout is the oasis table, designed to enhance the consumer's journey through the store. This table not only holds a variety of products but also features drawers that can store a multitude of items, reflecting the fluidity and versatility of liquid hair products. The oasis table's flexible curves facilitate natural customer movement, highlighting a key trend in retail interior design where functionality meets fluid design.



Enhancing Client Experience Through Design
Integrating Interior and Exterior Spaces
Indiesalon's approach to the LADOR store's design cleverly integrates interior and exterior elements, enhancing visibility and accessibility from the street. This seamless integration is achieved through the strategic placement of an outdoor shower room, which not only captures the attention of passersby but also invites them into the store, simulating the experience of entering a home.



The Perfumer’s Room and Café Booths
Further into the store, customers encounter the perfumer’s room and café booths, which are symmetrically designed with classic European salon aesthetics. These areas use black window frames and thin metal to evoke a sense of luxury and exclusivity, typical of a high-end mansion. This design decision supports another significant trend in retail interior design: creating thematic, immersive experiences that engage all senses.



The Future of Retail Design
The LADOR Seongsu Store by Indiesalon is a prime example of how modern retail interior design trends can transform a space not just into a store, but into a narrative that customers can walk through and experience. With its innovative use of the bath cube and oasis table, along with a thoughtful integration of interior and exterior design elements, this store sets a new standard for retail environments aiming to offer more than just products but a complete brand experience.



Reflecting on Trends and Innovations
As retail spaces continue to evolve, the integration of brand identity with customer experience through innovative design will remain a cornerstone of successful retail interior design. The LADOR Seongsu Store stands as a testament to how architectural creativity can enhance the sensory experience of shopping, setting trends that are likely to shape the future of retail interiors globally.



All photographs are work of Donggyu Kimbally.
Popular Articles
Popular articles from the community
boq architekti Fits a Gabled Family House onto a Tiny Moravian Hillside Plot with No Room for a Garden
A 115 square meter home in South Moravia trades a garden for a rooftop terrace and a fully glazed facade facing the village below.
BICA Arquitectos Buries a Coastal Home in a Man-Made Dune on Portugal's Tróia Peninsula
A 300-square-meter house of timber, sand mortar, and travertine dissolves into the dune landscape it helped regenerate on the Alentejo coast.
H&P Architects Stack a Vertical River of Brick and Greenery in Hanoi
A perforated terracotta tower in Dong Anh channels water, light, and air through eight staggered levels of domestic life.
Architects Group RAUM Stacks Offset White Volumes into a Compact Office Tower in Busan
A 524-square-meter building on a tight corner lot in Haeundae plays with sunlight rights and shifting floor plates to create generous terraces.
Similar Reads
You might also enjoy these articles
Maya Harvest: A Cacao Resort Village Rooted in Mayan Tradition and Local Craft
Situated within a Tabasco cacao plantation, this shortlisted resort proposal merges vernacular materials with hands-on cultural immersion.
Harmonia: A River-Shaped Community That Grows Over Decades in Boa Vista
Curved pathways and modular grid structures along the Branco River create a phased settlement designed to evolve from 2030 to 2050.
The Architecture of Bathing: A Mughal Hammam Reimagined Across the Yamuna
Charlotte May's honorable mention entry for The Black Taj reinterprets Agra's bathing rituals through red sandstone, water, and framed views of the Taj Mah
Om-1: A Wall-Hung System That Moves Your Workspace Off the Desk
Modular plywood boards, magnetic pegs, and utility elements migrate clutter from the horizontal surface to the vertical plane.
Explore Commercial Buildings Competitions
Discover active competitions in this discipline
The International Standard for Design Portfolios
The Global Benchmark for Architecture Dissertation Awards
The Global Benchmark for Graduation Excellence
Challenge to reimagine the Iron Throne
Comments (0)
Please login or sign up to add comments
No comments yet. Be the first to comment!