Revitalizing Renens: FRES Architectes Unveils Amy, a Transformative Mixed-Use Building
Revitalizing Renens: FRES Architectes Unveils Amy, a Transformative Mixed-Use Building

Renens, a bustling city in French-speaking Switzerland, is undergoing a remarkable transformation, propelled by the development of the Renens train station. As part of the visionary Quai Ouest project by SBB Real Estate, two striking mixed-use buildings are set to redefine the urban landscape, harmoniously blending with the existing downtown area and contributing to the vibrant station pole.

The architectural prowess of the Quai Ouest project lies in its meticulous design that seamlessly integrates with both the present and future of this evolving urban hub. The new buildings feature a distinctive volumetric composition, characterized by horizontal strata punctuated by recesses that gradually ascend to the penthouse level. This thoughtful division not only mitigates the substantial size of the structures but also establishes a harmonious scale relationship with the neighbouring buildings, including the existing passenger building, the station square edifices, and the railway infrastructure.

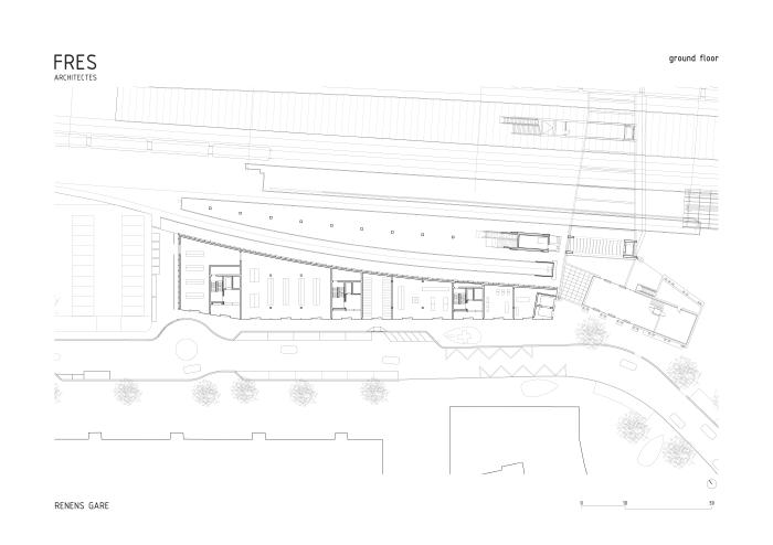
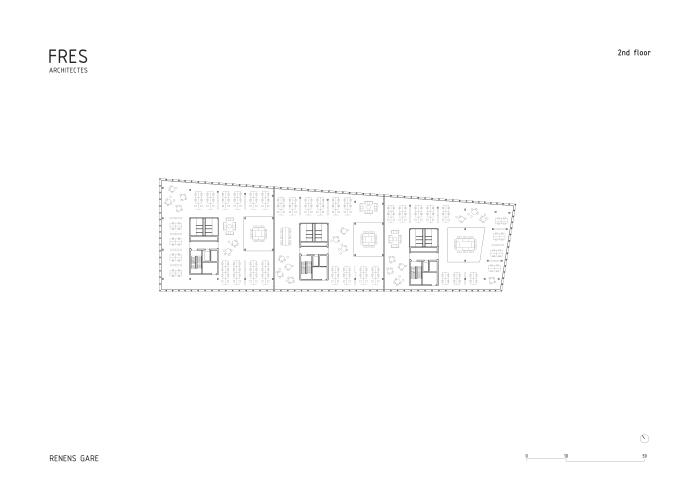
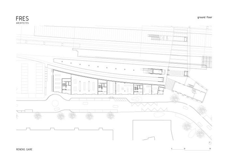
With a keen focus on functionality, the programmatic elements within the mixed-use buildings are strategically organized in horizontal layers. The ground floor hosts a range of shops, strategically positioned to cater to the bustling pedestrian flows around the station. Moving upward, the first and second levels are dedicated to office spaces, while the uppermost part of the buildings accommodates residential units, offering breathtaking views and ample natural light.

The residential experience within the Quai Ouest buildings is carefully curated to foster a sense of community and well-being. Access to the dwellings is facilitated through a spacious atrium illuminated by zenithal lighting, serving as a social nexus for the residents. The journey to one's home becomes a delightful spatial stroll, seamlessly connecting the building's entrance hall with inviting communal spaces designed for interactions and shared experiences.

Diversity takes center stage in the dwelling configurations, providing an array of options for tenants. The elevated position of the building, coupled with its prime location, ensures unobstructed panoramic views of the urban landscape, the serene lake, the majestic alpine panorama, and the bustling railway domain, creating an extraordinary living environment.

Aesthetically, the building's façades showcase a captivating interplay of vertical concrete slats, serving as a visual filter that defines the building's identity. The size and spacing of these slats vary according to the programmatic functions within. This design approach not only unifies the building's appearance but also offers a dynamic perception as one views it from passing trains, transitioning from an introverted form to a transparent structure in a fraction of a second. This interplay adds vibrancy to the landscape and enriches the visual experience.

Quai Ouest's mixed-use buildings stand as testaments to innovative architectural design and urban integration. As Renens embraces its urban transformation, these futuristic structures are poised to shape the city's skyline, while providing a harmonious blend of commerce, workspaces, and residential havens. With their visionary approach and meticulous attention to detail, the Quai Ouest mixed-use buildings are set to redefine the concept of urban living and inspire future developments in the region.















Popular Articles
Popular articles from the community
On the Brooks House by Monsoon Collective – A Contemporary Kerala Home Rooted in Tradition
Kerala home blending tradition and modernity with water-inspired design, brick architecture, courtyard planning, and sustainable rainwater harvesting strategies.
Atelier Macri Concept Store Interior Design by CASE-REAL
Atelier Macri store features a "ko" counter, walnut wood details, cork displays, blending retail, gallery, and seamless customer experiences.
The Ken Roberts Memorial Delineation Competition (Krob)
As the most senior architectural drawing competition currently in operation anywhere in the world, it draws hundreds of entries each year, awarding the very best submissions in a series of medium-based categories.
Inverted Architecture Installation by Studio Link-Arc: Exploring the Intersection of Architecture and Living Organisms
Inverted Architecture Installation by Studio Link-Arc blends mycelium, sustainability, inverted design, ecological cycles, and urban adaptive architecture in Shenzhen.
Similar Reads
You might also enjoy these articles
Zhuxi Wonderland: Reimagining Traditional Chinese Gardens by Doarchi Architects
Zhuxi Wonderland by Doarchi Architects reinterprets traditional Yangzhou gardens, integrating courtyards, pavilions, and tea houses in modern cultural design.
Doble Soga House: A Contemporary Brick Residence Rooted in Landscape in Quito, Ecuador
Brick house in Quito integrating nature, flexible living spaces, exposed materials, and rooftop terrace, creating warm contemporary architecture for modern family life.
Al Gharra Mosque in Medina Redefining Contemporary Islamic Architecture
Minimalist Medina mosque using concrete, light, and landscape to reinterpret Islamic worship spaces through symbolic spiritual transitions and contemporary architecture.
Viczonecode Villa by DDconcept – Tropical Family Living in Ho Chi Minh City
Tropical family villa in Ho Chi Minh City featuring courtyards, skylights, natural ventilation, elevated flooring, and seamless indoor–outdoor living surrounded by greenery.
Explore Architecture Competitions
Discover active competitions in this discipline
The International Standard for Design Portfolios
The Global Benchmark for Architecture Dissertation Awards
The Global Benchmark for Graduation Excellence
Challenge to reimagine the Iron Throne
Comments (0)
Please login or sign up to add comments
No comments yet. Be the first to comment!