Revolutionizing Hospitality: Eco-Friendly Hotel Design at Amaka Hotel by AS Arquitectura and Quesnel Arquitectos
The Amaka Hotel, designed by AS Arquitectura and Quesnel arquitectos, integrates eco-friendly design with local culture in Tulum, Mexico.
Nestled in the lush landscapes of Tulum, Quintana Roo, Amaka Hotel stands as a testament to eco-friendly hotel design. Spearheaded by AS Arquitectura and Quesnel arquitectos, this project showcases how sustainable practices can be seamlessly integrated into luxury accommodations.

Sustainable Design Philosophy
Preserving Natural Beauty
Amaka Hotel's design is deeply rooted in the respect for its surrounding environment. From the outset, the architects prioritized the conservation of existing vegetation, using it not only to enhance the aesthetic appeal of the hotel but also as a natural barrier that underscores privacy and tranquility.


Harnessing Local Resources
The construction of Amaka Hotel emphasizes the use of local materials, including stone, chukum coating, and hardwoods. These materials were chosen for their durability, low maintenance needs, and their ability to blend into the natural palette of Tulum’s tropical jungle.


Architectural Features
Design Integration with Nature
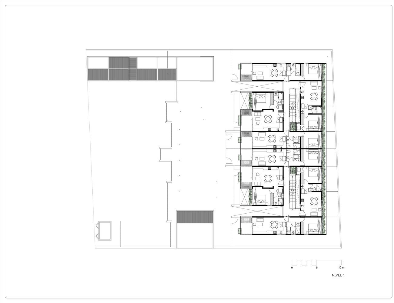
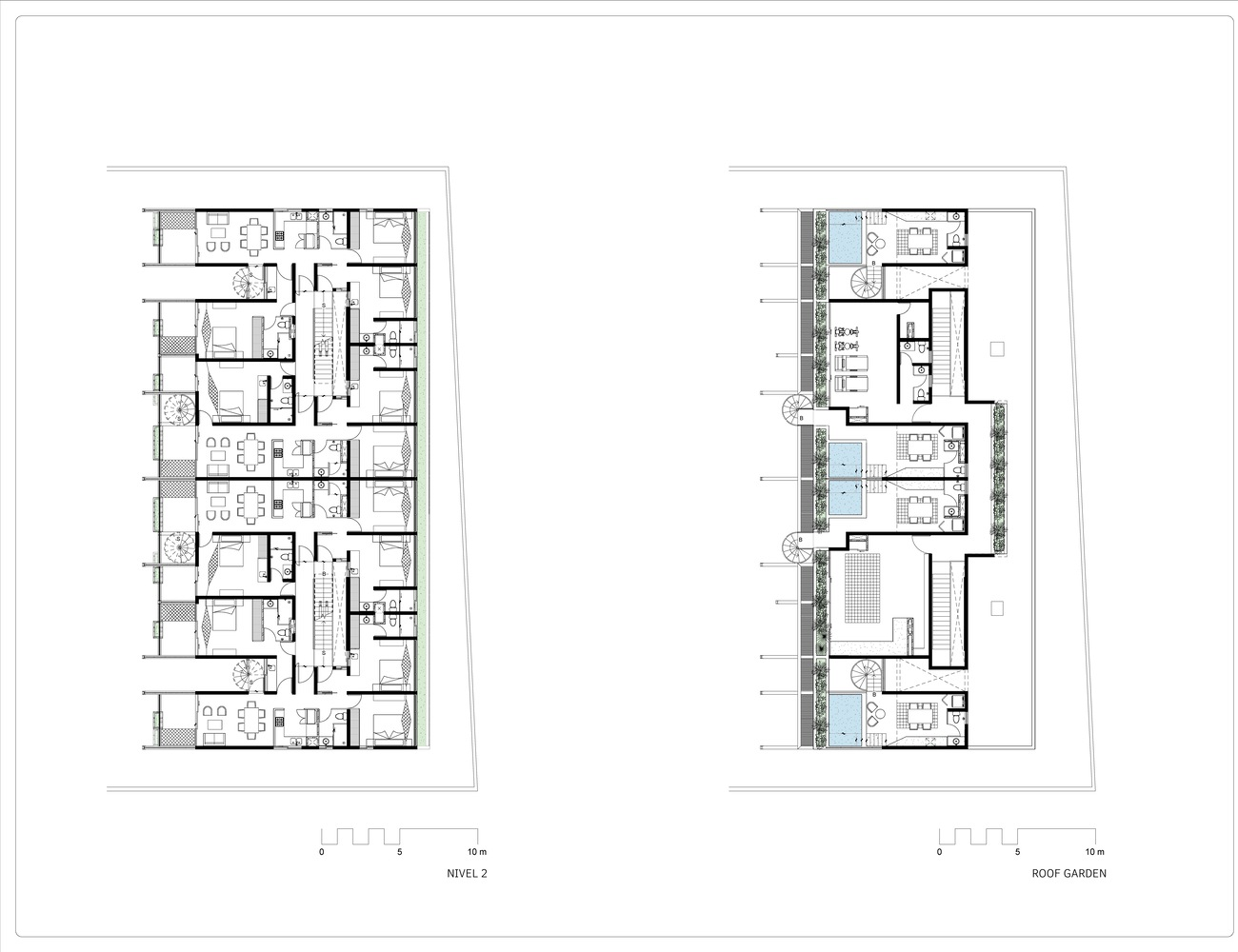
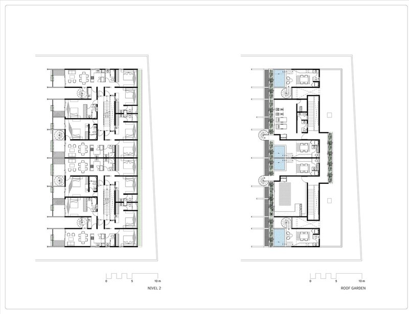
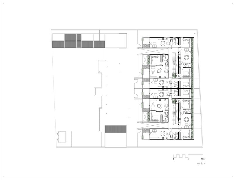
The hotel’s structure is designed to promote natural ventilation and lighting, reducing the dependency on electrical systems. Each condominium within the hotel features private outdoor areas that offer stunning views of the dense jungle, allowing guests to connect with nature without leaving their rooms.

Innovative Use of Space
Amaka Hotel introduces the "lock-off" system in its condominiums, which provides flexibility for guests by creating completely independent living spaces within a single unit. This feature caters to the modern traveler's need for both privacy and the option to socialize in communal areas.


Environmental Impact and Material Use
Local Material Advantages
By utilizing materials endemic to the region, the architects ensured that the hotel not only respects the ecological balance but also possesses characteristics that are inherently suited to the climate and conditions of Tulum. These materials help maintain the building's integrity over time while minimizing its environmental footprint.


Energy Efficiency and Sustainability
Strategic architectural planning allows for maximum energy efficiency. The orientation and design of the building leverage the natural climate for cooling and lighting, significantly reducing the hotel's energy consumption and its impact on the environment.


Community and Cultural Engagement
Supporting Local Economy
The use of local materials and labor has a positive ripple effect on Tulum’s economy, providing jobs and supporting local businesses. This approach fosters a sense of community and ensures that the benefits of tourism are shared widely within the region.


Cultural Reflection in Design
Amaka Hotel mirrors the rich cultural heritage of Tulum through its architectural elements. The integration of traditional techniques and designs not only pays homage to the area's history but also offers guests an authentic experience that reflects the spirit of the locality.

Conclusion
Amaka Hotel by AS Arquitectura and Quesnel arquitectos is a pioneering example of eco-friendly hotel design. This project effectively demonstrates how modern architectural practices can coexist with traditional methods to create innovative, sustainable, and culturally resonant spaces. Amaka Hotel not only provides a luxurious retreat for travelers but also sets a benchmark for future developments in eco-friendly hospitality architecture.

All photographs are work of César Béjar, Leo Espinosa
Popular Articles
Popular articles from the community
20 Most Popular Commercial Architecture Projects of 2025
From sustainable market concepts to heritage factories, the commercial buildings and proposals that drew the most attention on uni.xyz this year.
Filtering Space: A Gradual Spatial Experience
From urban intensity to spatial calm.
Residence BB 214: Quiet Precision in Ludhiana
Minimalist Architecture & Design Studio composes a residence of white volumes, filtered light, and deliberate restraint in Punjab's urban fabric.
Guangzhou's Twin Towers Interiors Move Like Water
DuShe Architectural Design shapes the lobbies of a massive Guangzhou transit hub with undulating ceilings and deep geological materiality.
Similar Reads
You might also enjoy these articles
ATELIER BRÜCKNER Grows a Garden of Knowledge for Uzbekistan's Expo 2025 Pavilion in Osaka
A triangular timber canopy and blue-tiled courtyards translate Uzbek craft traditions into a 1,272-square-meter landscape of learning.
Bood Design Bureau Splits a Gilan Residence in Two to Let the Forest In
Double Side House negotiates privacy and openness through interlocking concrete volumes and planted courtyards in northern Iran's humid Caspian lowlands.
suatudio Splits a Multigenerational Home into Interlocking Concrete Volumes in West Java
Rumah Tahu House in Sumedang, Indonesia adapts to sloping terrain with split levels, timber decks, and deep overhangs for two generations.
MAKER architecten Rewire a 1972 Brutalist Dormitory on the VUB Campus as a Living Lab
A modular renovation strategy in Belgium breathes new life into Willy Van Der Meeren's modernist student housing without erasing its concrete bones.
Explore Architecture Competitions
Discover active competitions in this discipline
The International Standard for Design Portfolios
The Global Benchmark for Architecture Dissertation Awards
The Global Benchmark for Graduation Excellence
Challenge to reimagine the Iron Throne
Comments (0)
Please login or sign up to add comments
No comments yet. Be the first to comment!