Revolutionizing Media Spaces: The Innovative Newsroom Design of NewsHouse 2.0 by balbek bureau
The article delves into NewsHouse 2.0 by balbek bureau, showcasing its innovative newsroom design that blends historical elements with modern media needs.
In the evolving landscape of media and journalism, the design of newsrooms plays a crucial role in facilitating efficient and dynamic news production. NewsHouse 2.0, conceptualized and brought to life by balbek bureau in Kyiv, Ukraine, exemplifies the pinnacle of innovative newsroom design, combining functional needs with architectural ingenuity.


Unveiling NewsHouse 2.0
A Historical Canvas with a Modern Touch
Housed in a building constructed in 1849 on Khreshchatyk street, originally a postal station and later a Ukrainian television studio, NewsHouse 2.0 emerges from the ashes of history. The design team was tasked with transforming two floors into a state-of-the-art newsroom while retaining the imposing 9-meter ceilings and remnants of its storied past.




Addressing the Challenges
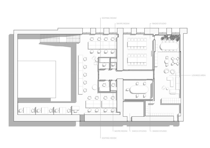
The project presented unique challenges, including accommodating the 24/7 operational needs of around 70 specialists, integrating complex technical requirements for sound insulation and acoustics, and ensuring a design that complements on-camera activities. These hurdles were adeptly navigated through innovative planning and meticulous attention to material selection.



Core Concepts of Design
The Newsroom as a Central Hub
At the heart of NewsHouse 2.0's design is the concept of the newsroom serving as the nucleus of news gathering and dissemination. A key feature is the cube studio that acts as the focal point, around which all other activities revolve, creating an environment where viewers can witness the bustling background scene of news production.




Aesthetic and Functional Synergy
The design is characterized by its concise approach, balancing the "visual noise" created by equipment and personnel. It ensures that the studio, although packed with technology and bustling with activity, remains an island of calm focus amidst the open workspace. This synergy between aesthetic appeal and functional requirement is a hallmark of innovative newsroom design.




Highlighting Interior Features
The Entrance Experience
Upon entering NewsHouse 2.0, visitors are welcomed into a spacious waiting area designed to accommodate castings and shoots, reflecting the multifunctional nature of the space. The interior employs an inversion technique, using light tones within dark enclosures and vice versa, to create a striking visual contrast.


The Studio Cube
A standout element is the studio cube, a "room within a room" that resembles a large, captivating aquarium. Its design focuses on minimalism and neutrality, directing attention to the presenter against a backdrop of active news production. This strategic use of space and color adds depth and interest to the broadcast environment.


Implementing Innovative Solutions
Acoustic and Lighting Considerations
Collaborations with acoustics specialists ensured that every room within NewsHouse 2.0 was optimized for sound control, crucial for a news production environment. Similarly, lighting was meticulously planned to eliminate on-camera flickering, highlighting the importance of technical precision in innovative newsroom design.


The Mezzanine: Expanding Functionality
To accommodate the extensive needs of the Suspilne team, a mezzanine level was introduced, enhancing the space's functionality and introducing a multilevel dynamic to the newsroom. This addition not only provided necessary workspace but also added an architectural interest to the interior design.



Setting a New Standard in Newsroom Design
NewsHouse 2.0 by balbek bureau represents a forward-thinking approach to media space design, setting a new standard for newsrooms worldwide. By addressing the unique challenges of news production with innovative solutions, the project underscores the critical role of design in the functionality and aesthetics of modern media environments.


All photographs are work of Maryan Beresh
Popular Articles
Popular articles from the community
Inverted Architecture Installation by Studio Link-Arc: Exploring the Intersection of Architecture and Living Organisms
Inverted Architecture Installation by Studio Link-Arc blends mycelium, sustainability, inverted design, ecological cycles, and urban adaptive architecture in Shenzhen.
Solar Steam: A Climate-Responsive Architecture That Redefines the Monument
A climate-responsive memorial architecture that transforms heat, decay, and time into a living system reflecting humanity’s ecological impact.
The Ken Roberts Memorial Delineation Competition (Krob)
As the most senior architectural drawing competition currently in operation anywhere in the world, it draws hundreds of entries each year, awarding the very best submissions in a series of medium-based categories.
Fifth NRE Jazz Club – De Bever Architecten: Eindhoven’s Revitalized Cultural Hub
Historic gas factory transformed into Fifth NRE Jazz Club blending modern sustainability, jazz culture, dining, and heritage architecture seamlessly.
Similar Reads
You might also enjoy these articles
Top 15 Architecture Competitions to Enter in 2026
From student-friendly idea competitions to prestigious international awards, here are the best architecture competitions open for entries in 2026. Updated regularly.
DIY & Engineering in Computational Design : Enter the BeeGraphy Design Awards
Showcase Your Creativity with Computational Design and Open Source Projects

Innovative Design Solutions: Award-Winning Projects from Recent Architecture Competitions
Exploring award-winning architectural projects shaping the future of design, sustainability, and community.
Explore Architecture Competitions
Discover active competitions in this discipline
The International Standard for Design Portfolios
The Global Benchmark for Architecture Dissertation Awards
The Global Benchmark for Graduation Excellence
Challenge to reimagine the Iron Throne
Comments (0)
Please login or sign up to add comments
No comments yet. Be the first to comment!