MA Office Wraps an Iranian Residential Tower in Folding Reed Screens and Handmade Brick
A mid-rise housing block in Iran uses locally sourced bamboo, reed, and brick to manage desert light while anchoring itself to the terrain.
Iran's mid-rise residential stock tends toward two extremes: speculative concrete frames skinned in curtain wall, or conservative stone cladding that concedes nothing to climate. The Sahra Residential Building, designed by MA Office, stakes out a third position. Rising from scrubland at the edge of an expanding town, the tower deploys a deep facade system of folding reed shutters, textured brick, and bamboo ceiling panels that respond directly to sun angles, prevailing wind, and the social habits of its residents.
What makes the project genuinely interesting is the hierarchy of passive devices it layers together. Rather than relying on a single gesture, a single material, or a single sustainability metric, MA Office has composed a thick envelope where each component does measurable work: brick provides thermal mass, reed screens filter harsh light while permitting cross-ventilation, and recessed balconies create outdoor living rooms shielded from the street. It is a building that performs, and it looks it.
Rising from the Scrubland


Seen from above, Sahra reads as a compact, beige mass lifting out of low scrub and scattered residential fabric. The aerial views reveal just how isolated the site is, a condition that makes the building's orientation and self-shading strategies all the more critical. With little adjacent structure to buffer wind or block solar gain, the envelope has to do everything itself.
The choice of a warm, sand-toned brick ties the tower chromatically to the arid landscape rather than fighting it. From a distance the building almost disappears into the terrain, which is a rare quality for a structure of this height in a low-rise context.
A Facade That Works in Layers



The street-facing elevation is the most legible demonstration of MA Office's layering strategy. Folding reed shutters, mounted in pairs beside deeply recessed glazed openings, allow residents to calibrate light and privacy on a room-by-room, hour-by-hour basis. When fully closed, the shutters create a continuous woven surface that cuts solar gain dramatically. When folded back, they frame views and admit breeze.
Below and between the shutters, horizontal ribbed panels and climbing vines add further texture. The facade is never flat, never singular. Every elevation photograph reveals a different configuration of open and closed screens, evidence that the system is actually being used rather than posed for a single photograph.
Brick as Structure and Ornament



MA Office treats brick not as wallpaper but as a volumetric material. The upper facade courses are deeply recessed, creating shadow lines that shift throughout the day. Where two brick volumes intersect, a narrow vertical slot cuts through to the sky, turning a structural joint into a light well. Elsewhere, precast concrete blocks with irregular recesses are stacked into screens that recall traditional Iranian mashrabiya without copying it.
The overall effect is tactile and tectonic. You can read the weight of the wall, the depth of the recess, the grain of the brick. In a market where thin-set stone veneer is the norm, this commitment to material mass is both a performance and an aesthetic argument.
Twilight on the Street


At dusk the building reveals its second life. Warm light spills through the reed screens, turning the facade into a lantern of vertical amber bands. The woven texture, which reads as opaque during the day, becomes translucent at night, registering the activity inside without exposing it. It is a simple inversion, but it demonstrates how thoroughly the architects have thought through the facade's behavior across a full diurnal cycle.
The overcast shot looking upward along the facade offers a different reading: the recessed black shutters punch a staccato rhythm into the brick surface, giving the elevation a graphic severity that the warmer twilight view softens.
Living Between Inside and Out



The balconies and terraces are where the building's social logic becomes clear. Sliding glass doors open onto deep outdoor rooms screened by reed panels and lit by woven pendant fixtures. Furniture is light, portable, and natural: wicker chairs, bamboo mats. These are spaces designed for long summer evenings, for tea with neighbors, for sleeping outdoors when the interior holds heat.
The rooftop terrace is the most generous of these thresholds. A woven bamboo ceiling filters direct sun while steel-framed glazing frames long views across the landscape. It functions as a communal living room in the sky, a typology that Iranian residential projects rarely provide but that the climate practically demands.
Stone, Steel, and Circulation


The interior staircase pairs a stone tread with a black steel balustrade against a raw textured brick wall. It is a deliberately restrained palette: mineral, metal, masonry. Afternoon light rakes across the brick at a low angle, revealing every imperfection and joint. The stair is not a leftover service corridor; it is a crafted vertical room.
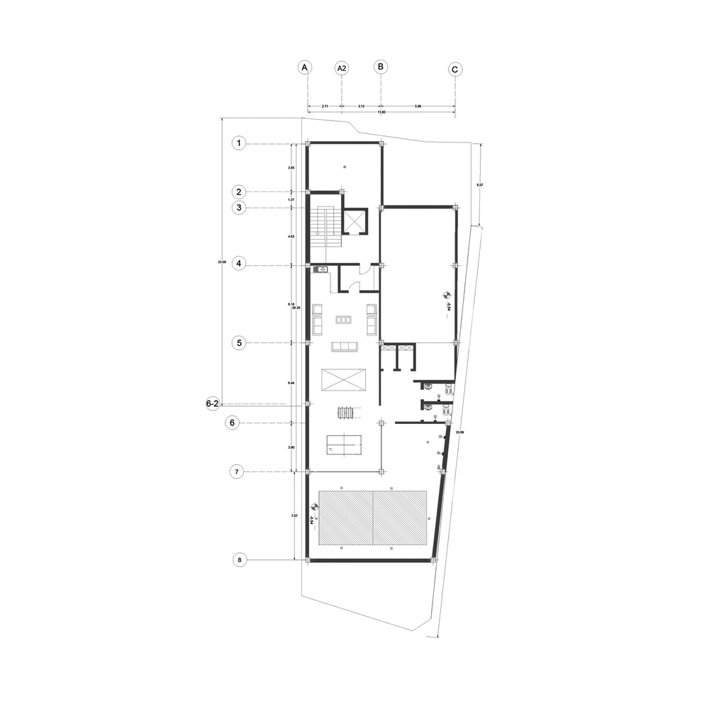
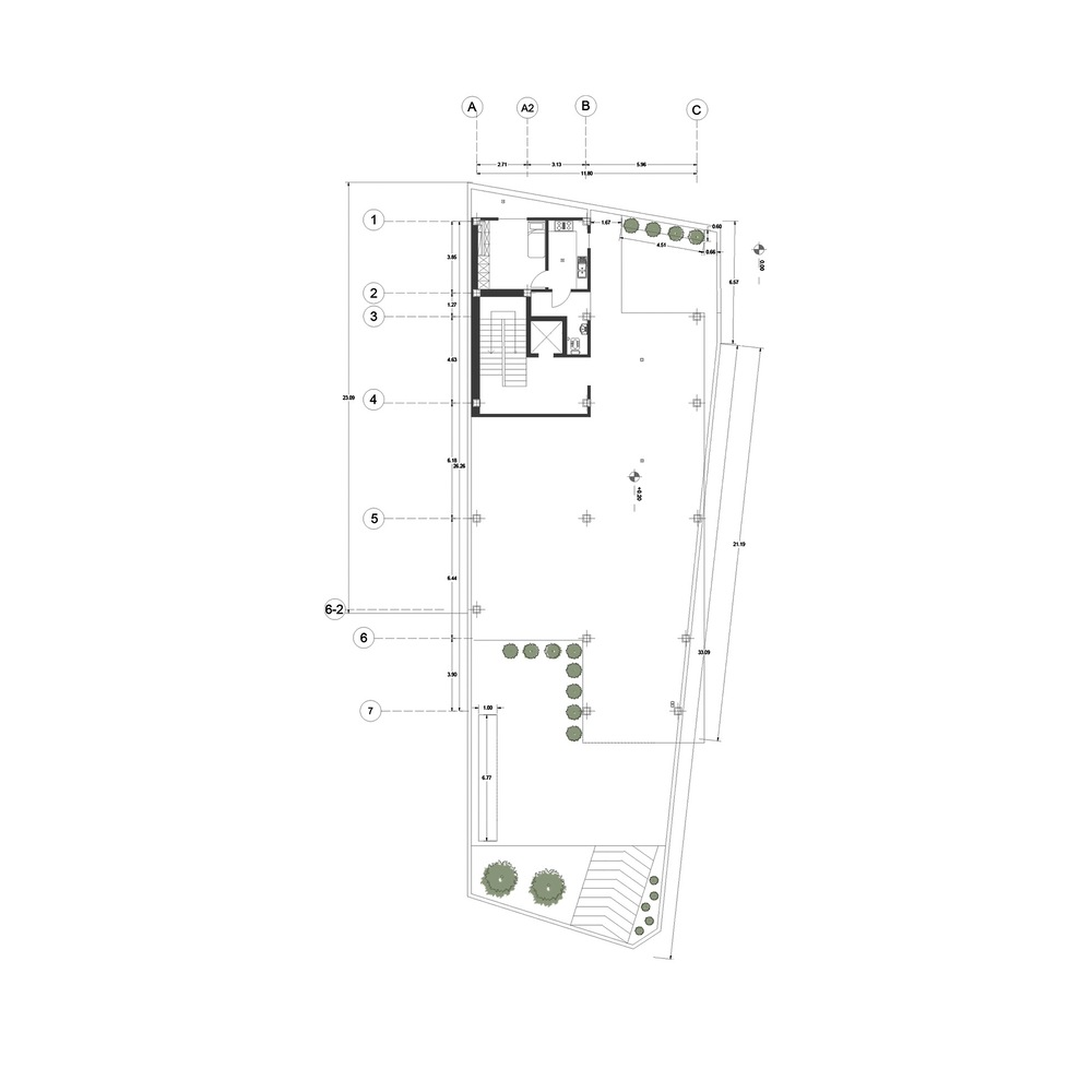
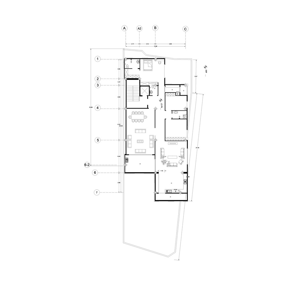
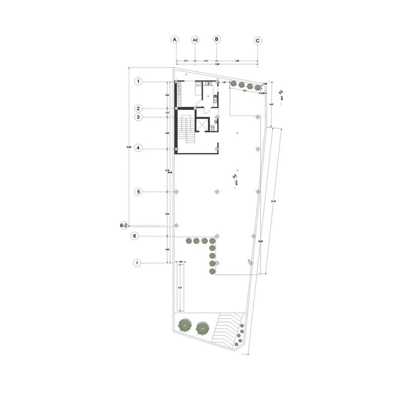
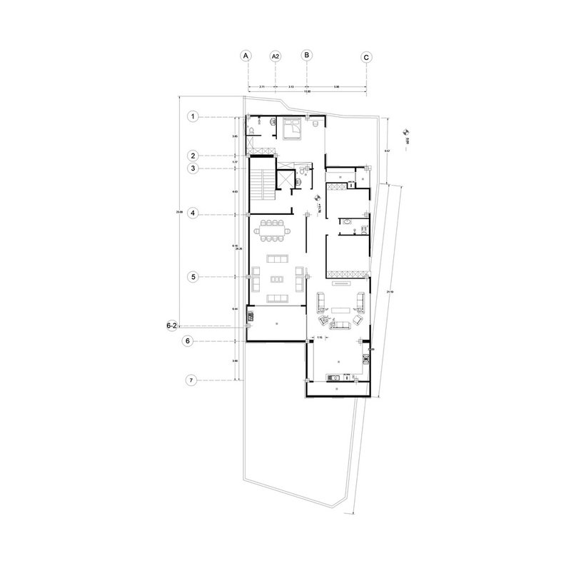
Plans and Drawings









The floor plans show how MA Office negotiates a trapezoidal lot. Living spaces are pushed toward the street facade to capture light and balcony access, while service rooms are banked against the deeper, narrower rear. A rear courtyard on the ground floor introduces planting and ventilation at grade. Upper floors redistribute the program, stacking bedrooms centrally around a compact stair core and placing a dining area on the mezzanine level.
The axonometric and isometric diagrams are particularly instructive. One sequence shows the massing develop in three phases from site outline to fenestrated volume, making legible how the angled lot geometry generates the building's canted walls. Another isolates the progressive addition of balconies and bamboo panels, demonstrating that the facade's richness is achieved through accretion of simple, repeatable elements rather than bespoke fabrication. A section drawing confirms the sloping site condition: stacked balconies step down with the terrain, and the relationship to an adjacent residential volume is carefully managed through setback.
Why This Project Matters
Sahra is significant because it demonstrates that climatic performance and material craft are not competing priorities. Every decision, from the depth of the brick recess to the hinge detail on a reed shutter, serves both an environmental function and a spatial ambition. In a construction economy where speed and cost routinely override everything else, that alignment is itself an argument worth making.
More broadly, the project offers a replicable model. Reed, bamboo, and locally produced brick are not exotic imports; they are available in almost every Iranian province. If MA Office's layering strategy can be adapted to other sites and other budgets, it could begin to shift the default residential facade away from sealed glass and toward something more responsive, more legible, and far more comfortable to live behind.
Sahra Residential Building by MA Office, Iran. Photography by Mahmood Ebrahimi.
About the Studio
Share Your Own Work on uni.xyz
If projects like this are the kind of work you want to make, uni.xyz is a place to publish your own, find collaborators, and enter design competitions.
Popular Articles
Popular articles from the community
Filtering Space: A Gradual Spatial Experience
From urban intensity to spatial calm.
TGK Nirasaki Plant: A Smart Factory Blending Technology, Landscape, and Wellness
Smart factory in Japan blending IoT manufacturing, scenic trail design, natural ventilation, and landscape integration to enhance user experience and sustainability.
Rede Arquitetos Builds an Open-Air School in Fortaleza That Doubles as a Neighborhood Living Room
Educar II SESC-CE folds sports, dance, and community gathering into a courtyard campus wrapped in mesh and tropical color.
Similar Reads
You might also enjoy these articles
Filtering Space: A Gradual Spatial Experience
From urban intensity to spatial calm.
The Ken Roberts Memorial Delineation Competition (Krob)
As the most senior architectural drawing competition currently in operation anywhere in the world, it draws hundreds of entries each year, awarding the very best submissions in a series of medium-based categories.
Waterfront Redevelopment and Urban Revitalization in Mumbai: Forging a New Dawn for Darukhana
A transformative waterfront redevelopment project reimagining Darukhana’s shipbreaking heritage into an inclusive urban future.
OUT-OF-MAP: A Call for Postcards on Feminist Narratives of Public Space
Rhizoma Design and Research Lab invites artists, designers, architects, researchers, and students to reflect on how feminist perspectives can reshape public space. Selected works will be exhibited in Barcelona, October 2026. Submissions open until 15 April 2026.
Explore Architecture Competitions
Discover active competitions in this discipline
The International Standard for Design Portfolios
The Global Benchmark for Architecture Dissertation Awards
The Global Benchmark for Graduation Excellence
Challenge to reimagine the Iron Throne
Comments (0)
Please login or sign up to add comments
No comments yet. Be the first to comment!