Scusa Restaurant Lisbon Interior Design by Spacegram
Scusa Restaurant in Lisbon by Spacegram blends Italian-inspired warmth, vibrant interiors, and sculptural details to create an immersive dining experience.
A Contemporary Italian Dining Experience
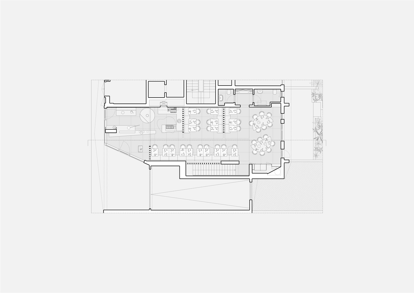
Located in the heart of Lisbon, Scusa Restaurant by Spacegram redefines what Italian dining spaces can look and feel like. Instead of falling into clichés of “traditional Italian,” the restaurant embraces a warm, modern aesthetic that evokes the spirit of Italy—from the Alpine lakes to the olive groves of Puglia—while remaining authentic and approachable. With 250 m² of space designed in 2024, the project focuses on crafting an immersive dining experience where food takes center stage, complemented by architecture and interior design that heighten comfort and connection.


The Concept Behind Spacegram’s Design
Spacegram, known for its expertise in understanding spatial narratives, was tasked with creating a venue that avoided stereotypical Italian motifs yet maintained cultural familiarity. Their approach blends vibrant color palettes of orange and yellow with soft textures and natural materials to foster warmth and intimacy. The restaurant’s interior channels sunlight through large windows, ensuring that Lisbon’s natural light flows into the space, creating an organic rhythm between exterior and interior.





Materiality and Atmosphere
The tables, designed with a subtle “pizza-fold” inspiration, are crafted from materials that blend seamlessly with the wall textures. Soft, strategically placed lighting enhances the warm tones, creating a setting ideal for both family gatherings and intimate dinners. Spacegram’s custom wall lamps act as focal points, bringing refined elegance while maintaining a relaxed dining vibe.





The Sculpted Mirror as a Narrative Element
One of the standout features of Scusa Restaurant is its sculpted mirror, which was carefully molded to reflect light and movement in a unique way. Its fluid form invites diners to perceive the space differently, creating moments of surprise and reflection. The mirror is not just a functional piece but an artistic statement that amplifies the restaurant’s design ethos—familiar yet unexpected.





The Private Room and “Popcorn” Installation
The lower-level private dining area diverges from the main hall’s warm tones, using bold hues and textures to craft a cinematic ambiance. This space houses the “Popcorn” installation, a sculptural centerpiece inspired by the organic growth of pizza dough. The piece has become one of Lisbon’s most photographed design features, symbolizing Spacegram’s commitment to creativity and playfulness.




Dining Experience as Design Philosophy
For Spacegram, the design is not merely about style but about relationships, warmth, and the joy of shared meals. At Scusa Restaurant, the interior architecture complements the culinary journey—whether it’s a solo moment of relaxation over a plate of pasta or a lively gathering of friends. The space is a seamless blend of contemporary Italian flair and modern Lisbon aesthetics, proving that design and dining can coexist as one holistic experience.




Popular Articles
Popular articles from the community
OUJ Rewires a 72-Square-Meter Taipei Apartment for Multigenerational Living After the Pandemic
Inside a 40-year-old public housing block, plywood volumes and translucent screens turn three cramped bedrooms into a flexible family home.
Sam Crawford Architects Anchors a Sports Pavilion in 10,000 Years of Indigenous History
A V-shaped brick and steel pavilion in southwest Sydney translates ancient clay ovens and gathering traditions into civic architecture.
MIDW Casts a Pavilion Roof from the Earth Itself at the 2025 Osaka Expo
On a fragile reclaimed island, excavated soil becomes formwork for a concrete canopy that will eventually disappear into wisteria.
MAVA Design Turns a Column-Riddled Shell into a Serene Hair Extension Salon in Kyiv
Inside a former motorcycle factory campus, a 110 square metre beauty atelier treats structural obstacles as spatial anchors.
Similar Reads
You might also enjoy these articles
FAAB Wraps a Polish Healthcare Complex in Perforated Metal Inspired by the Sea
Waves 4 and 5 of the ECR complex in Sopot transform brownfield land into a healing environment 400 meters from the Baltic coast.
OUJ Rewires a 72-Square-Meter Taipei Apartment for Multigenerational Living After the Pandemic
Inside a 40-year-old public housing block, plywood volumes and translucent screens turn three cramped bedrooms into a flexible family home.
Pedevilla Architects Disguise a Five-Story School as a Tyrolean Farmhouse in Kössen
A dark-clad education center in rural Austria borrows the robust calm of Alpine vernacular to anchor a village's northern edge.
MAVA Design Turns a Column-Riddled Shell into a Serene Hair Extension Salon in Kyiv
Inside a former motorcycle factory campus, a 110 square metre beauty atelier treats structural obstacles as spatial anchors.
Explore Architecture Competitions
Discover active competitions in this discipline
The International Standard for Design Portfolios
The Global Benchmark for Architecture Dissertation Awards
The Global Benchmark for Graduation Excellence
Challenge to reimagine the Iron Throne
Comments (0)
Please login or sign up to add comments
No comments yet. Be the first to comment!