Seorang-Bersama
"Individuals as a Whole" - Transformation of an existing terrace house into a co-living dwelling addressing single workers at site featuring modular spaces for private living, working and play
What was the concept behind the project?
The main concept behind the project is a transformation of typical terrace housing in Malaysia for co-living of single dwellers. The designed project has to
1. Ensure privacy and security
2. Encourages openness in design (common spaces and daylight+ventilation emphasis)
What was the intent behind the organization of elements across various levels
(Architectural, Site, Urban)?
The intent of the project is to produce dwelling for single workers on site.
The site is located in a residential area in my hometown Johor Bahru, a Malaysian city located at the border between Malaysia and Singapore. The city is one that's in its growing phase, with many development projects pouring in throughout the past decade. Nevertheless, the continual development of the city is not without its backlash.
The chosen site is located in one of the city centres that's been experiencing the adverse effect of sprawling and in need of intervention strategies to reverse it.
The site is in an old place that consists of aged buildings of small block low level terrace houses and shop lots. As the place develops, more and more shop lots and shopping centres are brought in.
Commercial street in the vicinity.
(source: google street view)
Ubiquitous terrace housing on site.
(source: google street view)
The development of large shopping malls. .
(source: google street view)
Along with densification of commercial activities, a steep imbalance between commercial and local residents occurs. When the situation is coupled with tremendous reliance on automobiles, traffic flows to the place on a daily basis, resulting in a constant congestion that troubles all site users alike.
To in fact study the experience on the users, we conducted a little investigation on the local user groups to understand the site issue better. The users are broken down into 3 groups, i.e. workers, residents and visitors.
Workers: Most travel to the site to work by automobile, wasting away much time in traffic jams and parking.
Residents: Overcrowded by vehicles at times especially during peak hours
Visitors: Impossible to find parking during weekdays daytime.
Apparently, there are many complex reasons that lead to this urban complex, e.g. sprawling, automobile dependence, decay, etc. However, one of these symptoms that are prominent and actionable in the realm of architecture is the mismatch between residents and commercial activities.
The residents living on site travel to other places to work while the workers have to get stuck in congestion for a long time to get there due to unplanned development. The dwellings in the vicinity are all the same terrace housing that are only designed for family, resulting in single workers who work there to be unable to live at the site.
The grey area highlighted are residential areas, which are all low level terrace housing with the ubiquitous layout template/ similar actual layout.
Image above is an illustration of the typical terrace housing designated for family dwelling. They do not serve well for the single dwelling due to reasons below:
1. Lack of privacy & boundary
2. Limited private rooms
The main purpose of the project is to diversify the housing typologies available in the vicinity and allow for dwellings catered for single dwellers. When looking at the terrace houses existing, we can notice that they have exceedingly ubiquitous spatial design that is for family dwelling.
Which methods of design investigation?
Design investigation on single dwelling and co-living is being researched upon.
Several literatures on single dwellings issue:
1. “Urban lifestyles may be abridged by the following characteristics:
- a general acceleration of life with long working times,
- rushing hours in traffic jams,
- and strictly well-defined weekday routines with lack of time for quietness and to contemplate…”
(source: Urban Lifestyles and Consumption Patterns, DOI: 10.1007/978-3-319-71061-7_54-1)
Conclude: A living context of urban dwellers in which people are consummated in work
2. Emotional loneliness is associated with an increased risk of all-cause mortality in older adults who live alone. Functional status was identified as one potential pathway accounting for the adverse consequences of loneliness. Emotional loneliness that can arise out of the loss or absence of a close emotional attachment figure seems to be the toxic component of loneliness.
(Source: Loneliness, Living Alone, and All-Cause Mortality: The Role of Emotional and Social Loneliness in the Elderly During 19 Years of Follow-Up
O'Súilleabháin, Páraic S. PhD; Gallagher, Stephen PhD; Steptoe, Andrew
doi: 10.1097/PSY.0000000000000710)
3. “Passive design is about taking advantage of natural energy flows to maintain thermal
comfort…….improving health and well-being”
(source: Passive Design, June 2016
DOI: 10.1007/978-3-319-31967-4_8)
4. An investigation carried out to study the preferences of co-living:
A small community (ard 4-10 ppl)
- A diverse group of people (arguable)
- Favoured dwellers: Single woman and childless couple
- Least favoured: children
- Biggest concern: lack of privacy
- Utilities sharing:
- Internet, gardens and workspace
- X groceries, bathroom and bedrooms
(source:https://space10.com/welcome-to-one-shared-house-2030-this-is-how-you-designed-it/)
How was the programme condensed into final?
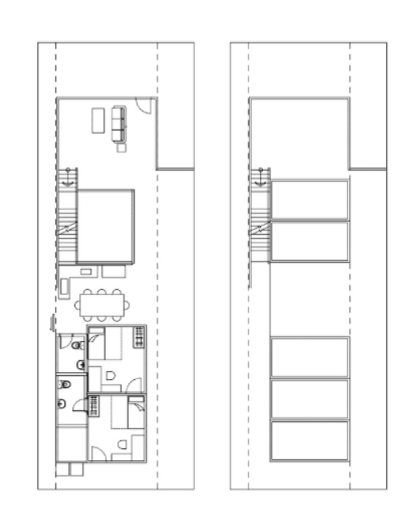
The programme development. At the beginning, the programme installed was set according to precedents of student houses that I am still living in. We install private rooms, a common area, shared kitchen, laundry yard, storage and washrooms.
(insert pics)
From there on, we started to recategorise and rearrange the programmes according to their spatial hierarchy. By referring to the investigation published by Space10, we set up the basic of what can be shared and what ought to be private.
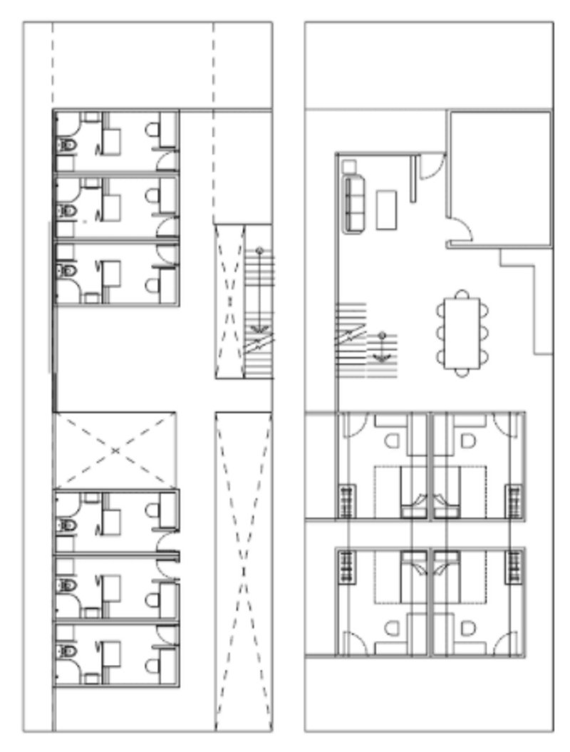
Later, a standard unit of private room is knocked into place. In each private room, we changed the typical bedroom by incorporating a washroom into every single room for privacy of residents.
The common facilities are then installed according to their zoning and convenience of residents.
How many iterations were tried to arrive at the final outcome?
Throughout the design process, there have been many iterations before we achieve the final outcome.
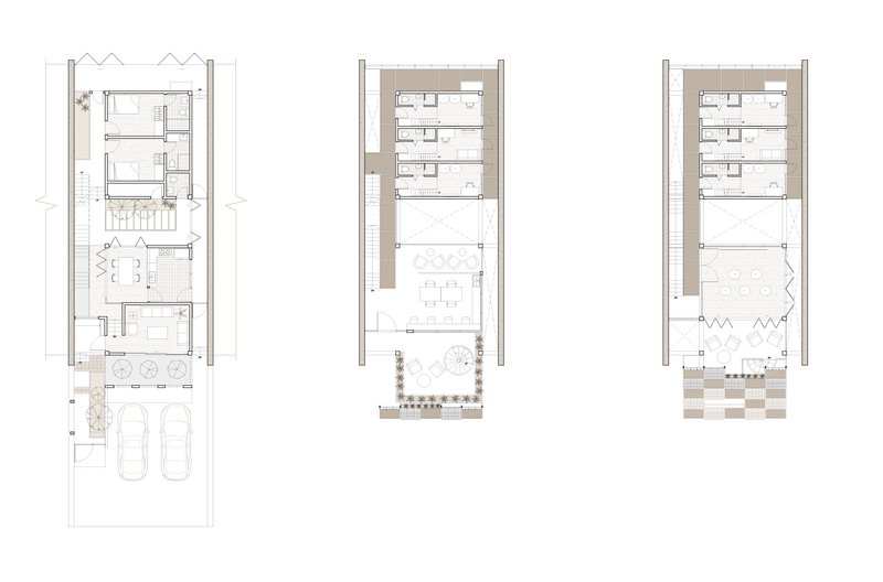
1. Conceptual phase
At conceptual phase, modular rooms are being placed around to find the most suitable configuration that allows all rooms to get daylight and ventilation.
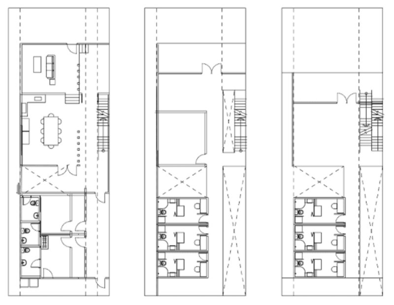
2. Draft 1
In further development, we attempted to carve out the sides of the house to allow for passive design.
3. Draft 2
Reorientation of rooms for a neater layout and clear zoning.
4. Draft 3
The layout that comes close to the final outcome.
5. Final outcome
Refinements to form the final design
What/How were the materials chosen?
Concrete is being used as the main material. The modular layout of the rooms lends itself to the tendency of precast, modular concrete construction. It allows for a more flexible architecture, in which the change of layout can be carried out as the building program changes with its age.
The flexibility is even more important for single dwelling than the traditional family dwellings. This is due to the fact that single-living is greatly more volatile than family-living, which poses the possibility of change in a shorter time-frame.
The other material being applied extensively in the house is wood surfaces, which warms up the tone of the house and makes the dwellers relax.
What is the expansion plan of the project?
There’s no centralised expansion plan of the project. However, the drawings can be documented, from concept to plans to construction detail and made public for developers and house owners.
The project works best in areas experiencing sprawling, requiring densification and diversification of existing housing schemes.
Popular Articles
Popular articles from the community
An Miên Lumière Cafe by xưởng xép, Ho Chi Minh City, Vietnam
An industrial-inspired café where layered steel and warm light create a dynamic, immersive environment shaped by reflection, depth, and perception.
A Contemporary Take on Iranian Residential Architecture
A modern interior design in Mashhad that reinterprets brick, light, and spatial flow to create a warm, contemporary residential architecture.
On the Brooks House by Monsoon Collective – A Contemporary Kerala Home Rooted in Tradition
Kerala home blending tradition and modernity with water-inspired design, brick architecture, courtyard planning, and sustainable rainwater harvesting strategies.
Treehouse Apartment: A Warm Timber Interior Blending Craft, Play, and Contemporary Living
Warm timber apartment with integrated treehouse, combining natural materials, craftsmanship, and playful design to create a flexible, family-oriented living environment.
Similar Reads
You might also enjoy these articles
Converge Hub – A Human-Centered and Sustainable Mobility Hub at the Urban Edge
Its open and permeable design promotes sustainable movement through walkable connections, green axes, and integrated public transport
51st Annual KRob - Ken Roberts Memorial Delineation Competition
Join us in celebrating 51 years in excellence in architectural representation! With $2,400 in prize money awarded across 8 categories, this prompt-less competition is accessible to all!
Explore Architecture Competitions
Discover active competitions in this discipline
The International Standard for Design Portfolios
The Global Benchmark for Architecture Dissertation Awards
The Global Benchmark for Graduation Excellence
Challenge to design luxury tourism on rails


Comments (0)
Please login or sign up to add comments
No comments yet. Be the first to comment!