Soul House: Sustainable Wooden House in Ecuador’s Mindo Valley by Idem
Soul House by Idem is a sustainable wooden house in Ecuador’s Mindo Valley, blending ecological design, symbolism, and artisanal construction.
A Wooden Retreat in the Heart of Mindo Valley
Soul House, designed by Idem, is a 72 m² sustainable wooden house located in the lush Valle de Mindo, Ecuador. Conceived as a refuge deeply rooted in its natural surroundings, the house embodies both symbolic resonance and material logic. Its geometry organizes every element, creating a microcosm where body and atmosphere, matter and mood coexist in harmony.


The project offers not just a home, but a contemplative retreat that captures the shifting skies and surrounding forest, allowing its inhabitants to withdraw from the outside world while maintaining a profound connection with nature.


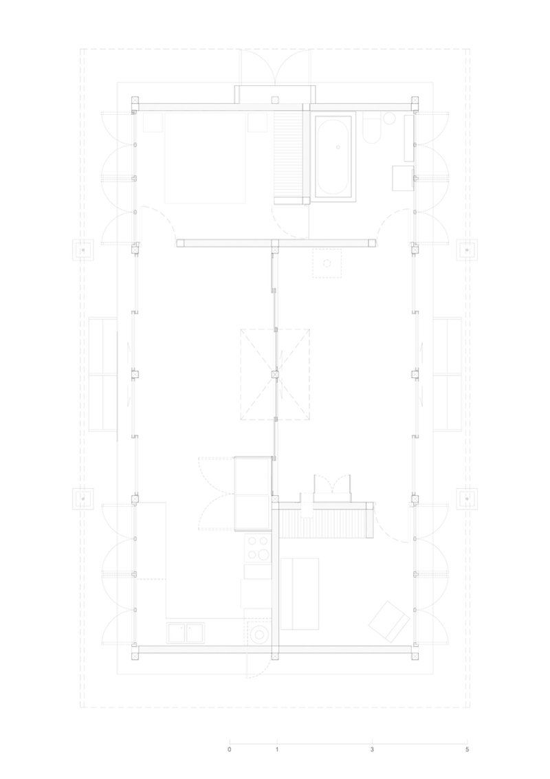
Spatial Concept and Symbolic Design
Soul House is symmetrical on both axes, envisioned as a dual structure where interior and atmosphere interact. At its heart lies a transversal void that opens the home to the landscape, anchored by a luminous skylight that captures light and sky movements. This element becomes a central witness to time, turning the inward-facing home into a contemplative space.


The house also embraces flexibility through a central set of sliding panels that can divide the single expansive interior into two independent environments. This design allows for shared domesticity while also providing private retreats within the same space.


Sustainable Systems and Environmental Integration
Sustainability is integral to Soul House. A rainwater harvesting system irrigates the surrounding gardens, while a wastewater treatment system relies on specific plants and bacteria to return purified water to the earth. These ecological strategies minimize environmental impact and respect the fragile ecosystem of Mindo Valley.

By adopting passive systems and local resources, the project demonstrates how a sustainable wooden house can embody environmental responsibility without sacrificing architectural depth.

Construction and Structural Logic
The construction draws from two traditions: local rudimentary wooden structures and Jean Prouvé’s prefabricated housing. The result is a repetitive post-and-beam framework, resilient against lateral forces and simple to assemble.

At the center of the house stands a singular column beneath the skylight. This element, freed from structural necessity, becomes symbolic—a poetic device that recalls Kazuo Shinohara’s philosophy of architecture as both stability and art. It represents not only support but also presence, a marker of the home’s inner landscape.

Local Craftsmanship and Detail
Soul House was realized through collaboration with local artisans, who meticulously crafted each joint and connection through mockups. Budget constraints, site conditions, and construction contingencies shaped the project into a layered and enriched architectural expression, where precision met improvisation.

This process imbued the house with authenticity, reflecting both the design intent and the craftsmanship of the region.

Redefining Sustainable Wooden Architecture
Soul House exemplifies the potential of sustainable wooden houses in rural Ecuador. By merging ecological strategies, symbolic design, and artisanal construction, Idem created a refuge that resonates with its natural and cultural context.


It is not merely a dwelling but an architectural statement that transforms the act of living into a dialogue with light, structure, and landscape.

Popular Articles
Popular articles from the community
Rede Arquitetos Builds an Open-Air School in Fortaleza That Doubles as a Neighborhood Living Room
Educar II SESC-CE folds sports, dance, and community gathering into a courtyard campus wrapped in mesh and tropical color.
Free Architecture Competitions You Can Enter Right Now
No entry fees, real prizes. Here are the best free architecture competitions open for submissions in 2026.
Magic Box Office Barcelona Innovative Sustainable Workplace Design
Innovative sustainable office design featuring triangular form, ceramic façade, flexible interiors, natural light optimization, and creative workspace for modern work culture.
20 Most Popular Commercial Architecture Projects of 2025
From sustainable market concepts to heritage factories, the commercial buildings and proposals that drew the most attention on uni.xyz this year.
Similar Reads
You might also enjoy these articles
20 Most Popular Commercial Architecture Projects of 2025
From sustainable market concepts to heritage factories, the commercial buildings and proposals that drew the most attention on uni.xyz this year.
Free Architecture Competitions You Can Enter Right Now
No entry fees, real prizes. Here are the best free architecture competitions open for submissions in 2026.
Top 15 Architecture Competitions to Enter in 2026
From student-friendly idea competitions to prestigious international awards, here are the best architecture competitions open for entries in 2026. Updated regularly.
DIY & Engineering in Computational Design : Enter the BeeGraphy Design Awards
Showcase Your Creativity with Computational Design and Open Source Projects
Explore Architecture Competitions
Discover active competitions in this discipline
The International Standard for Design Portfolios
The Global Benchmark for Architecture Dissertation Awards
The Global Benchmark for Graduation Excellence
Challenge to reimagine the Iron Throne
Comments (0)
Please login or sign up to add comments
No comments yet. Be the first to comment!