Student Experience Minervahaven by VURB Architects
A sustainable student housing complex in Amsterdam combining solar façades, inner gardens, rooftop landscapes, and social amenities to create a vibrant urban community.
Situated in Amsterdam’s transforming Minervahaven docklands, Student Experience Minervahaven (SEM) is a large-scale residential complex that redefines student housing as a social, urban, and environmental infrastructure. Designed by VURB Architects and completed in 2021, the 25,051-square-metre project accommodates nearly 600 international students while functioning as a catalyst for neighborhood regeneration.

More than a dormitory, SEM operates as a hybrid urban block—combining housing, collective amenities, public interfaces, and renewable energy systems into a cohesive architectural framework. It responds simultaneously to housing shortages, sustainability targets, and the social needs of a globally mobile student population.

Activating a Changing Waterfront District
Minervahaven, once dominated by port-related industries, is undergoing a gradual transformation into a mixed-use district populated by creative, media, and fashion companies. In this evolving context, SEM plays a pivotal role as an urban activator.


By introducing a large, diverse community of residents and publicly oriented functions, the project injects continuous life into the area. Ground-floor amenities such as cafés, study spaces, commercial units, and bicycle facilities create an interface between students and the wider neighborhood, reinforcing the building’s civic presence.
Rather than isolating students, the project embeds them within the urban fabric, supporting both social integration and economic vitality.

A Program Oriented Toward Community
The design responds directly to the needs of international students, who often arrive without established social networks. Beyond private rooms, SEM provides a comprehensive range of shared facilities: a coffee bar, laundry bar, gym, lounge, study rooms, conference areas, and commercial spaces.


All of these functions are concentrated on the ground floor, forming a multifunctional plinth that acts as the social heart of the complex. This arrangement encourages spontaneous encounters and informal interaction, reducing isolation and fostering community.
A semi-sunken underground car park creates subtle level differences that separate vehicular circulation from pedestrian zones while generating spatial variety in collective areas.


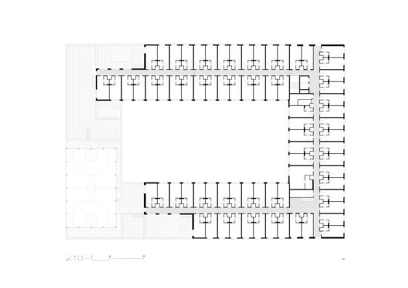
The Inner Garden as Social Core
At the center of SEM lies an accessible green inner garden around which many communal functions are organized. Visible from surrounding circulation spaces, this courtyard operates as both visual anchor and social condenser.
The garden introduces daylight, vegetation, and seasonal change into the dense building mass. It also functions as an extension of interior common spaces, inviting residents to linger, study, or socialize outdoors.


By grouping shared programs around this green core, VURB Architects transformed circulation into opportunity—each passage through the building becomes a chance for interaction.
Architectural Form and Massing
SEM is organized as a square volume rising from the fourth to the ninth storey, articulated by staggered roof terraces. This stepped profile reduces perceived mass and creates usable outdoor spaces at multiple levels.

The building consists of inner and outer rings that differ in height and materiality by one storey. This subtle variation breaks down scale, enhances visual depth, and reinforces functional differentiation between private and communal zones.
Many rooms benefit from views over the Minervahaven water, strengthening residents’ connection to the site and enhancing overall living quality.


Interior Atmosphere: Rawness and Precision
Inside, the architecture balances robustness with refinement. Raw materials—such as concrete, exposed structures, and industrial finishes—reflect the site’s dockland heritage. These are complemented by carefully detailed interiors that introduce warmth, comfort, and tactility.

Wood surfaces, soft furnishings, and well-calibrated lighting create welcoming environments in shared spaces. This contrast between industrial character and domestic comfort allows students to feel both stimulated and at ease.
The result is an interior language that supports long-term habitation rather than short-term occupancy.

Sustainability as Architectural Infrastructure
One of SEM’s defining features is its integrated approach to sustainability. The building achieved BREEAM Excellent certification and is recognized as one of Europe’s most sustainable student housing complexes.

Energy generation is embedded directly into the architecture through photovoltaic façades applied to the south, west, and east elevations. Designed and produced by SolarLab, these custom panels incorporate:
- Selective glass coatings
- Non-glare, self-cleaning surfaces
- High-resilience materials
- Kromatix coatings for controlled light reflection
This system allows the façades to function simultaneously as envelope, power plant, and visual identity.


By placing solar panels on vertical surfaces, the roof remains free for social and recreational use—an important spatial and environmental strategy.
The Roof as Collective Landscape
The rooftop is conceived as an inhabitable landscape rather than a technical zone. A continuous footpath connects gardens, sports facilities, collective terraces, and private outdoor areas.
This elevated network extends public space vertically, offering residents panoramic views, fresh air, and places for physical activity and relaxation. In a dense urban context, such shared outdoor space is a valuable social resource.


The roof transforms the building into a vertical campus—supporting informal gatherings, exercise, and reflection above the city.
Housing as Social Infrastructure
SEM’s spatial organization is guided by the idea that student housing must function as social infrastructure. Private rooms provide retreat and autonomy, while shared spaces are carefully distributed to encourage interaction without forcing it.

The building’s circulation routes, lounges, and study areas are positioned to overlap visually and spatially. This ensures that students remain aware of one another’s presence, fostering a sense of belonging.
Security is addressed through visibility, active frontages, and legible circulation, creating a socially safe environment without resorting to defensive architecture.



Material, Technology, and Longevity
The project integrates high-performance systems with durable construction. Aluminum façades, advanced glazing, modular components, and carefully selected products ensure long-term resilience and adaptability.

Manufacturers such as Reynaers Aluminium, Derako, and Intal contributed to envelope and interior systems that balance performance and aesthetics. Building physics consultancy by LBP Sight supported thermal comfort, acoustics, and energy efficiency.
This technical rigor positions SEM as a future-proof residential model.

A New Model for Student Housing
Student Experience Minervahaven demonstrates how large-scale student accommodation can transcend basic housing provision. By merging urban activation, environmental performance, and social design, the project establishes a new typology for extended-stay student living.

It challenges the notion of dormitories as isolated enclaves, instead proposing them as integrated urban nodes—places where learning, living, and community intersect.



All the Photographs are works of Stijn Bollaert
Popular Articles
Popular articles from the community
Louis Malle Cinema: A Limestone Cultural Landmark Revitalizing Community Life in Prayssac
Limestone cinema extension with public forecourt, blending heritage and modern design to create flexible cultural spaces and strengthen community interaction.
Treehouse Apartment: A Warm Timber Interior Blending Craft, Play, and Contemporary Living
Warm timber apartment with integrated treehouse, combining natural materials, craftsmanship, and playful design to create a flexible, family-oriented living environment.
The Ken Roberts Memorial Delineation Competition (Krob)
As the most senior architectural drawing competition currently in operation anywhere in the world, it draws hundreds of entries each year, awarding the very best submissions in a series of medium-based categories.
An Miên Lumière Cafe by xưởng xép, Ho Chi Minh City, Vietnam
An industrial-inspired café where layered steel and warm light create a dynamic, immersive environment shaped by reflection, depth, and perception.
Similar Reads
You might also enjoy these articles
The Ken Roberts Memorial Delineation Competition (Krob)
As the most senior architectural drawing competition currently in operation anywhere in the world, it draws hundreds of entries each year, awarding the very best submissions in a series of medium-based categories.
Waterfront Redevelopment and Urban Revitalization in Mumbai: Forging a New Dawn for Darukhana
A transformative waterfront redevelopment project reimagining Darukhana’s shipbreaking heritage into an inclusive urban future.
OUT-OF-MAP: A Call for Postcards on Feminist Narratives of Public Space
Rhizoma Design and Research Lab invites artists, designers, architects, researchers, and students to reflect on how feminist perspectives can reshape public space. Selected works will be exhibited in Barcelona, October 2026. Submissions open until 15 April 2026.
Documentation Work on Buddhist Wooden Temple
Architectural syncretism and cultural hybridity: A comparative study of the Buddhist temples in Chattogram Hill tracks
Explore Architecture Competitions
Discover active competitions in this discipline
The International Standard for Design Portfolios
The Global Benchmark for Architecture Dissertation Awards
The Global Benchmark for Graduation Excellence
Challenge to design public laboratory
Comments (0)
Please login or sign up to add comments
No comments yet. Be the first to comment!