Sustainable Community Buildings in the UK: A Look at The Big Roof Storage and Training Center
Explore The Big Roof Storage and Training Center, a model for sustainable community buildings in the UK, blending functionality with ecology.
In recent years, the focus on sustainable building practices has significantly increased, especially in community-centric projects. "The Big Roof Storage and Training Center" in Haddenham, UK, designed by Mole Architects and Invisible Studio, serves as a prime example of how architectural ingenuity can meet ecological responsibility in sustainable community buildings in the UK.



Overview of The Big Roof Storage and Training Center
Purpose and Design Philosophy
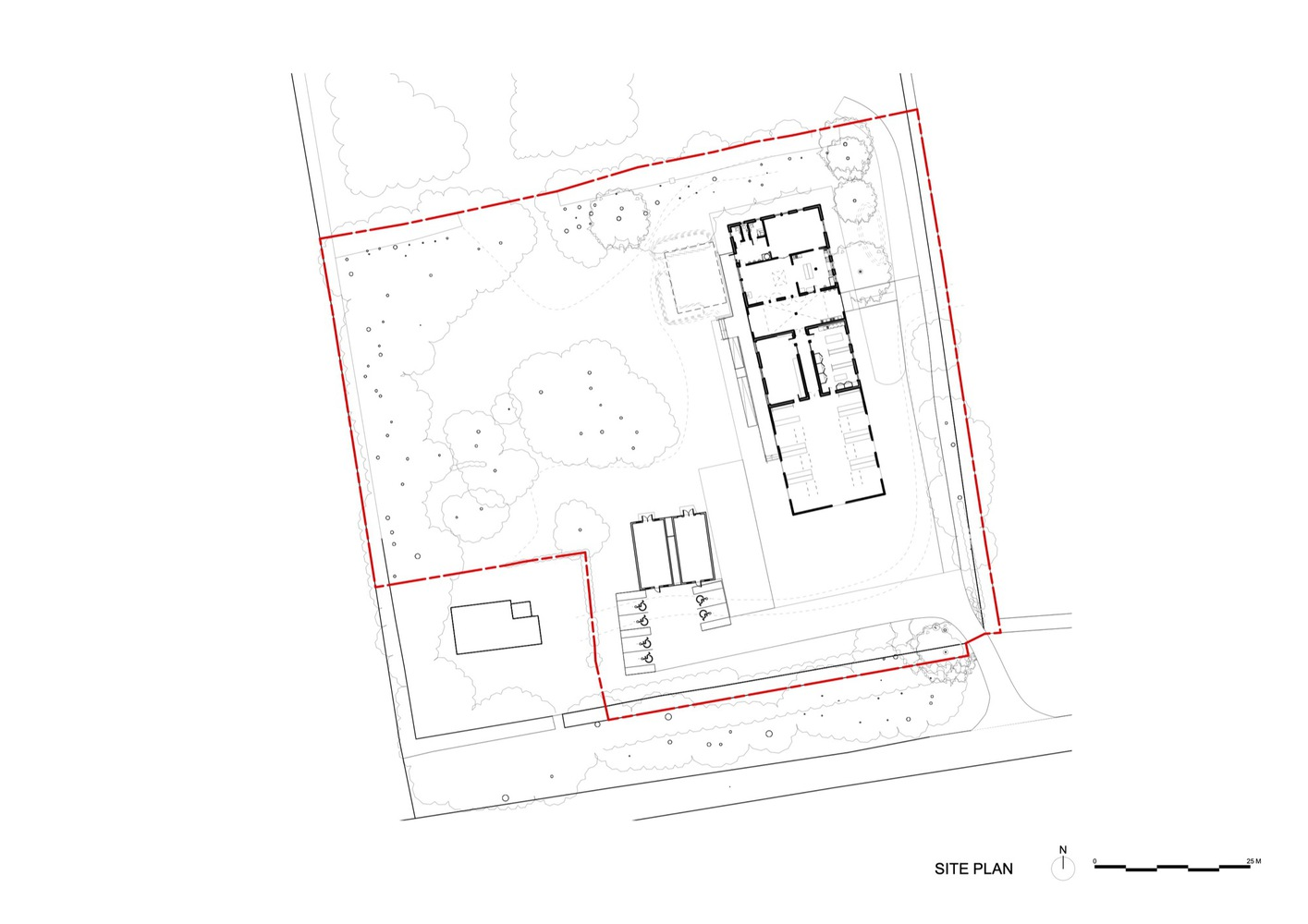
Situated in the Cambridgeshire Fens, The Big Roof provides a multi-functional space primarily used by Forest School Camps (FSC), a charity dedicated to outdoor education for children. This 745 m² facility replaces outdated structures and centralizes essential functions—storage, repair, and training—in a single, cohesive unit. The design reflects a commitment to sustainability and community values, aligning with the charity’s ethos of environmental stewardship and inclusiveness.



Architectural and Environmental Features
The building's low-energy design minimizes its environmental impact while maximizing functionality. Clad in black corrugated fiber cement and featuring large areas of translucent fiberglass, the structure is both visually striking and practical, providing abundant natural light. The building’s orientation and the integration of a large lantern-like bay facilitate natural ventilation, reducing the reliance on artificial heating and cooling.





Key Features of the Building
Sustainable Materials and Construction
One of the standout features of sustainable community buildings in the UK like The Big Roof is the use of eco-friendly materials. The structure is built above the ground on a robust concrete beam and block floor, supporting a timber frame clad in cement fiber corrugated sheets. This approach not only enhances the building’s sustainability profile but also ensures long-term durability.




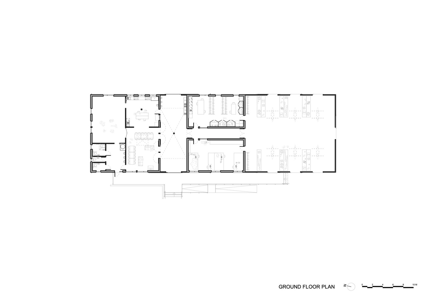
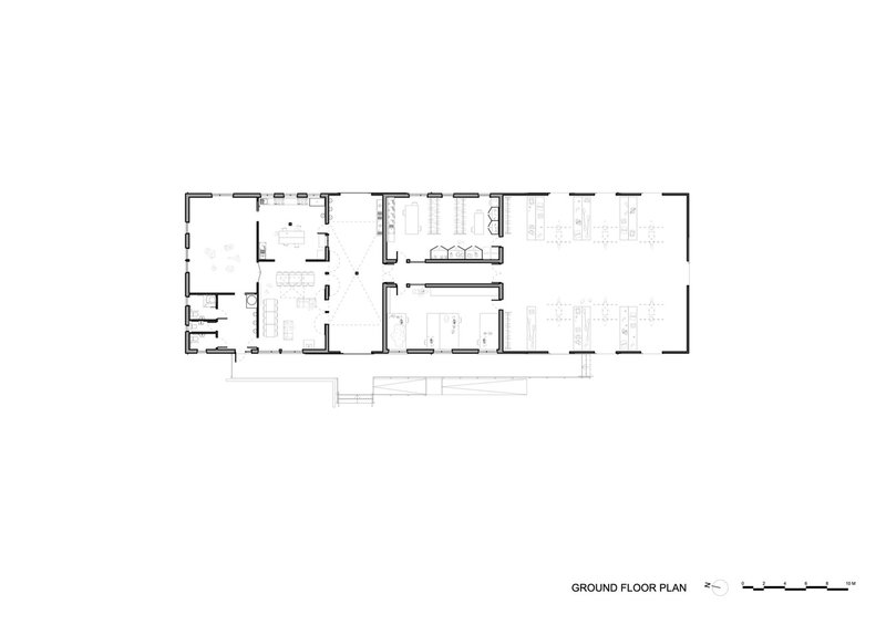
Interior Layout and Usage
Inside, the main storage space accommodates camping equipment essential for FSC’s nationwide activities. Adjacent to this are insulated and heated communal areas, including a kitchen, dining area, and flexible training spaces. These areas are designed to foster a sense of community among volunteers and participants, reflecting the collaborative spirit of the charity.


Impact on the Community
Enhancing Operational Efficiency
The consolidation of storage and training facilities under one roof has significantly improved the operational efficiency of Forest School Camps. With better organization and increased capacity, FSC can now host more educational camps annually, impacting approximately 1,500 children each year.


Supporting Community Resilience
The Big Roof is not just a building; it's a community enhancer. Every stage of its development, from conception to completion, was driven by community involvement. The project has fostered a strong sense of identity and belonging among its users, demonstrating the power of architecture to support community resilience.


The Role of Architecture in Community and Sustainability
The Big Roof Storage and Training Center is a benchmark for sustainable community buildings in the UK, showcasing how thoughtful design can facilitate educational and social objectives while adhering to principles of sustainability and environmental consciousness. Projects like these inspire future developments and highlight the crucial role of architecture in building sustainable communities.




All photographs are work of David Butler
Popular Articles
Popular articles from the community
Solar Steam: A Climate-Responsive Architecture That Redefines the Monument
A climate-responsive memorial architecture that transforms heat, decay, and time into a living system reflecting humanity’s ecological impact.
Atelier Macri Concept Store Interior Design by CASE-REAL
Atelier Macri store features a "ko" counter, walnut wood details, cork displays, blending retail, gallery, and seamless customer experiences.
Inverted Architecture Installation by Studio Link-Arc: Exploring the Intersection of Architecture and Living Organisms
Inverted Architecture Installation by Studio Link-Arc blends mycelium, sustainability, inverted design, ecological cycles, and urban adaptive architecture in Shenzhen.
The Ken Roberts Memorial Delineation Competition (Krob)
As the most senior architectural drawing competition currently in operation anywhere in the world, it draws hundreds of entries each year, awarding the very best submissions in a series of medium-based categories.
Similar Reads
You might also enjoy these articles
The Ken Roberts Memorial Delineation Competition (Krob)
As the most senior architectural drawing competition currently in operation anywhere in the world, it draws hundreds of entries each year, awarding the very best submissions in a series of medium-based categories.
Waterfront Redevelopment and Urban Revitalization in Mumbai: Forging a New Dawn for Darukhana
A transformative waterfront redevelopment project reimagining Darukhana’s shipbreaking heritage into an inclusive urban future.
OUT-OF-MAP: A Call for Postcards on Feminist Narratives of Public Space
Rhizoma Design and Research Lab invites artists, designers, architects, researchers, and students to reflect on how feminist perspectives can reshape public space. Selected works will be exhibited in Barcelona, October 2026. Submissions open until 15 April 2026.
Documentation Work on Buddhist Wooden Temple
Architectural syncretism and cultural hybridity: A comparative study of the Buddhist temples in Chattogram Hill tracks
Explore Architecture Competitions
Discover active competitions in this discipline
The International Standard for Design Portfolios
The Global Benchmark for Architecture Dissertation Awards
The Global Benchmark for Graduation Excellence
Challenge to reimagine the Iron Throne
Comments (0)
Please login or sign up to add comments
No comments yet. Be the first to comment!