Sustainable House Renovation with Local Materials in Normandy: Le Costil House by Anatomies d’Architecture
The article explores the eco-conscious renovation of Le Costil House, emphasizing sustainable design with local materials and traditional craftsmanship.
In an era where sustainability and environmental consciousness dominate architectural discourse, the Le Costil House renovation stands out as a pioneering project. Located in Sap-en-Auge, Normandy, France, this traditional brick house, also known as a “longère,” has been meticulously transformed by Anatomies d’Architecture. With a vision to reconnect architecture with its geographical, historical, and ecological context, the project eliminates conventional construction materials like concrete and plastic, focusing instead on natural, locally-sourced alternatives.


A Vision for Sustainable Architecture
Le Costil House embodies the principles of sustainable design and construction. The team, led by Raphaël Walther, envisioned a home that harmonizes with its surroundings by integrating local resources, traditional craftsmanship, and eco-friendly practices. This renovation addresses the critical ecological challenges of the Anthropocene epoch while preserving the cultural and architectural heritage of Normandy.


Key Features of the Renovation
1. Materials from a 100 km Radius
Anatomies d’Architecture utilized materials sourced entirely within a 100 km radius of the site. This approach minimized the project's carbon footprint and supported local industries.
- Hemp Insulation: Provides excellent thermal performance and is sourced sustainably.
- Raw Earth Coatings: Enhances interior aesthetics while maintaining breathability and regulating humidity.
- Chestnut and Oak Timber Frames: Locally sourced woods offer durability and a connection to the region’s forestry heritage.
- Reused Traditional Bricks: Adds historical authenticity while reducing waste.


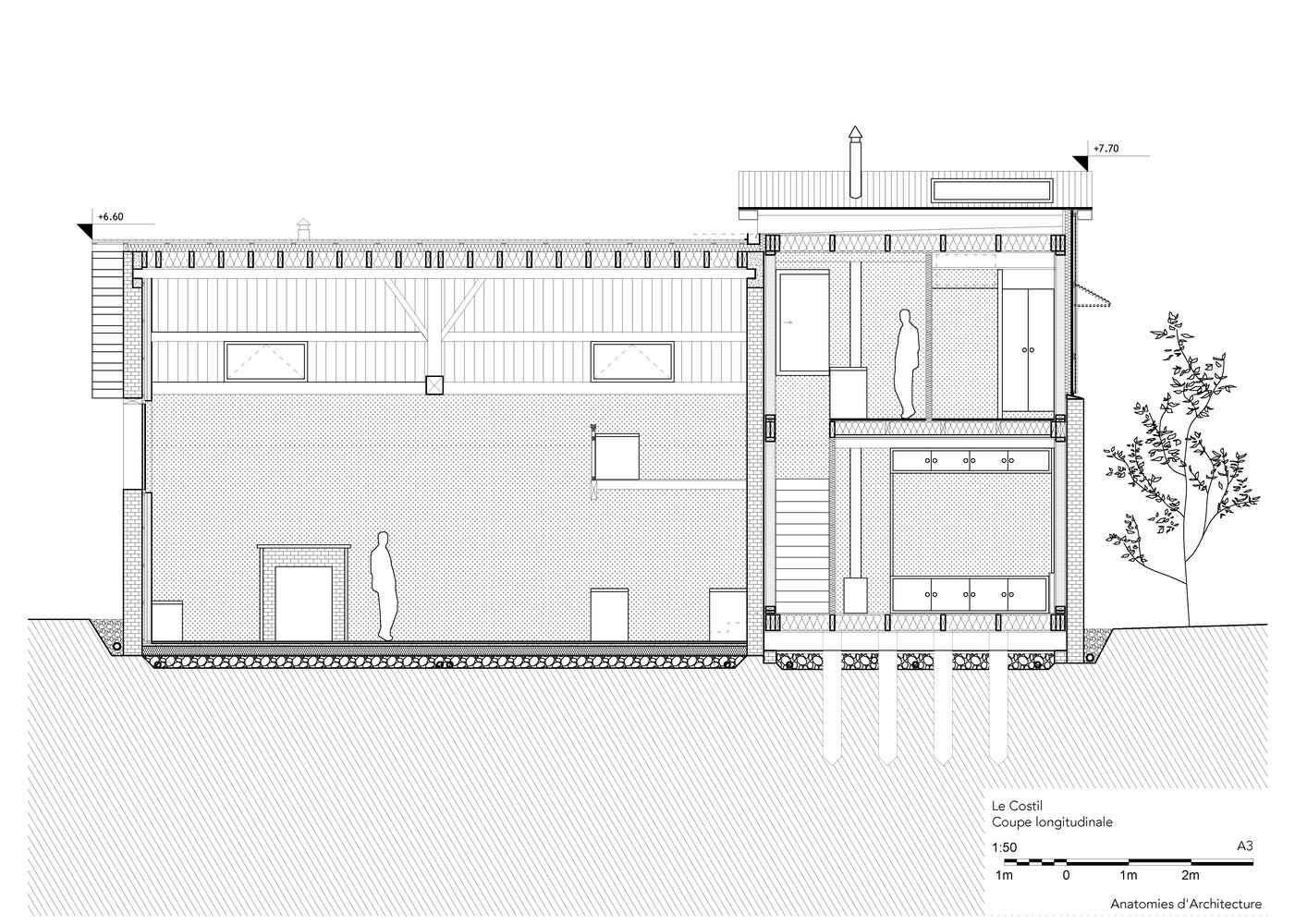
2. Innovative Foundations and Floors
The foundations were constructed using locust tree trunks, a natural and durable solution. Reclaimed wood windows were repurposed to create the flooring, showcasing the project’s commitment to recycling and waste reduction.


Local Craftsmanship and Regional Solidarity
The success of this renovation stems from the collaboration with Normandy’s local artisans and experts, including farmers, lumberjacks, masons, and quarrymen. Their dedication to preserving traditional techniques and regional solidarity was integral to the project.
Celebrating Ancestral Practices
Through the use of short-circuit supply chains, the project promoted regional craftsmanship, including:
- Sawing and preparing local timbers
- Utilizing quarry-sourced raw earth for coatings
- Masonry techniques that honor Normandy’s historical architecture



Sustainable Practices in the Renovation
1. Zero Concrete, Zero Plastic
By avoiding these conventional materials, the project not only reduced its environmental impact but also demonstrated the feasibility of sustainable construction methods.
2. Circular Economy Approach
The renovation employed a circular economy model by reusing materials such as corks for insulation and reclaimed wood for structural components, reinforcing the house’s ecological footprint.



Design and Aesthetics
Le Costil House balances functionality with a warm, minimalist aesthetic. Exposed beams, natural finishes, and earthy tones create an inviting interior that reflects the project’s eco-friendly ethos.
Ground Floor Layout
The house features an open-plan kitchen and living area, with carefully integrated materials that highlight the blend of modern functionality and traditional charm.


Impact on Ecological and Architectural Practices
Le Costil House serves as a model for future renovations by proving that eco-conscious practices can coexist with architectural preservation. It redefines the narrative of rural homes by integrating modern sustainability with traditional craftsmanship.
The Le Costil House renovation by Anatomies d’Architecture is a groundbreaking example of sustainable architecture that celebrates locality and ecology. By relying solely on natural materials and traditional practices, the project offers a blueprint for environmentally responsible construction. This remarkable transformation is a testament to the power of regional solidarity, ancestral techniques, and innovative thinking in addressing the challenges of modern architecture.



All photographs are work of Olivier Sabatier
Popular Articles
Popular articles from the community
1-1 Architects Builds a Nagoya House and Office from Decades of Stockpiled Timber
A 69-square-meter tower in dense residential Nagoya transforms surplus lumber into a home and workplace for a construction company.
20 Most Popular Office Building Projects of 2025
From biophilic workspaces in India to net-positive energy offices in New Delhi, 20 office building projects that defined architecture in 2025.
boq architekti Fits a Gabled Family House onto a Tiny Moravian Hillside Plot with No Room for a Garden
A 115 square meter home in South Moravia trades a garden for a rooftop terrace and a fully glazed facade facing the village below.
Studio Gram Unfurls a Concrete Curve Through an Adelaide Queen Anne Villa
In Rose Park, a billowing concrete threshold stitches a century-old house to a sun-chasing pavilion organized around an existing pool.
Similar Reads
You might also enjoy these articles
Olio Towers: A Mid-Rise for Performers That Fuses Housing, Rehearsal, and Stage
Located blocks from Houston's Theater District, this modular tower stacks living units around a central performance atrium.
Oasis: Modular Green Housing Carved into Dhaka's Urban Fabric
A shortlisted Plugin Housing entry reclaims unauthorized settlements in Dhaka with stepped concrete volumes, green roofs, and ventilation-driven design.
Black Hole: A Floating Megastructure for the Post-Physical Era
Emiliano Mazzarotto envisions a spherical, self-scaling arena where e-sports, digital hotels, and holographic stadiums replace traditional public space.
Compact & Sustainable Living in Piraeus: A Four-Level Family Home Built Around Light and Air
A narrow townhouse in one of Greece's densest port cities uses a central atrium and passive strategies to house three generations under one roof.
Explore Housing Competitions
Discover active competitions in this discipline
The International Standard for Design Portfolios
The Global Benchmark for Architecture Dissertation Awards
The Global Benchmark for Graduation Excellence
Challenge to reimagine the Iron Throne
Comments (0)
Please login or sign up to add comments
No comments yet. Be the first to comment!