Sustainable Refugee Housing: Adaptive Settlement for Sri Lankan Tamil Communities
Designing sustainable refugee housing that empowers communities through culture, livelihood, and incremental growth.
Sustainable refugee housing has become one of the most urgent challenges in contemporary humanitarian architecture. Across the world, displacement is no longer temporary; refugee settlements often evolve into long-term habitats that require dignity, identity, economic opportunity, and environmental responsibility. The project Adaptive Settlement for Refugees – A Case of Sri Lankan Tamil by Ananya Senthilraj addresses this critical issue through an architectural framework that combines affordability, cultural sensitivity, incremental growth, and sustainable construction strategies.
Rather than proposing a temporary camp, the project envisions a long-term adaptive settlement that reflects the socio-economic character of Sri Lankan Tamil refugees while allowing integration with surrounding communities without compromising safety and security.


Context: Refugee Settlement in Tamil Nadu
Tamil Nadu has hosted Sri Lankan Tamil refugees for decades. What began as emergency accommodation gradually transformed into prolonged habitation. However, many settlements remain constrained by:
- Inadequate infrastructure
- Limited economic opportunities
- Temporary materials deteriorating over time
- Lack of spatial dignity
- Absence of cultural identity in built form
This project recognizes that refugee housing must evolve beyond emergency response. Sustainable refugee housing must provide not just shelter, but a framework for social cohesion, livelihood, education, and community growth.
Concept: Adaptive and Incremental Settlement Design
The core idea of the proposal is adaptability. The settlement is designed to expand incrementally based on family growth, economic development, and future needs. The planning strategy integrates:
- Modular housing units
- Cluster-based community planning
- Defined public, semi-public, and private zones
- Future expansion corridors
- Integrated occupational and educational centers
The design allows infiltration of outsiders in controlled public zones while preserving secure residential clusters. This balance ensures safety without isolating the community.
Master Planning Strategy
The master plan organizes the settlement into sectors and clusters. Each cluster accommodates multiple housing units around shared communal courts, encouraging social interaction while maintaining privacy.
Zoning Structure
- Private Zone – Residential clusters with sleeping, cooking, bathing, and dining spaces.
- Semi-Public Zone – Schools, libraries, healthcare, religious spaces, and community courts.
- Public Zone – Occupational centers, markets, distribution centers, and external access areas.
This layered zoning strengthens social structure and supports gradual integration with the larger urban fabric.
Sustainable Refugee Housing Modules
The housing typology is modular and adaptable for different family sizes:
- Module for 1–3 persons
- Module for 4–6 persons
- Module for 7–9 persons
Each unit incorporates:
- Natural ventilation strategies
- Flexible partitions using lattices and folding panels
- Stack-effect ventilation through roof design
- Expandable spatial configurations
The modules reflect Sri Lankan cultural elements such as wooden lattices, batik-inspired patterns, and shaded verandahs. These details reinforce identity while ensuring climate responsiveness.
Construction Strategy: Affordable and Recycled Materials
A major strength of the proposal lies in its material innovation. The project reuses demolition waste and locally available materials to reduce cost and environmental impact.
Materials Used
- Recycled paper tubes for rafters and partitions
- Split bamboo composite roofing with protective tarpaulin layers
- Precast concrete structural beams and columns
- Random rubble masonry for plinths
- Wooden crates repurposed as lattice panels
- Sandwich panels made from corrugated cardboard and PET bottles
This strategy significantly reduces embodied energy and supports sustainable refugee housing principles.


Structural System and Joinery Techniques
The structure is designed for ease of assembly and low-skill construction. The exploded views demonstrate a step-by-step construction process:
- Stepped concrete footings
- Precast concrete columns
- Plinth beam construction
- Masonry infill walls
- Lightweight paper-tube rafters
- Composite bamboo roof placement
Joinery techniques allow modular replacement and repair. This ensures durability while keeping maintenance affordable.
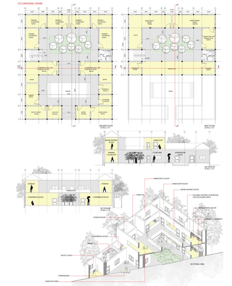
Occupational Centre: Empowering Livelihoods
One of the most transformative aspects of the project is the Occupational Centre. Sustainable refugee housing must integrate economic opportunity. The occupational center provides:
- Training classrooms
- Handicraft production spaces
- Conference rooms
- Exhibition and marketplace areas
- Storage and utility zones
This center enhances self-employment for women, enabling them to explore traditional skills such as weaving, batik art, basket weaving, and craft production. By supporting livelihood generation, the settlement shifts from dependency to economic resilience.
Climate Responsive Design
Climatic analysis informs the planning strategy. Key responses include:
- Orientation aligned with prevailing wind direction
- Shaded courtyards to reduce heat gain
- Ventilated roof system for stack effect
- Elevated plinth to prevent water logging
- Tree-lined streets for microclimate control
These interventions improve thermal comfort without relying on mechanical systems.
Community Development Framework
The settlement fosters strong community bonds through:
- Shared communal courts
- Religious and cultural spaces
- Schools and libraries
- Health centers
- Recreational zones
Activity mapping demonstrates how residents move between private, semi-public, and public areas throughout the day. This spatial choreography strengthens social identity and safety.
From Temporary Camp to Permanent Habitat
Traditional refugee camps often deteriorate due to their temporary mindset. This project challenges that paradigm. It proposes a scalable, structured, and culturally grounded settlement capable of long-term growth.
By combining humanitarian architecture with sustainable construction and livelihood integration, the project redefines what refugee housing can become.
The Adaptive Settlement for Refugees – A Case of Sri Lankan Tamil by Ananya Senthilraj offers a replicable model for sustainable refugee housing in India and beyond. It demonstrates that refugee settlements can be:
- Affordable
- Incremental
- Culturally rooted
- Climate responsive
- Economically empowering
- Structurally sustainable
As global displacement continues to rise, architectural responses must evolve. Sustainable refugee housing is not just about shelter; it is about restoring dignity, identity, and opportunity. This project stands as a thoughtful blueprint for the future of humanitarian architecture.


Popular Articles
Popular articles from the community
Free Architecture Competitions You Can Enter Right Now
No entry fees, real prizes. Here are the best free architecture competitions open for submissions in 2026.
Split House: A Compact Urban Home Blending Privacy, Light, and Flexible Living in Japan
Compact Japanese home featuring DOMA space, flexible café potential, passive lighting, privacy zoning, and sustainable urban living design.
Inverted Architecture Installation by Studio Link-Arc: Exploring the Intersection of Architecture and Living Organisms
Inverted Architecture Installation by Studio Link-Arc blends mycelium, sustainability, inverted design, ecological cycles, and urban adaptive architecture in Shenzhen.
Solar Steam: A Climate-Responsive Architecture That Redefines the Monument
A climate-responsive memorial architecture that transforms heat, decay, and time into a living system reflecting humanity’s ecological impact.
Similar Reads
You might also enjoy these articles
Digital Façade Design for our cities’ urban fronts
Prima Facie - Result Story
Protecting avian biodiversity: Bird observatories to help spread awareness & save rare bird species.
Results for ‘Fly’ - Landscape design competition out now
Connecting with nature: Forest interpretation center in Australia's Wollemi National Park
‘Asatti’ - Landscape design competition - Result story
Explore Low Cost Design Competitions
Discover active competitions in this discipline
Comments (0)
Please login or sign up to add comments
No comments yet. Be the first to comment!