Sustainable Social Housing Architecture: 116 Public Housing Units in Madrid by UNIA Arquitectos + FAU Arquitectos
A groundbreaking public housing project in Madrid that redefines sustainable social housing architecture through innovation, flexibility, and community focus.
The 116 Public Housing Units in Madrid, designed by UNIA Arquitectos and FAU Arquitectos, stand as a benchmark in sustainable social housing architecture. Completed in 2024, this 15,379 m² project redefines the balance between urban density, environmental performance, and quality of life. Located in the Spanish capital, the development offers an inspiring example of how thoughtful design can create accessible, flexible, and sustainable living environments for urban communities.



Urban Integration and Site Strategy
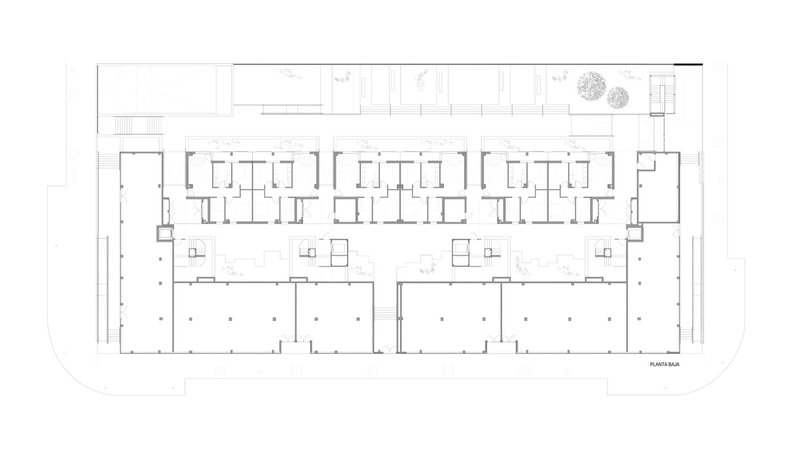
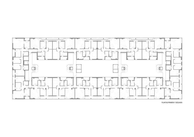
The project addresses the unique conditions of its urban site with a carefully articulated design that maximizes buildable area without compromising spatial quality. By adopting a type H block with four vertical cores, the architects managed to achieve the best balance between usable residential space and circulation zones. The decision to use a slightly oversized structural grid of 9.5 meters enhances flexibility, while enclosing the sides creates a compact and efficient volume that integrates harmoniously into the urban fabric.


Architectural Expression and Façade Design
The façade design of this sustainable social housing project challenges the rigidity typical of large housing blocks. A dynamic interplay of opaque and sliding micro-perforated steel panels offers both solar and acoustic protection, while giving residents control over their environment. This design not only improves energy performance but also establishes an iconic architectural identity that resonates within the neighborhood.


Optimizing Living Quality and Flexibility
The ground floor of the building accommodates commercial spaces, adaptable homes, and pedestrian passages that link the rear garden to stairwells and elevators. By reconfiguring several 3-bedroom units into 2-bedroom types on the first and second floors, the architects carved out dramatic triple-height outdoor spaces. This improves natural light and ventilation for the inner courtyard, enhancing residents’ comfort while adhering to maximum buildability regulations.


Blending Work and Home
Anticipating modern lifestyle shifts, the architects incorporated flexible spaces that allow residents to reconcile personal and professional life within their homes. Units with four bedrooms feature a dedicated room near the entrance, ideal for home offices or welcoming clients, thus reflecting a forward-thinking approach to urban living.

Fostering Community Through Outdoor Spaces
The landscape design emphasizes community interaction by creating safe, semi-public spaces where residents can walk, play, and socialize. These “intermediate spaces” form an intuitive transition between private homes and the public realm, encouraging neighborly connections and enhancing the overall social fabric of the development.


Prefabrication and Sustainable Construction
Prefabricated and industrialized construction systems played a crucial role in the project’s sustainability goals. The use of lightweight materials reduced the need for steel in the structural framework and foundations, while minimizing construction waste. Prefabricated stair cores, assembled off-site and installed via the central light well, highlight the efficiency and innovation driving this project.

Energy Performance and Environmental Impact
With a top-tier energy rating, the housing units exemplify excellence in sustainable social housing architecture. High-performance insulation and waterproofing work in tandem with an aerothermal system connected to radiant floor heating, ensuring year-round thermal comfort with minimal environmental impact. These features not only lower operational costs for residents but also demonstrate a scalable model for future housing developments.

The 116 Public Housing Units in Madrid represent a paradigm shift in how cities can address housing shortages while prioritizing sustainability, flexibility, and community well-being. Through architectural innovation, environmental responsibility, and a deep commitment to social value, UNIA Arquitectos and FAU Arquitectos have set a new standard for sustainable social housing architecture.

All the photographs are works of Fernando Alda
Popular Articles
Popular articles from the community
Gads Hill Early Learning Center by JGMA: Adaptive Reuse Shaping Community-Focused Educational Architecture
Adaptive reuse transforms fragmented structure into vibrant early learning center with playful façade, natural light, and community-focused sustainable design.
The Ken Roberts Memorial Delineation Competition (Krob)
As the most senior architectural drawing competition currently in operation anywhere in the world, it draws hundreds of entries each year, awarding the very best submissions in a series of medium-based categories.
Split House: A Compact Urban Home Blending Privacy, Light, and Flexible Living in Japan
Compact Japanese home featuring DOMA space, flexible café potential, passive lighting, privacy zoning, and sustainable urban living design.
Solar Steam: A Climate-Responsive Architecture That Redefines the Monument
A climate-responsive memorial architecture that transforms heat, decay, and time into a living system reflecting humanity’s ecological impact.
Similar Reads
You might also enjoy these articles
Free Architecture Competitions You Can Enter Right Now
No entry fees, real prizes. Here are the best free architecture competitions open for submissions in 2026.
Top 15 Architecture Competitions to Enter in 2026
From student-friendly idea competitions to prestigious international awards, here are the best architecture competitions open for entries in 2026. Updated regularly.
DIY & Engineering in Computational Design : Enter the BeeGraphy Design Awards
Showcase Your Creativity with Computational Design and Open Source Projects

Innovative Design Solutions: Award-Winning Projects from Recent Architecture Competitions
Exploring award-winning architectural projects shaping the future of design, sustainability, and community.
Explore Architecture Competitions
Discover active competitions in this discipline
The International Standard for Design Portfolios
The Global Benchmark for Architecture Dissertation Awards
The Global Benchmark for Graduation Excellence
Challenge to reimagine the Iron Throne
Comments (0)
Please login or sign up to add comments
No comments yet. Be the first to comment!