Sustainable Timber Home Design Unveiled in Austria
Sustainable Timber Construction: A Masterpiece by Moser und Hager Architekten
Discover the harmonious blend of sustainability and architectural innovation in the "House SF" by Moser und Hager Architekten, situated in Altenberg bei Linz, Austria. Completed in 2017, this exceptional residence showcases an intelligently designed timber construction, seamlessly integrating living and working spaces under one roof.



The Concept of Integrated Design
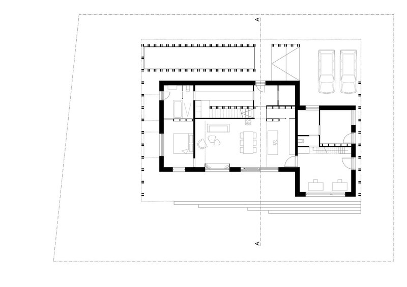
Embracing the theme of "under one roof," the architects strategically placed functional boxes for living and working, defining covered open spaces for terrace, carport, and storage areas. The ingenious use of large roof overhangs creates a sheltered transition, blurring the boundaries between indoor and outdoor realms.









Timber Excellence in Construction
Timber takes center stage as a versatile structural element, showcasing its diversity and flexibility. The design adheres to a fixed timber construction grid, enhancing spatial aesthetics. Rows of double columns not only contribute to the open spatial structure but also serve as potential shelves or platforms for galleries and balconies.






Implementation and Sustainability
To the north, the interior is closed, providing a cocoon-like atmosphere, while the south opens up to untouched landscapes. White glazed panels cover interior walls and the soffit, creating a bright and welcoming ambiance. The entire building, excluding the reinforced concrete floor plate, is a testament to sustainable timber frame construction. Heating and ventilation are efficiently managed by an air heat pump, aligning with principles of responsible resource use.


The Heart of the Home
The focal point of "House SF" is the spacious two-story living area with a kitchen, connecting different zones as the pulsating heart of the design. This central space acts as a mediator between work areas and private retreats, fostering a sense of unity and functionality.







Moser und Hager Architekten's House SF" is more than a residence; it's a sustainable living masterpiece. Explore the seamless integration of living and working spaces, where timber construction meets eco-conscious design, setting new standards for modern architecture.
All Photographs are the work of Gregor Graf
Popular Articles
Popular articles from the community
BICA Arquitectos Buries a Coastal Home in a Man-Made Dune on Portugal's Tróia Peninsula
A 300-square-meter house of timber, sand mortar, and travertine dissolves into the dune landscape it helped regenerate on the Alentejo coast.
H&P Architects Stack a Vertical River of Brick and Greenery in Hanoi
A perforated terracotta tower in Dong Anh channels water, light, and air through eight staggered levels of domestic life.
Studio Gram Unfurls a Concrete Curve Through an Adelaide Queen Anne Villa
In Rose Park, a billowing concrete threshold stitches a century-old house to a sun-chasing pavilion organized around an existing pool.
20 Most Popular Furniture Design Projects of 2025
Modular street systems, parametric benches, and insect hotels: the furniture design projects that captivated architects on uni.xyz in 2025.
Similar Reads
You might also enjoy these articles
BICA Arquitectos Buries a Coastal Home in a Man-Made Dune on Portugal's Tróia Peninsula
A 300-square-meter house of timber, sand mortar, and travertine dissolves into the dune landscape it helped regenerate on the Alentejo coast.
The Ranch Mine Runs a White Pavilion Parallel to a 1970s House in Paradise Valley
A hemlock-lined addition reframes desert living by pulling light, views, and a courtyard pool from an outdated Arizona home.
Architects Group RAUM Stacks Offset White Volumes into a Compact Office Tower in Busan
A 524-square-meter building on a tight corner lot in Haeundae plays with sunlight rights and shifting floor plates to create generous terraces.
Studio Gram Unfurls a Concrete Curve Through an Adelaide Queen Anne Villa
In Rose Park, a billowing concrete threshold stitches a century-old house to a sun-chasing pavilion organized around an existing pool.
Explore Architecture Competitions
Discover active competitions in this discipline
The International Standard for Design Portfolios
The Global Benchmark for Architecture Dissertation Awards
The Global Benchmark for Graduation Excellence
Challenge to design mud housing for contemporary communities
Comments (0)
Please login or sign up to add comments
No comments yet. Be the first to comment!