Sustainable Wooden Houses: A Deep Dive into Catwalk House by OFIS Architects
Exploring the Catwalk House by OFIS Architects: a model of sustainable wooden living, blending eco-friendly design with modern architectural innovation
Sustainable living has transcended trend status to become a significant lifestyle choice for many. Among the champions of this movement is the Catwalk House in Ljubljana, Slovenia, designed by OFIS Architects. This article explores the intricate blend of sustainable practices and modern living, making the Catwalk House a paragon of sustainable wooden houses.


The Resurgence of Wooden Houses in Modern Architecture
In the heart of Slovenia, a country with a rich forest cover, the Catwalk House stands as a testament to the reawakening interest in wooden structures. Despite the past century's dominance of concrete and brick, the last two decades have seen a significant shift. This resurgence is driven by the dual engines of sustainability and the innate desire for a connection with nature.



Design Philosophy of the Catwalk House
OFIS Architects, led by Rok Oman and Špela Videčnik, embarked on creating a home that aligns with the ethos of sustainability while catering to the unique needs of its inhabitants. The design brief was clear – to utilize natural materials exclusively, right down to the glues and protective coatings. The house features insulation made of hemp, clay plasters, and a structure devoid of metal supports, epitomizing the essence of sustainable wooden houses.


The Unique Inhabitants and Their Influence on Design
The Catwalk House is home to a family battling severe allergies, necessitating an environment free from artificial or chemical materials. The design also accommodates a cat that enjoys the indoors, a parrot that thrives on views of greenery, and a dog with a garden to roam. These unique requirements led to innovative design solutions, including a walking balcony for the cat and a large window for the parrot, further highlighting the versatility of wood as a building material.


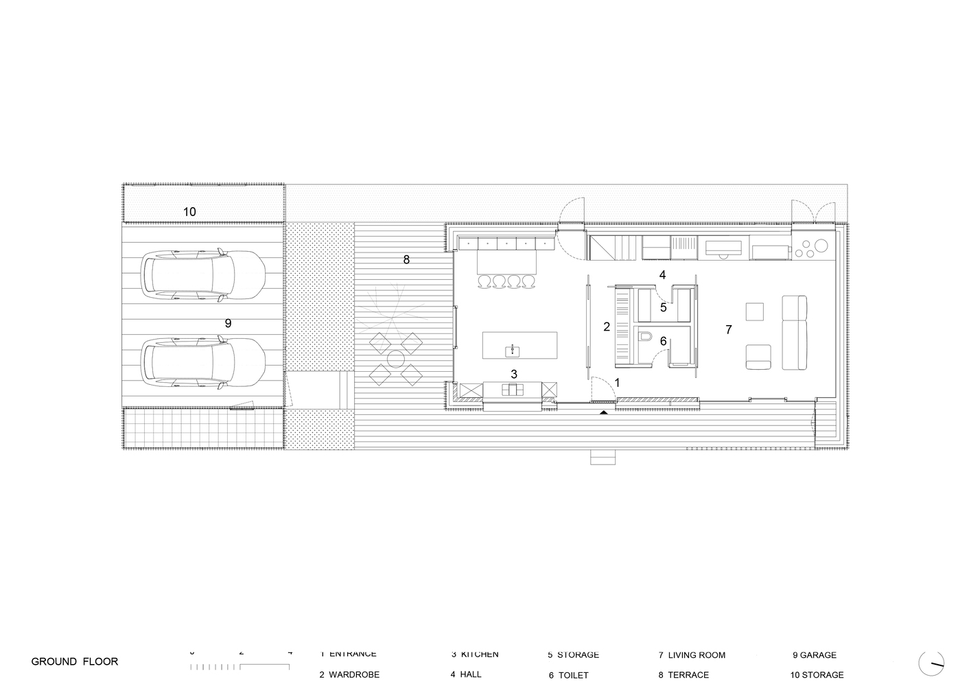
Architectural Details and Sustainable Features
The house is a marvel of sustainable architecture, standing on a plot that beautifully integrates a 50-year-old magnolia tree. It is divided into two main sections: the living space and a service area that includes parking and garden storage. The use of wood extends to the building's insulation and finishes, ensuring a minimal environmental footprint.


The Living Spaces
The ground floor houses the main living areas, including a kitchen and dining room that opens to a private patio, embracing the magnolia tree. The upper floors contain sleeping quarters, designed with the family's wellbeing in mind. A bridge connects the residential part to a terrace over the carport, creating a private garden space for the cats – a true "catwalk house."



The Future of Sustainable Living
The Catwalk House by OFIS Architects is more than a residence; it's a beacon for sustainable living in the modern world. It demonstrates that sustainable wooden houses can meet diverse needs without compromising on design or environmental values. As we move forward, the principles illustrated by the Catwalk House will undoubtedly influence future architectural endeavors, making sustainable wooden houses a cornerstone of eco-friendly living.



All photographs are work of Tomaž Gregorič, Janez Martinčič
Popular Articles
Popular articles from the community
H&P Architects Stack a Vertical River of Brick and Greenery in Hanoi
A perforated terracotta tower in Dong Anh channels water, light, and air through eight staggered levels of domestic life.
20 Most Popular Office Building Projects of 2025
From biophilic workspaces in India to net-positive energy offices in New Delhi, 20 office building projects that defined architecture in 2025.
Architects Group RAUM Stacks Offset White Volumes into a Compact Office Tower in Busan
A 524-square-meter building on a tight corner lot in Haeundae plays with sunlight rights and shifting floor plates to create generous terraces.
Studio Gram Unfurls a Concrete Curve Through an Adelaide Queen Anne Villa
In Rose Park, a billowing concrete threshold stitches a century-old house to a sun-chasing pavilion organized around an existing pool.
Similar Reads
You might also enjoy these articles
Maya Harvest: A Cacao Resort Village Rooted in Mayan Tradition and Local Craft
Situated within a Tabasco cacao plantation, this shortlisted resort proposal merges vernacular materials with hands-on cultural immersion.
Harmonia: A River-Shaped Community That Grows Over Decades in Boa Vista
Curved pathways and modular grid structures along the Branco River create a phased settlement designed to evolve from 2030 to 2050.
The Architecture of Bathing: A Mughal Hammam Reimagined Across the Yamuna
Charlotte May's honorable mention entry for The Black Taj reinterprets Agra's bathing rituals through red sandstone, water, and framed views of the Taj Mah
Om-1: A Wall-Hung System That Moves Your Workspace Off the Desk
Modular plywood boards, magnetic pegs, and utility elements migrate clutter from the horizontal surface to the vertical plane.
Explore Housing Competitions
Discover active competitions in this discipline
The International Standard for Design Portfolios
The Global Benchmark for Architecture Dissertation Awards
The Global Benchmark for Graduation Excellence
Challenge to reimagine the Iron Throne
Comments (0)
Please login or sign up to add comments
No comments yet. Be the first to comment!