Tent Cabin in Omori By HUNE ARCHITECTS
Tent Cabin in Omori by HUNE Architects is a compact timber home featuring a tent-like roof, layered spaces, and gentle family-centered living.
Located in the Omori neighborhood of Tokyo, Tent Cabin by HUNE ARCHITECTS is a compact yet highly expressive 72 m² timber house designed for a young family of four. Completed in 2025, the project rethinks small urban housing through spatial layering, roof experimentation, and a sensitive response to family life, site constraints, and material performance.


A Home for Individual Rhythms and Shared Living
The clients—a young couple with two children—envisioned a house that could support different daily rhythms, hobbies, and moments of retreat, while still encouraging togetherness. Rather than dividing the house into rigid rooms, the architects designed a sequence of interconnected spaces that flow vertically and visually, allowing the family to remain connected without feeling crowded.
This approach results in a flexible domestic landscape, where movement, light, and roof form guide everyday life.



Site Strategy and Split-Level Organization
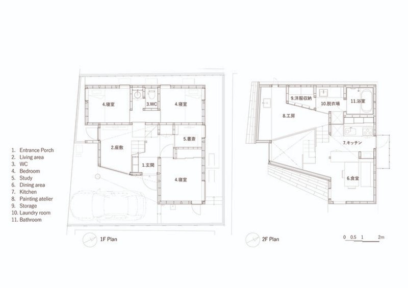
The narrow site is located along a small lane branching from a road facing railway tracks—typical of dense Tokyo neighborhoods. Responding to the subtle level difference between the front road and rear of the plot, the architects arranged the bedrooms in an L-shaped plan, staggered by half levels. This split-level strategy minimizes excavation while naturally separating private spaces.
Above these bedrooms, a rising staircase unfolds into a series of shared living zones:
- a cozy living corner
- a dining area
- a small painting atelier
- a loft space
Together, these spaces form a continuous vertical journey rather than a single open floor.


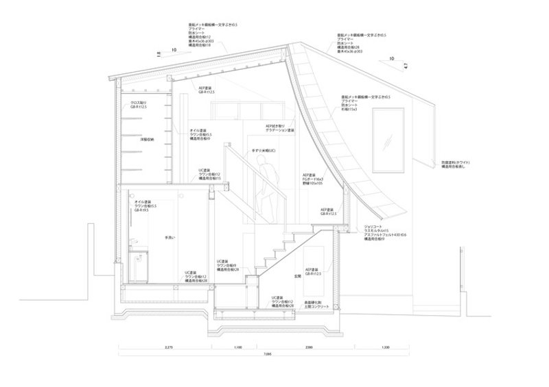
The Tent-Inspired Roof as Spatial Generator
The defining architectural element of the project is its tent-like roof structure. Four interlinked roofs—one of them gently curved—are lifted by a central pillar that forms a ridge, allowing the roofs to drape downward like fabric softly laid over the house.
As residents move through the home, the relationship between roof and floor constantly shifts. Ceiling heights expand and compress, framing views upward and allowing daylight to slip through roof edges. The changing geometry produces a dynamic interior atmosphere where light, shadow, and form evolve throughout the day.



Innovative Timber Construction
To achieve the soft curvature of the roof while maintaining structural integrity, HUNE ARCHITECTS developed a laminated timber system using cedar boards. Each roof panel consists of three layers of boards, each 15 mm thick and 300 mm wide, laminated to form a total thickness of approximately 45 mm.
The process involved:
- daily watering of boards to soften fibers
- bending boards over curvature molds offsite
- transporting pre-bent plies to the site
- staggered joints bonded with screws and adhesive
Testing with MEMS acceleration sensors confirmed that the laminated system achieved 2.5 times higher vibration frequency than a single board, delivering stiffness equivalent to solid timber while preserving visual lightness.


Light, Material, and Atmosphere
Exposed timber surfaces dominate the interior, reinforcing warmth and tactility. Daylight grazes the curved roof from the side, scattering subtle color shifts that change with the time of day. The result is an interior that feels calm, protective, and gently animated, much like the interior of a tent.
Rather than emphasizing efficiency alone, the project prioritizes emotional comfort, spatial variety, and sensory experience, transforming a small footprint into a rich living environment.


A Soft Shelter for Urban Family Life
Tent Cabin in Omori is a thoughtful example of contemporary Japanese residential architecture, blending structural experimentation with human-centered design. It offers a model for compact urban housing where architecture acts not as a rigid container, but as a shared fabric—one that embraces individual lives under a single, gentle roof.

All the photographs are works of Yurika Kono
Popular Articles
Popular articles from the community
Rojkind Arquitectos and Think Parametric Build a Glueless Pavilion from 67 Interlocking Panels
A serpentine fiber-cement installation in Chapultepec Park celebrates a decade of architectural media in Mexico City.
YOAP Architects Round a Corner in Yeongcheon with a Cylindrical Community Hub
A 197-square-meter brick and ribbed-clad tower turns a forgotten alley corner in South Korea into a public garden with a low threshold.
RDTH architekti Rips Out Nearly Every Wall in a Prague Apartment and Replaces Them with Furniture
A 101-square-meter post-war flat in Prague trades rigid partitions for a single rotated furniture block, curtains, and glass concrete.
Fausto Terán and Toro Fuse Japanese Craft with Mexican Tradition in a Lakeside Retreat
Nakamura House pairs Shou-Sugi-Ban charred pine with handmade clay tile at the foot of Atlangatepec Lagoon in Mexico.
Similar Reads
You might also enjoy these articles
Olio Towers: A Mid-Rise for Performers That Fuses Housing, Rehearsal, and Stage
Located blocks from Houston's Theater District, this modular tower stacks living units around a central performance atrium.
Oasis: Modular Green Housing Carved into Dhaka's Urban Fabric
A shortlisted Plugin Housing entry reclaims unauthorized settlements in Dhaka with stepped concrete volumes, green roofs, and ventilation-driven design.
Black Hole: A Floating Megastructure for the Post-Physical Era
Emiliano Mazzarotto envisions a spherical, self-scaling arena where e-sports, digital hotels, and holographic stadiums replace traditional public space.
Compact & Sustainable Living in Piraeus: A Four-Level Family Home Built Around Light and Air
A narrow townhouse in one of Greece's densest port cities uses a central atrium and passive strategies to house three generations under one roof.
Explore Architecture Competitions
Discover active competitions in this discipline
The International Standard for Design Portfolios
The Global Benchmark for Architecture Dissertation Awards
The Global Benchmark for Graduation Excellence
Challenge to reimagine the Iron Throne
Comments (0)
Please login or sign up to add comments
No comments yet. Be the first to comment!